Bildegalleri

Møremegling ved Nils Arne Riise, Eiendomsmegler MNEF, har gleden av å presentere Skaffarvegen 102
Stranda
BUD MOTTATT - Enebolig med 3 soverom og sentral beliggenhet - Flott utsikt - Garasje
Prisantydning1 800 000 kr
Nøkkelinfo
- Boligtype
- Enebolig
- Eieform
- Eier (Selveier)
- Soverom
- 3
- Internt bruksareal
- 108 m² (BRA-i)
- Bruksareal
- 185 m²
- Eksternt bruksareal
- 77 m² (BRA-e)
- Balkong/Terrasse
- 81 m² (TBA)
- Etasje
- 3
- Byggeår
- 1976
- Energimerking
- F - Oransje
- Rom
- 4
- Tomteareal
- 899 m² (eiet)
Fasiliteter
Balkong/Terrasse
Hage
Kjæledyr tillatt
Offentlig vann/kloakk
Peis/Ildsted
Rolig
Sentralt
Utsikt
Turterreng
Visning
PÅMELDING!
Husk å melde deg på visningen.
Trykk på lenken "Påmelding til visning", eller kontakt megler på telefon eller e-post. Vi tilbyr også privatvisninger utover oppsatt visningstidspunkt.
Dersom det er ingen påmeldte til visningen innen kl 16:00 dagen før annonsert visning vil denne bli avlyst.
Ta kontakt med megler for visning.
VisningspåmeldingOm boligen
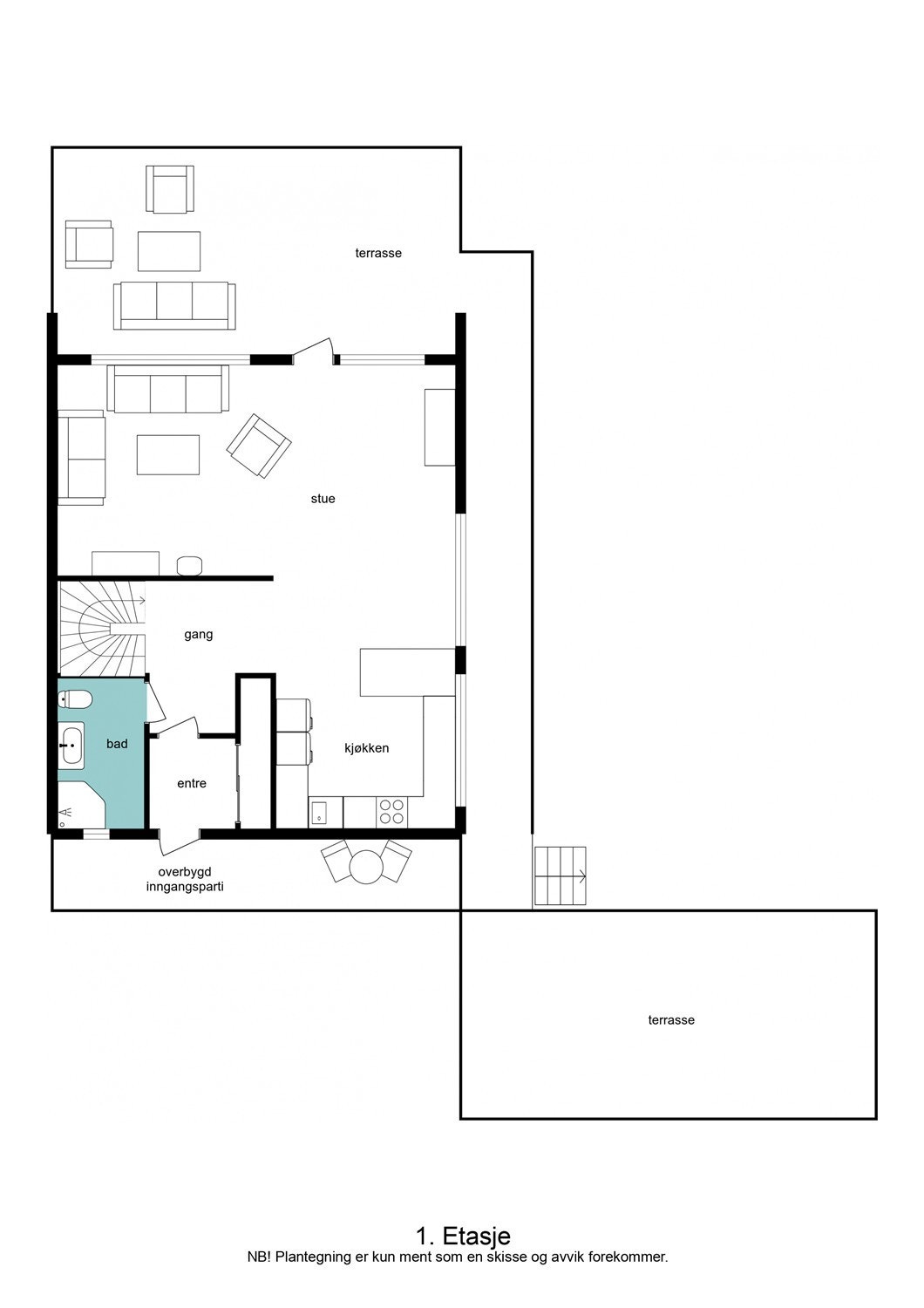
Møremegling har gleden av å presentere enebolig med garasje, Skaffarvegen 102.
Boligen inneholder 3 soverom, stue/kjøkken, terrasse mot nord og sør.
Boligen fremstår med en normal standard og står foran oppussing for ny eier.
Det er oppført garasje på ca 37 kvm på eiendommen og under hele boligen er det lagerplass med rom og krypkjeller.
Eiendommen er pent opparbeidet med hageareal, og ligger i en lite trafikkert sidegate med gangavstand til dagligvarebutikk, skoler og barnehage.
Flott utsikt
Husk å lese salgsoppgaven nøye
Velkommen til visning - husk påmelding
Boligen inneholder 3 soverom, stue/kjøkken, terrasse mot nord og sør.
Boligen fremstår med en normal standard og står foran oppussing for ny eier.
Det er oppført garasje på ca 37 kvm på eiendommen og under hele boligen er det lagerplass med rom og krypkjeller.
Eiendommen er pent opparbeidet med hageareal, og ligger i en lite trafikkert sidegate med gangavstand til dagligvarebutikk, skoler og barnehage.
Flott utsikt
Husk å lese salgsoppgaven nøye
Velkommen til visning - husk påmelding
NB: Knappen for å vise hele beskrivelsen har kun en visuell effekt.
NB: Knappen for å vise hele beskrivelsen har kun en visuell effekt.
Salgsoppgaven beskriver vesentlig og lovpålagt informasjon om eiendommen
Se komplett salgsoppgaveNyttige lenker
Nærområdet
Møremegling avd. Ålesund
En del av Sparebanken Møre
Annonseinformasjon
| FINN-kode | 432020713 |
|---|---|
| Sist endret | 24. nov. 2025 09:19 |
| Referanse | ME700.25151 |
Annonsene kan være mangelfulle i forhold til lovpålagt opplysningsplikt. Før bindende avtale inngås oppfordres interessenter til å innhente komplett informasjon fra meglerforetaket, selger eller utleier.































