Bildegalleri

Rødtvetveien 34 presenteres av EIE Eiendomsmegling ved Lone Marie Trandem.
Solgt
Rødtvet
Oppussingsobjekt: Lys og praktisk 2-roms med med potensial. Stor, innglasset balkong. Nærhet til marka. Parkeringsleie*
Prisantydning3 490 000 kr
Nøkkelinfo
- Boligtype
- Leilighet
- Eieform
- Andel
- Soverom
- 1
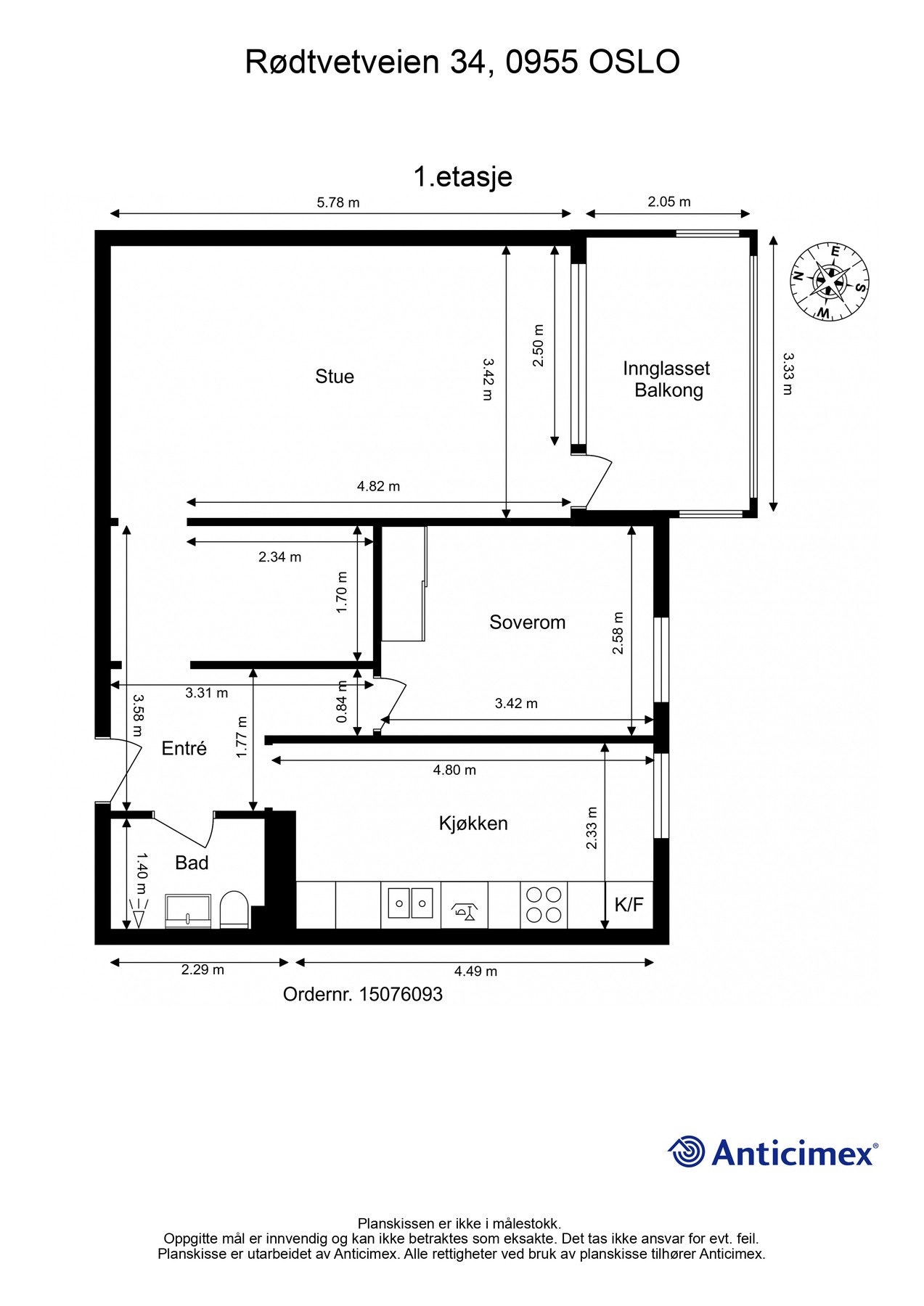
- Internt bruksareal
- 55 m² (BRA-i)
- Bruksareal
- 70 m²
- Eksternt bruksareal
- 8 m² (BRA-e)
- Innglasset balkong
- 7 m² (BRA-b)
- Byggeår
- 1962
- Energimerking
- G - Rød
- Rom
- 2
- Tomteareal
- 15 814 m²
Fasiliteter
Balkong/Terrasse
Kabel-TV
Offentlig vann/kloakk
Parkett
Turterreng
Vaktmester-/vektertjeneste
Sentralt
Bredbåndstilknytning
Rolig
Om boligen
Velkommen til Rødtvetveien 34 - En lys og praktisk 2-roms andelsleilighet med innholdsrik planløsning. God internbeliggenhet i en høy 1. etasje i kombinasjon med store vindusflater som slipper inn rikelig med naturlig lys, skaper et trivelig hjem. Leiligheten har oppussingsbehov, men til gjengjeld får du formet drømmehjemmet etter egne ønsker.
- Oppussingsbehov
- Høy 1. etasje
- Innholdsrik og god planløsning
- Stor stue med flere innredningsmuligheter
- Praktisk separat kjøkken
- Godt med oppbevaringsplass
- To disponible kjellerboder på til sammen 8 kvm
- A-konto fyring og varmtvann, samt kabel-TV og internett inkludert
- Mulighet for leie av parkeringsplass etter venteliste
- Ingen forkjøpsrett
- Lave omkostninger
- Kort veg til service- og kollektivtilbud
Bakkely borettslag har en rolig og tilbaketrukket beliggenhet i et veletablert boligområde. Her får du et idyllisk fellesområde med plen og beplantning, samtidig som veien er kort til flotte turområder.
- Oppussingsbehov
- Høy 1. etasje
- Innholdsrik og god planløsning
- Stor stue med flere innredningsmuligheter
- Praktisk separat kjøkken
- Godt med oppbevaringsplass
- To disponible kjellerboder på til sammen 8 kvm
- A-konto fyring og varmtvann, samt kabel-TV og internett inkludert
- Mulighet for leie av parkeringsplass etter venteliste
- Ingen forkjøpsrett
- Lave omkostninger
- Kort veg til service- og kollektivtilbud
Bakkely borettslag har en rolig og tilbaketrukket beliggenhet i et veletablert boligområde. Her får du et idyllisk fellesområde med plen og beplantning, samtidig som veien er kort til flotte turområder.
NB: Knappen for å vise hele beskrivelsen har kun en visuell effekt.
NB: Knappen for å vise hele beskrivelsen har kun en visuell effekt.
Salgsoppgaven beskriver vesentlig og lovpålagt informasjon om eiendommen
Se komplett salgsoppgaveNyttige lenker
Nærområdet
Mekleriet Oslo
Annonseinformasjon
| FINN-kode | 431503224 |
|---|---|
| Sist endret | 02. nov. 2025 14:39 |
| Referanse | 99251350 |
Annonsene kan være mangelfulle i forhold til lovpålagt opplysningsplikt. Før bindende avtale inngås oppfordres interessenter til å innhente komplett informasjon fra meglerforetaket, selger eller utleier.

































