Bildegalleri

Velkommen til Laguneveien 1A, en romslig enebolig innerst i rolig blindvei på Årum, presentert av Nvar G. Helan v/DNB Eiendom Fredrikstad.
ÅRUM
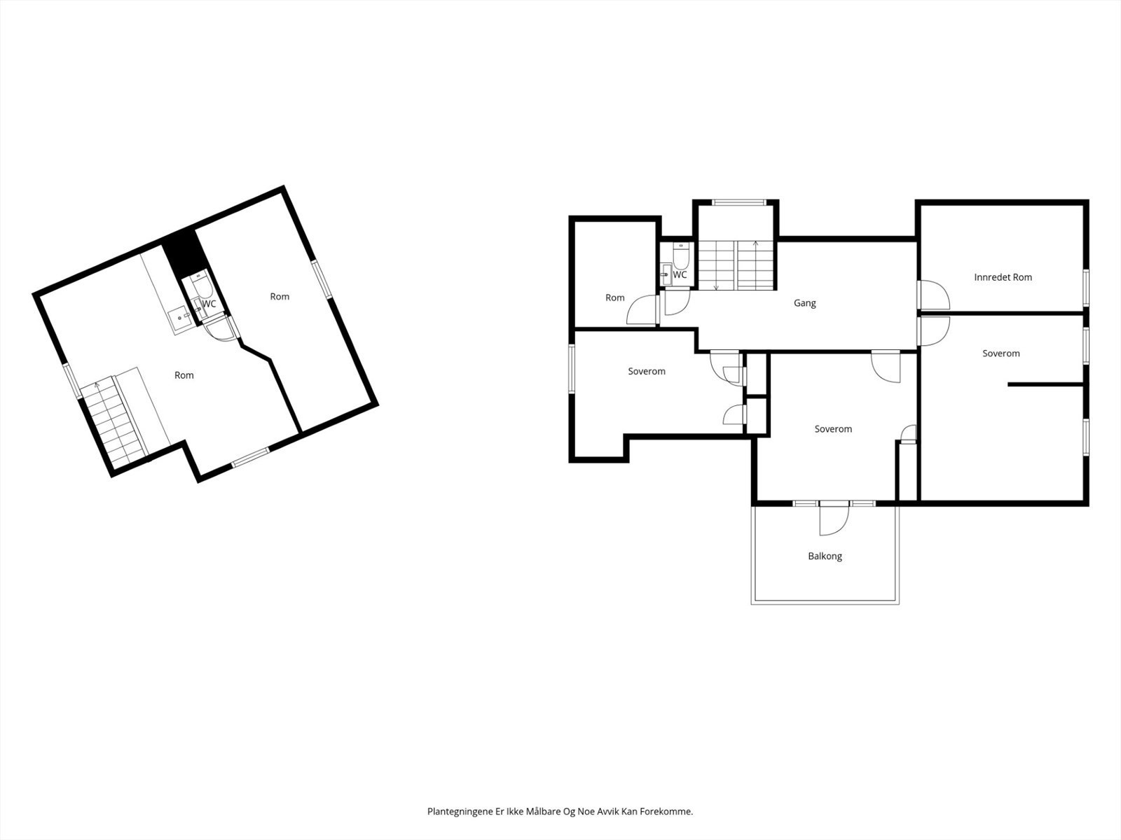
Oppusset familievennlig enebolig i rolige omgivelser på Årum | 6 soverom | Flere uteplasser | Garasje
Prisantydning5 290 000 kr
Nøkkelinfo
- Boligtype
- Enebolig
- Eieform
- Eier (Selveier)
- Soverom
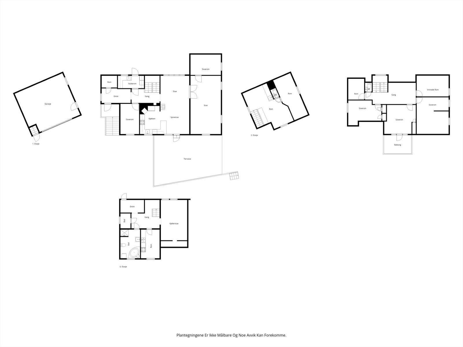
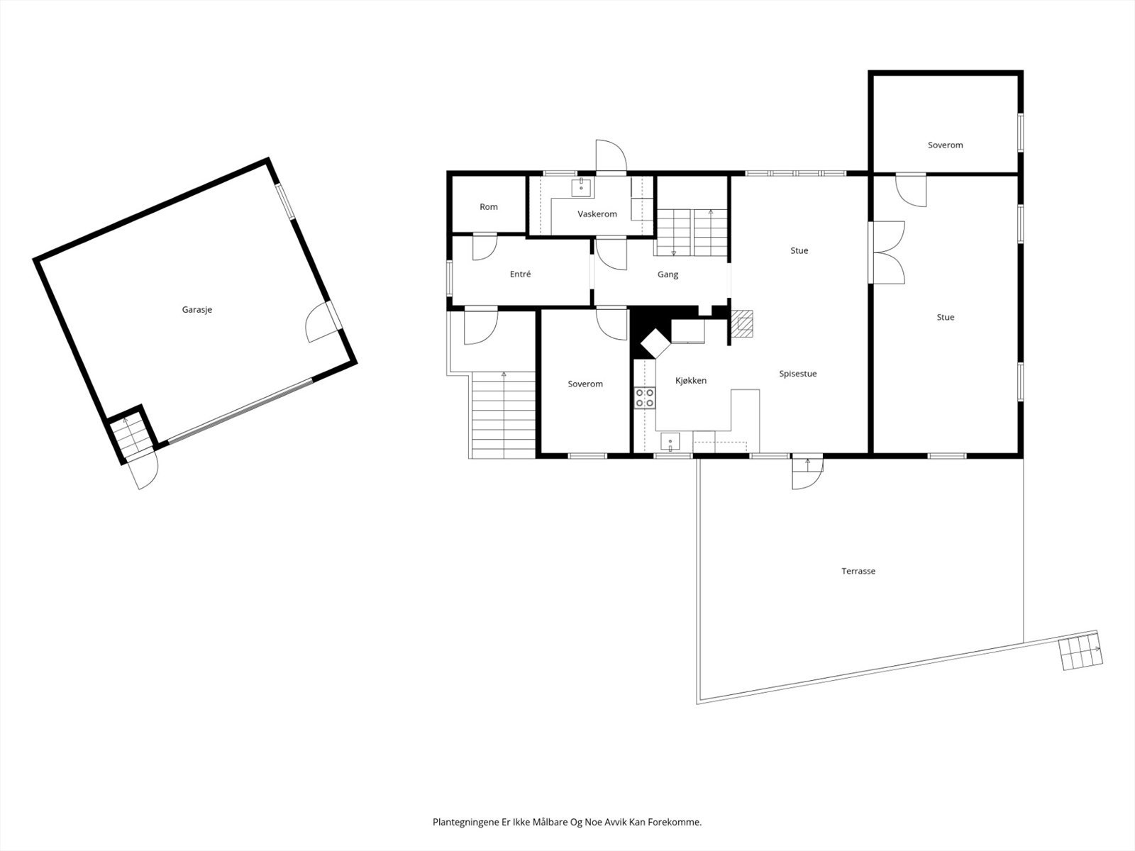
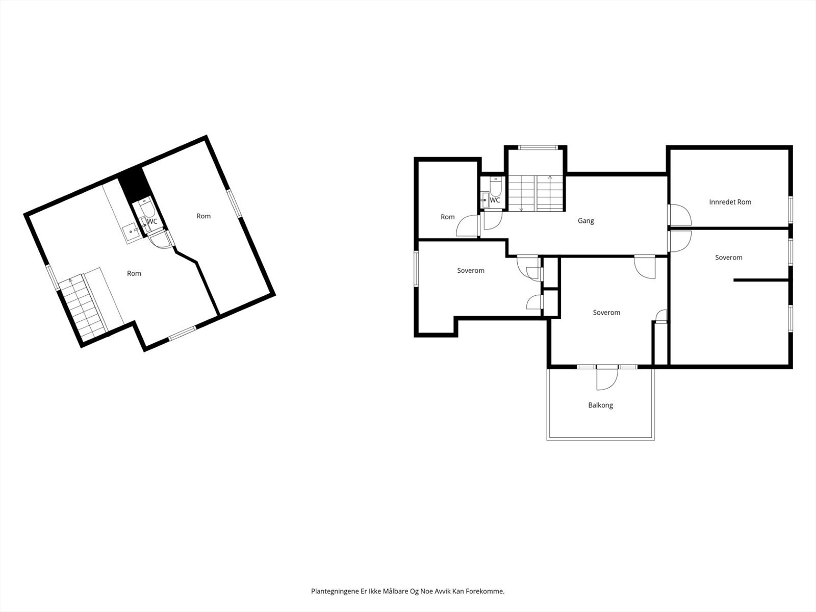
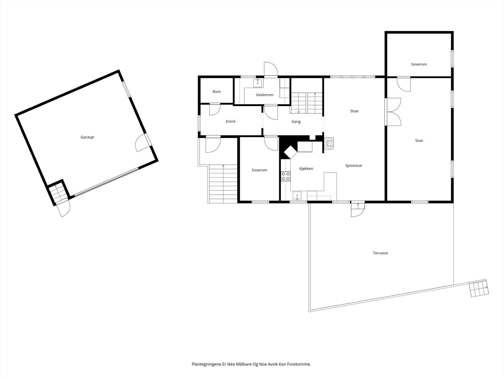
- 6
- Internt bruksareal
- 235 m² (BRA-i)
- Bruksareal
- 301 m²
- Eksternt bruksareal
- 66 m² (BRA-e)
- Balkong/Terrasse
- 51 m² (TBA)
- Etasje
- 3
- Byggeår
- 1963
- Rom
- 7
- Tomteareal
- 605 m² (eiet)
Fasiliteter
Balkong/Terrasse
Barnevennlig
Bredbåndstilknytning
Garasje/P-plass
Hage
Offentlig vann/kloakk
Peis/Ildsted
Rolig
Turterreng
Om boligen
Velkommen til Laguneveien 1A, en romslig enebolig innerst i rolig blindvei på Årum, presentert av Nvar G. Helan v/DNB Eiendom Fredrikstad.
Her bor du nær barnehager, skole, buss og Glommastien.
Boligen er oppført i 1963 med tilbygg i 1998 og 2005, og byr på:
6 soverom, to bad, eget vaskerom, lys stue med vedovn og kjøkken med spiseplass. De senere årene er det gjort flere oppgraderinger, bl.a. ny varmtvannsbereder (2025), ny peisovn (2024), byttede kledningsbord, utbedring av grunnmur, nye terrassebord og overflate oppussing.
Her bor du nær barnehager, skole, buss og Glommastien.
Boligen er oppført i 1963 med tilbygg i 1998 og 2005, og byr på:
6 soverom, to bad, eget vaskerom, lys stue med vedovn og kjøkken med spiseplass. De senere årene er det gjort flere oppgraderinger, bl.a. ny varmtvannsbereder (2025), ny peisovn (2024), byttede kledningsbord, utbedring av grunnmur, nye terrassebord og overflate oppussing.
- Oppusset.
- Vedovn fra 2024.
- Garasje med elektrisk port.
- Varmtvannsbereder fra 2025.
- Innerst i barnevennlig blindvei.
- 6 soverom, 2 bad og vaskerom.
- Nær buss, skole og barnehager.
- Stor vestvendt terrasse ca. 43 m².
NB: Knappen for å vise hele beskrivelsen har kun en visuell effekt.
NB: Knappen for å vise hele beskrivelsen har kun en visuell effekt.
Salgsoppgaven beskriver vesentlig og lovpålagt informasjon om eiendommen
Se komplett salgsoppgaveNyttige lenker
Nærområdet
DNB Eiendom AS
Fra hjem til hjem
Annonseinformasjon
| FINN-kode | 431350278 |
|---|---|
| Sist endret | 20. okt. 2025 09:16 |
| Referanse | 217250042 |
Annonsene kan være mangelfulle i forhold til lovpålagt opplysningsplikt. Før bindende avtale inngås oppfordres interessenter til å innhente komplett informasjon fra meglerforetaket, selger eller utleier.











































