Bildegalleri

Velkommen til Drammensveien 114 - Presentert av Marius Iversen v/ Eiendomsmegler Krogsveen.
Solgt
Frogner
Flott 3-roms topp- og hjørneleilighet med balkong. Parkeringsmulighet. Høy standard. Vv & fyring ink.
Prisantydning6 800 000 kr
Nøkkelinfo
- Boligtype
- Leilighet
- Eieform
- Eier (Selveier)
- Soverom
- 2
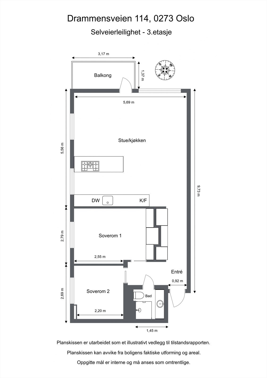
- Internt bruksareal
- 63 m² (BRA-i)
- Bruksareal
- 70 m²
- Eksternt bruksareal
- 7 m² (BRA-e)
- Balkong/Terrasse
- 4 m² (TBA)
- Etasje
- 3
- Byggeår
- 1960
- Energimerking
- E - Gul
- Rom
- 3
- Tomteareal
- 930 m²
Fasiliteter
Balkong/Terrasse
Barnevennlig
Bredbåndstilknytning
Fellesvaskeri
Garasje/P-plass
Kjæledyr tillatt
Ingen gjenboere
Offentlig vann/kloakk
Parkett
Peis/Ildsted
Sentralt
Utsikt
Om boligen
Velkommen til Drammensveien 114!
En moderne og lys to hjørneleilighet i toppetasjen med en solrik, usjenert balkong som har sol fra morgen til kveld. Sameiet har 10 parkeringsplasser for seksjonseierne med "Førstemann til mølla" prinsipp. Beliggenheten er svært attraktiv og sentral på Frogner/Skøyen, bare et steinkast fra Frognerparken. Området byr på et bredt utvalg av restauranter, kafeer og butikker, samt kort vei til Frognerkilen og Bygdøy med vakre badestrender og flotte turmuligheter. Her bor du midt i hjertet av et av Oslos mest ettertraktede områder!
Høydepunkter:
- Vv og fyring ink.
- God planløsning
- Store rom og rikelig med naturlig lys
- Hyggelig balkong med god utsikt
- Biopeis
- Parkeringsmulighet m/ellader
- Moderne innredet
- Sentral beliggenhet
En moderne og lys to hjørneleilighet i toppetasjen med en solrik, usjenert balkong som har sol fra morgen til kveld. Sameiet har 10 parkeringsplasser for seksjonseierne med "Førstemann til mølla" prinsipp. Beliggenheten er svært attraktiv og sentral på Frogner/Skøyen, bare et steinkast fra Frognerparken. Området byr på et bredt utvalg av restauranter, kafeer og butikker, samt kort vei til Frognerkilen og Bygdøy med vakre badestrender og flotte turmuligheter. Her bor du midt i hjertet av et av Oslos mest ettertraktede områder!
Høydepunkter:
- Vv og fyring ink.
- God planløsning
- Store rom og rikelig med naturlig lys
- Hyggelig balkong med god utsikt
- Biopeis
- Parkeringsmulighet m/ellader
- Moderne innredet
- Sentral beliggenhet
NB: Knappen for å vise hele beskrivelsen har kun en visuell effekt.
NB: Knappen for å vise hele beskrivelsen har kun en visuell effekt.
Salgsoppgaven beskriver vesentlig og lovpålagt informasjon om eiendommen
Se komplett salgsoppgaveNyttige lenker
Nærområdet
Krogsveen Majorstuen og Oslo Vest
Verdien av en god megler.
Annonseinformasjon
| FINN-kode | 431335138 |
|---|---|
| Sist endret | 25. des. 2025 11:34 |
| Referanse | KR40.25208 |
Annonsene kan være mangelfulle i forhold til lovpålagt opplysningsplikt. Før bindende avtale inngås oppfordres interessenter til å innhente komplett informasjon fra meglerforetaket, selger eller utleier.





























