Bildegalleri

Velkommen til Skjebergveien 145B på Klavestadhaugen!
Klavestadhaugen
Moderne halvpart av tomannsbolig - Byggeår 2018 - Tilbaketrukket og usjenert beliggenhet - Flotte uteplasser - Carport
Prisantydning3 590 000 kr
Nøkkelinfo
- Boligtype
- Tomannsbolig
- Eieform
- Eier (Selveier)
- Soverom
- 3
- Internt bruksareal
- 106 m² (BRA-i)
- Bruksareal
- 106 m²
- Eksternt bruksareal
- 5 m² (BRA-e)
- Balkong/Terrasse
- 121 m² (TBA)
- Byggeår
- 2018
- Energimerking
- B - Rød
- Rom
- 4
- Tomteareal
- 1 061 m² (eiet)
Fasiliteter
Barnevennlig
Balkong/Terrasse
Garasje/P-plass
Aircondition
Balansert ventilasjon
Om boligen
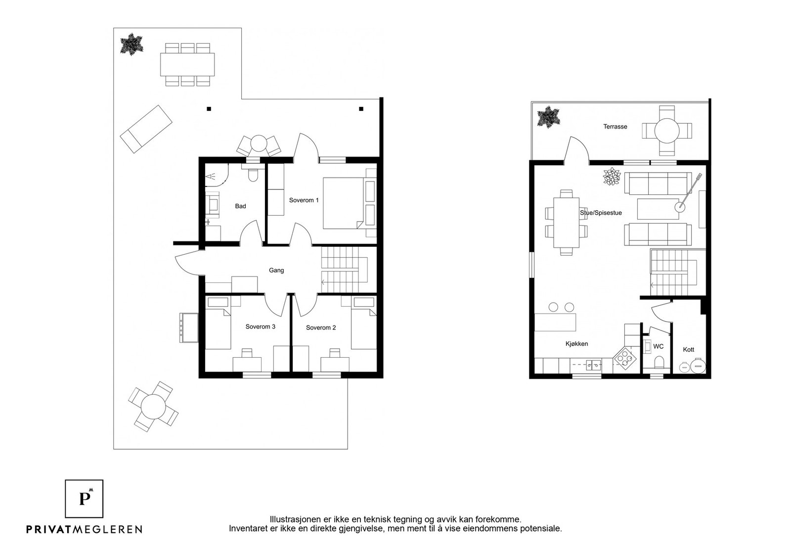
Dette er en vertikaldelt bolig på Klavestadhaugen, med praktiske løsninger og lettstelte utearealer. Skoler og barnehager ligger innenfor gangavstand, og like i nærheten er det en nyåpnet og flott Spar-butikk. Bussforbindelsene er gode, og det tar ikke mange minuttene før du er Sarpsborg sentrum. Eiendommen ligger vestvendt, og er tilbaketrukket fra Skjebergveien. Boligen ligger innerst på tomten, skjermet for trafikk og ferdsel.
Boligen er fra 2018, og har god planløsning. Soverommene er samlet i 1. etasje, og stue og kjøkken i 2. etasje. Det er store terrasser rundt hele boligen, og i 2. etasje er det veranda. Boligen er lys og innbydende, og holder gjennomført og helhetlig standard. Det er varmekabler i hele 1. etasje, og i 2. etasje er det varmepumpe.
Velkommen på visning!
Boligen er fra 2018, og har god planløsning. Soverommene er samlet i 1. etasje, og stue og kjøkken i 2. etasje. Det er store terrasser rundt hele boligen, og i 2. etasje er det veranda. Boligen er lys og innbydende, og holder gjennomført og helhetlig standard. Det er varmekabler i hele 1. etasje, og i 2. etasje er det varmepumpe.
Velkommen på visning!
NB: Knappen for å vise hele beskrivelsen har kun en visuell effekt.
NB: Knappen for å vise hele beskrivelsen har kun en visuell effekt.
Salgsoppgaven beskriver vesentlig og lovpålagt informasjon om eiendommen
Se komplett salgsoppgaveNyttige lenker
Nærområdet

PrivatMegleren Sarpsborg
Kun det beste på dine vegne
Annonseinformasjon
| FINN-kode | 431248164 |
|---|---|
| Sist endret | 19. des. 2025 15:04 |
| Referanse | 193250176 |
Annonsene kan være mangelfulle i forhold til lovpålagt opplysningsplikt. Før bindende avtale inngås oppfordres interessenter til å innhente komplett informasjon fra meglerforetaket, selger eller utleier.




























