Bildegalleri

Teigdalsvegen 47 presenteres av Aktiv Voss v/Heine Ystanes Osmo.
Stor enebolig på Evanger med mye potensiale | Baderom renovert i 2010 | Eldre låve på tomten | Pent opparbeidet uteareal
Prisantydning2 990 000 kr
Nøkkelinfo
- Boligtype
- Enebolig
- Eieform
- Eier (Selveier)
- Soverom
- 4
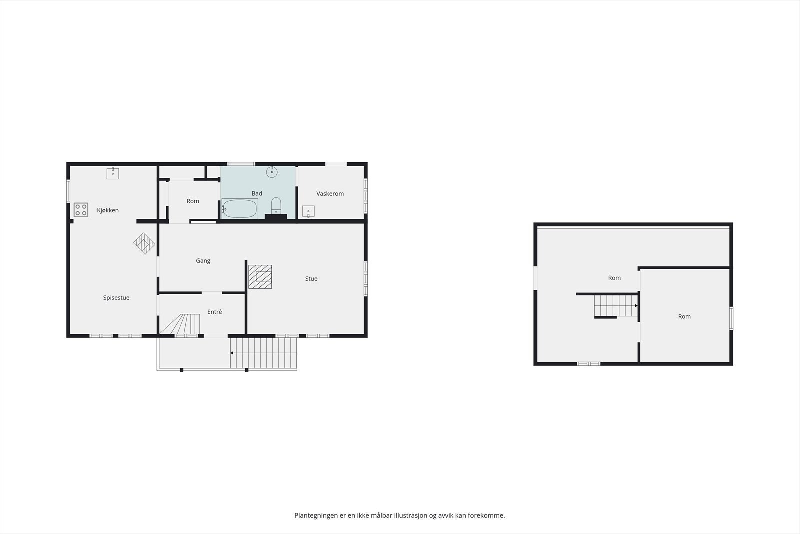
- Internt bruksareal
- 178 m² (BRA-i)
- Bruksareal
- 313 m²
- Eksternt bruksareal
- 135 m² (BRA-e)
- Balkong/Terrasse
- 41 m² (TBA)
- Etasje
- 3
- Byggeår
- 1920
- Energimerking
- G - Gul
- Rom
- 6
- Tomteareal
- 621 m² (eiet)
Fasiliteter
Balkong/Terrasse
Peis/Ildsted
Rolig
Utsikt
Fiskemulighet
Turterreng
Om boligen
Velkommen til Teigdalsvegen 47!
På eiendommen har du en innholdsrik enebolig, eldre låvebygg og en frittstående terrasse.
Huset byr på 4 romslige soverom, nyere bad (Ca. 2010), god lagringsplass og store oppholdsrom. I stuen kan du enkelt innrede med en større hjørnesofa, mediebenk og du har vedovn for oppvarming på kalde vinterdager. Kjøkkenet byr på godt med skap- og benkeplass med hvitevarer i nisje. Her bor du landlig og rolig, med god plass både inne og ute. Perfekt for deg som ønsker et hjem med sjel og potensial. Det er noe behov for oppgradering på eiendommen da på bl.a låven da denne ikke er gjort noe omfattende arbeid på i senere tid, men til gjengjeld kan du her sette ditt eget preg på en allerede sjarmerende eiendom. Biloppstillingsplass langs bilvei.
Velkommen til visning!
På eiendommen har du en innholdsrik enebolig, eldre låvebygg og en frittstående terrasse.
Huset byr på 4 romslige soverom, nyere bad (Ca. 2010), god lagringsplass og store oppholdsrom. I stuen kan du enkelt innrede med en større hjørnesofa, mediebenk og du har vedovn for oppvarming på kalde vinterdager. Kjøkkenet byr på godt med skap- og benkeplass med hvitevarer i nisje. Her bor du landlig og rolig, med god plass både inne og ute. Perfekt for deg som ønsker et hjem med sjel og potensial. Det er noe behov for oppgradering på eiendommen da på bl.a låven da denne ikke er gjort noe omfattende arbeid på i senere tid, men til gjengjeld kan du her sette ditt eget preg på en allerede sjarmerende eiendom. Biloppstillingsplass langs bilvei.
Velkommen til visning!
NB: Knappen for å vise hele beskrivelsen har kun en visuell effekt.
NB: Knappen for å vise hele beskrivelsen har kun en visuell effekt.
Salgsoppgaven beskriver vesentlig og lovpålagt informasjon om eiendommen
Se komplett salgsoppgaveNærområdet
Aktiv Voss
Annonseinformasjon
| FINN-kode | 431162264 |
|---|---|
| Sist endret | 16. okt. 2025 12:36 |
| Referanse | 1507250067 |
Annonsene kan være mangelfulle i forhold til lovpålagt opplysningsplikt. Før bindende avtale inngås oppfordres interessenter til å innhente komplett informasjon fra meglerforetaket, selger eller utleier.

























































