Bildegalleri

Aktiv Eiendomsmegling v/ Erik Ulseth ønsker velkommen til Teistholmvegen 39! Foto: André T. Ormset-Paredes
Romslig enebolig med sokkelleilighet 8.000,-/mnd., utsikt, garasje og sentral beliggenhet på Goma.
Prisantydning4 250 000 kr
Nøkkelinfo
- Boligtype
- Enebolig
- Eieform
- Eier (Selveier)
- Soverom
- 5
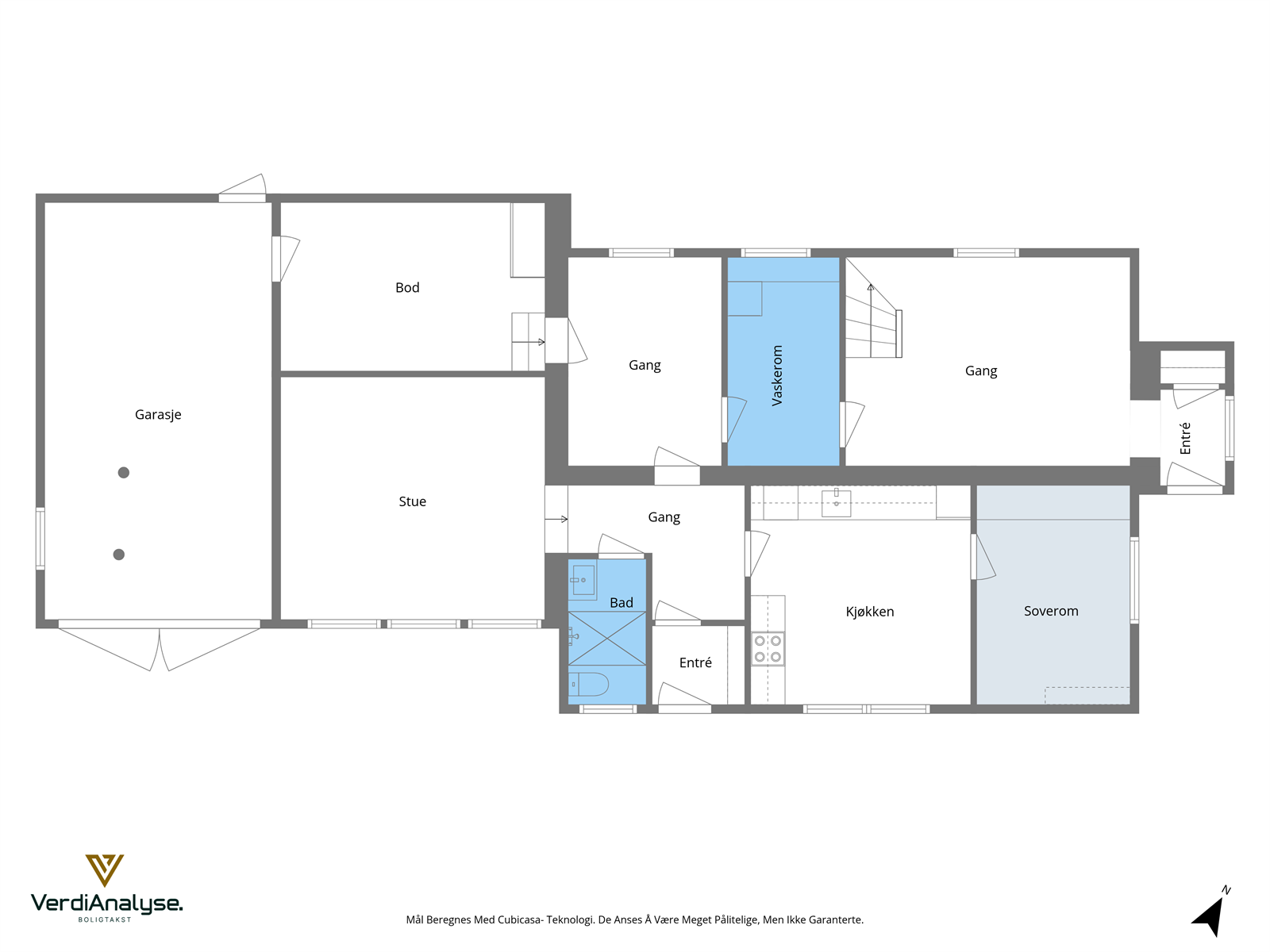
- Internt bruksareal
- 257 m² (BRA-i)
- Bruksareal
- 257 m²
- Balkong/Terrasse
- 36 m² (TBA)
- Byggeår
- 1953
- Energimerking
- G - Oransje
- Rom
- 7
- Tomteareal
- 835 m² (eiet)
Fasiliteter
Balkong/Terrasse
Barnevennlig
Garasje/P-plass
Offentlig vann/kloakk
Peis/Ildsted
Sentralt
Utsikt
Turterreng
Visning
Ved annonsert visning er det viktig at du melder deg på visningen ved å bruke visningspåmeldingsknappen eller kontakter megler. Annonserte visninger hvor det ikke er noen påmeldte innen kl. 16.00 dagen før visningsdagen vil ikke bli avholdt.
For visninger utover dette, ta direkte kontakt med megler.
VisningspåmeldingOm boligen
Aktiv Eiendomsmegling v/ Erik Ulseth har gleden av å presentere Teistholmveien 39, en innbydende enebolig beliggende i et etablert boligområde på Goma. Her får du en bolig med sjel og sjarm, fordelt over tre etasjer, med rom for hele familien og god plass til både hverdag og sosiale sammenkomster.
Hoveddelen byr på et moderne kjøkken, flislagt bad, romslige soverom og en lys og trivelig stue/ spisestue med utgang til solrik terrasse. Fra terrassen kan du nyte varme sommerdager sammen med fin utsikt mot Nordsundet og Tustna. Deler av terrassen er overbygd, og her kan man nyte uterommet i ly for regn, vind eller sol. I tillegg har boligen en praktisk sokkelleilighet med egen inngang. Eiendommen har egen garasje, gode parkeringsmuligheter og kort vei til det meste man trenger i hverdagen.
Hoveddelen byr på et moderne kjøkken, flislagt bad, romslige soverom og en lys og trivelig stue/ spisestue med utgang til solrik terrasse. Fra terrassen kan du nyte varme sommerdager sammen med fin utsikt mot Nordsundet og Tustna. Deler av terrassen er overbygd, og her kan man nyte uterommet i ly for regn, vind eller sol. I tillegg har boligen en praktisk sokkelleilighet med egen inngang. Eiendommen har egen garasje, gode parkeringsmuligheter og kort vei til det meste man trenger i hverdagen.
NB: Knappen for å vise hele beskrivelsen har kun en visuell effekt.
NB: Knappen for å vise hele beskrivelsen har kun en visuell effekt.
Salgsoppgaven beskriver vesentlig og lovpålagt informasjon om eiendommen
Se komplett salgsoppgaveNærområdet
Aktiv Kristiansund
Annonseinformasjon
| FINN-kode | 431148202 |
|---|---|
| Sist endret | 05. jan. 2026 16:17 |
| Referanse | 1601250102 |
Annonsene kan være mangelfulle i forhold til lovpålagt opplysningsplikt. Før bindende avtale inngås oppfordres interessenter til å innhente komplett informasjon fra meglerforetaket, selger eller utleier.






































