Bildegalleri

EIE eiendomsmegling ved Alexander Reitan har gleden av å presentere Paul Fjermstad Veg 55! Foto: Matthias Herzog.

Tyholt

Delikat og velholdt 2-roms eierleilighet | Lave FK | Nytt kjøkken i 2025 | Romslig balkong | 3 boder

Prisantydning3 590 000 kr
Totalpris
3 691 050 kr
Omkostninger
101 050 kr
Felleskost/mnd.
667 kr
Kommunale avg.
15 528 kr per år
Formuesverdi
617 216 kr

Nøkkelinfo

Boligtype
Leilighet
Eieform
Eier (Selveier)
Soverom
1
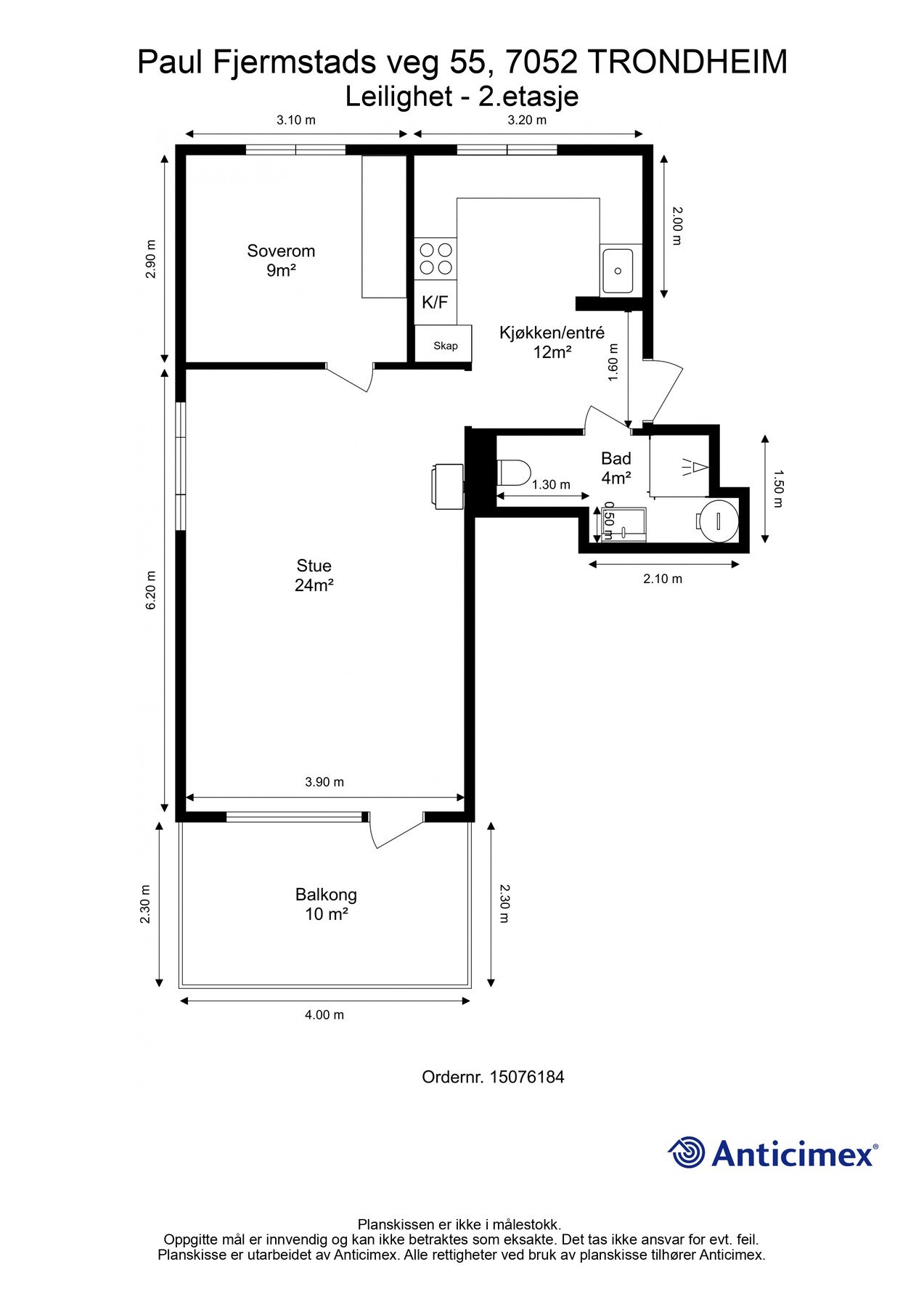
Internt bruksareal
53 m² (BRA-i)
Bruksareal
71 m²
Eksternt bruksareal
18 m² (BRA-e)
Balkong/Terrasse
10 m² (TBA)
Etasje
2
Byggeår
1939
Energimerking
C - Gul
Rom
2
Tomt
Eiet

Les mer om bruksareal her

Fasiliteter

Barnevennlig
Balkong/Terrasse
Garasje/P-plass
Kabel-TV
Offentlig vann/kloakk
Peis/Ildsted
Sentralt
Bredbåndstilknytning
Moderne
Rolig

Visning

Ta kontakt for å avtale visning.Visningspåmelding

Om boligen

EIE eiendomsmegling ved Alexander Reitan har gleden av å presentere Paul Fjermstads veg 55! En delikat og velholdt 2-roms selveierleilighet i et hyggelig nabolag

Leiligheten har en god planløsning og er påkostet de senere årene med nytt bad i 2020 og kjøkken i 2025. Energimerkingen er betydelig oppgradert med nye vinduer i 2024, varmepumpe og etterisolert tak. Gulv og overflater er nye fra 2025, og en fantastisk nypusset teglsteinsmur gir leiligheten en unik og elegant helhet. Her får du en vestvendt balkong med unik utsikt og gode solforhold. Kort vei til sentrum, skoler, barnehager, buss og dagligvare gjør hverdagen enkel og praktisk. Leiligheten har hage, god bodplass og en meget funksjonell snekkerbod.

Høydepunkter:
- Kjøkken fra 2025
- Baderom fra 2020
- Lave FK
- Vestvendt balkong
- Varmepumpe i stue fra 2024
- Peisovn
- 3 boder

Velkommen til en hyggelig visning!

Salgsoppgaven beskriver vesentlig og lovpålagt informasjon om eiendommen

Se komplett salgsoppgave

Nærområdet

Annonseinformasjon

FINN-kode431143672
Sist endret17. des. 2025 05:01
Referanse33251181

Rapporter annonse

Annonsene kan være mangelfulle i forhold til lovpålagt opplysningsplikt. Før bindende avtale inngås oppfordres interessenter til å innhente komplett informasjon fra meglerforetaket, selger eller utleier.