Bildegalleri

Aktiv Eiendomsmegling v/ Maria A. Klinge ønsker velkommen til Vestsideveien 2510! Foto: André T. Ormset-Paredes
Sjarmerende enebolig i naturskjønne omgivelser på Smøla.
Prisantydning1 850 000 kr
Nøkkelinfo
- Boligtype
- Enebolig
- Eieform
- Eier (Selveier)
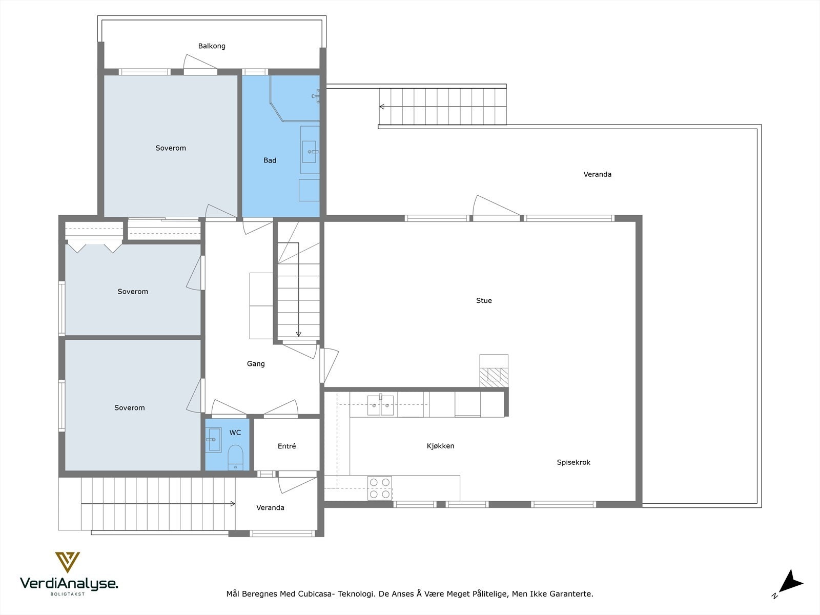
- Soverom
- 3
- Internt bruksareal
- 197 m² (BRA-i)
- Bruksareal
- 221 m²
- Eksternt bruksareal
- 24 m² (BRA-e)
- Byggeår
- 1974
- Energimerking
- F - Gul
- Rom
- 4
- Tomteareal
- 517 m² (eiet)
Fasiliteter
Balkong/Terrasse
Barnevennlig
Garasje/P-plass
Hage
Peis/Ildsted
Rolig
Utsikt
Visning
Ved annonsert visning er det viktig at du melder deg på visningen ved å bruke visningspåmeldingsknappen eller kontakter megler. Annonserte visninger hvor det ikke er noen påmeldte innen kl. 16.00 dagen før visningsdagen vil ikke bli avholdt.
For visninger utover dette, ta direkte kontakt med megler.
VisningspåmeldingOm boligen
Velkommen til et hjem med lun atmosfære og god plass til både hverdag og kos! Denne innholdsrike eneboligen ligger idyllisk og fredelig til på Råket på Smøla, med gåavstand til barnehage og dagligvarebutikk. Kort kjørevei til skole. Huset byr på en klassisk planløsning med romslige oppholdsrom, koselig stue med utgang til veranda og et lyst kjøkken med god plass til matlaging og hyggelige måltider. Med totalt tre soverom, kjellerstue, boder og vaskerom finnes det rikelig med plass til både familieliv og hobbyer. Her kan du nyte landlig ro, frisk sjøluft og et trygt nabolag, samtidig som byens servicetilbud i Kristiansund bare er en drøy kjøretur eller buss- og hurtigbåttur unna. Et hjem med sjel og mange muligheter!
NB: Knappen for å vise hele beskrivelsen har kun en visuell effekt.
NB: Knappen for å vise hele beskrivelsen har kun en visuell effekt.
Salgsoppgaven beskriver vesentlig og lovpålagt informasjon om eiendommen
Se komplett salgsoppgaveNærområdet
Aktiv Kristiansund
Annonseinformasjon
| FINN-kode | 431067687 |
|---|---|
| Sist endret | 19. nov. 2025 14:17 |
| Referanse | 1601250106 |
Annonsene kan være mangelfulle i forhold til lovpålagt opplysningsplikt. Før bindende avtale inngås oppfordres interessenter til å innhente komplett informasjon fra meglerforetaket, selger eller utleier.



































