Bildegalleri

Velkommen til Garmovegen 8D - en moderne enebolig over 2 plan med carport - Foto: Romeriksfotografene (Hege Leren) Digitalt illustrert vinterbilde
Vestvang/Eidsvoll
Ny og meget tiltalende enebolig fra 2025 med høy standard, moderne preg og gjennomtenkte detaljer. Flytt rett inn!
Prisantydning5 890 000 kr
Nøkkelinfo
- Boligtype
- Enebolig
- Eieform
- Eier (Selveier)
- Soverom
- 3
- Internt bruksareal
- 126 m² (BRA-i)
- Bruksareal
- 150 m²
- Eksternt bruksareal
- 24 m² (BRA-e)
- Balkong/Terrasse
- 46 m² (TBA)
- Etasje
- 2
- Byggeår
- 2025
- Energimerking
- C - Oransje
- Rom
- 5
- Tomteareal
- 435 m² (eiet)
Fasiliteter
Takterrasse
Balkong/Terrasse
Barnevennlig
Garasje/P-plass
Hage
Offentlig vann/kloakk
Parkett
Peis/Ildsted
Sentralt
Fiskemulighet
Turterreng
Balansert ventilasjon
Visning
For å delta på visning, ber vi om at du melder deg på. Da sikrer vi at du får nødvendig informasjon og at det er satt av tilstrekkelig med tid.
Visning utgår dersom det ikke er noen påmeldte.
Hvis tidspunkt ikke passer, ta kontakt med megler for privatvisning.
VisningspåmeldingOm boligen
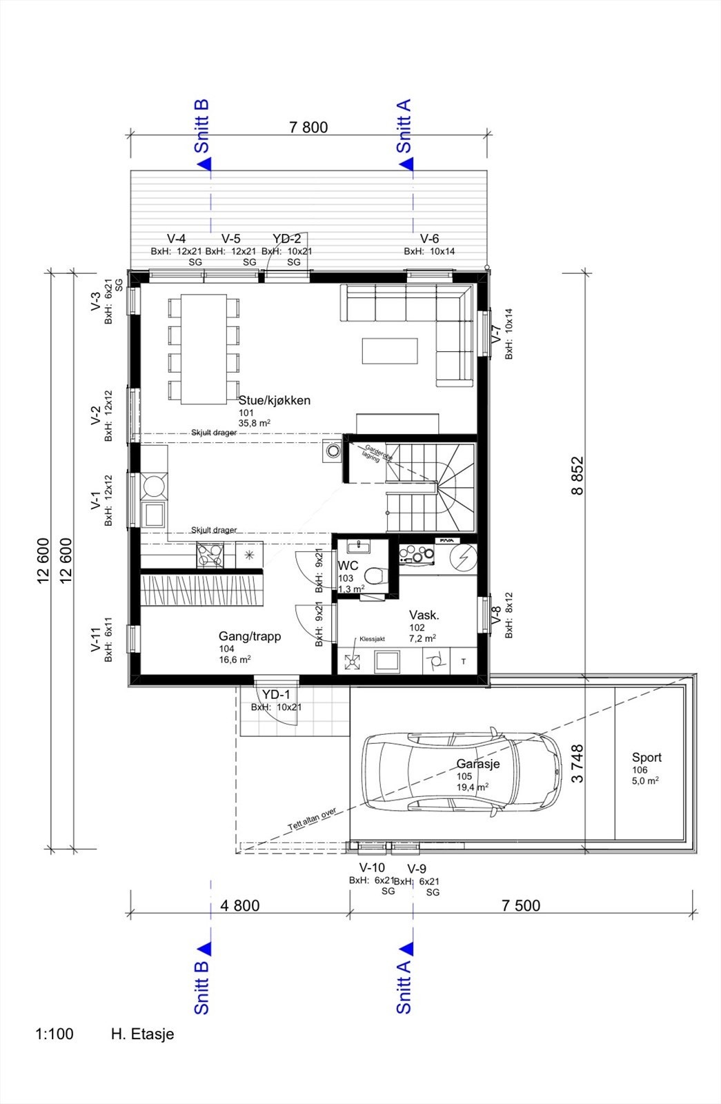
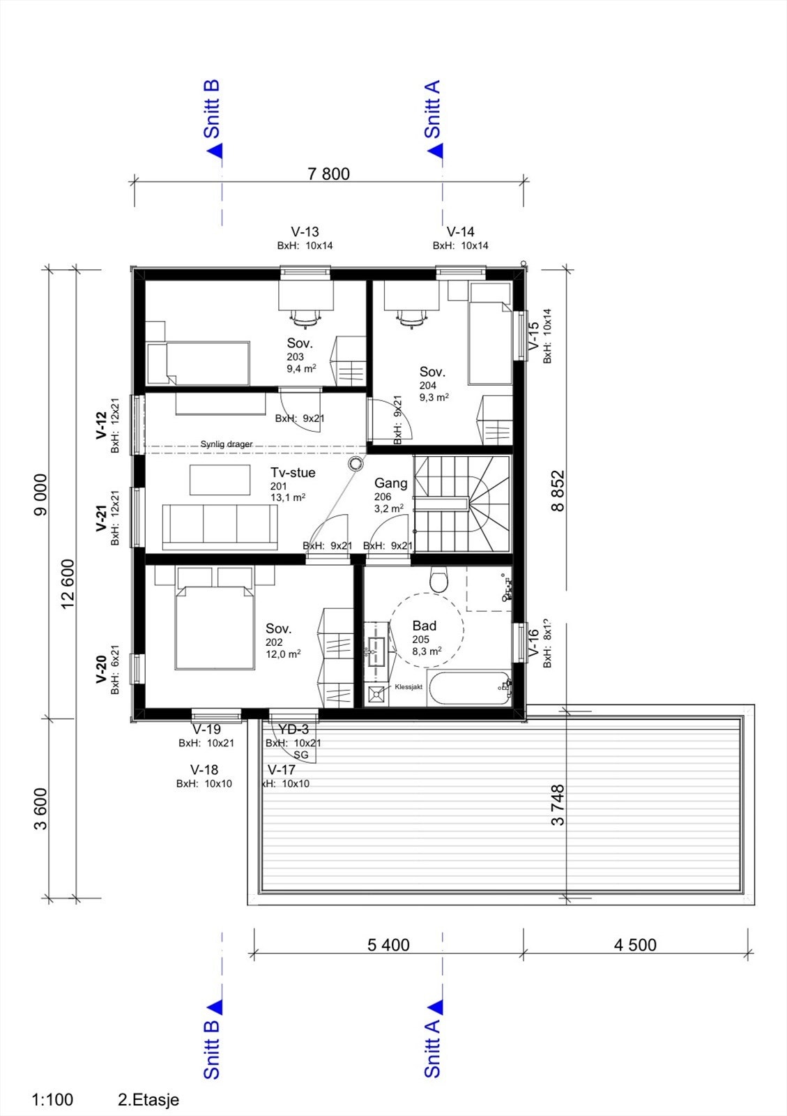
Garmovegen 8D er en moderne enebolig over 2 plan beliggende på Garmotunet i Eidsvoll. Boligen er nylig oppført og fremstår som ny . Her kan du flytte rett inn og nyte et hjem med lyse, åpne løsninger og smakfulle materialvalg. Perfekt for deg som ønsker det lille ekstra i hverdagen. Inneholder åpen stue/kjøkkenløsning, 3 romslige soverom, tv-stue, bad, wc, vaskerom. Fra stuen har du utgang til terrasse, og fra det ene soverommet har du utgang til en flott takterrasse. Carport med mye lagringsplass. På fellesområdet finner du lekeplass for barna og flotte uteplasser. Her bor du i et attraktivt område med kort gangavstand til skole, barnehage og dagligvare. Det er få minutter kjøring enten du tar turen til Råholt eller Sundet. Velkommen til visning.
NB: Knappen for å vise hele beskrivelsen har kun en visuell effekt.
NB: Knappen for å vise hele beskrivelsen har kun en visuell effekt.
Salgsoppgaven beskriver vesentlig og lovpålagt informasjon om eiendommen
Se komplett salgsoppgaveNyttige lenker
Nærområdet
Krogsveen Jessheim
Verdien av en god megler.
Annonseinformasjon
| FINN-kode | 431036289 |
|---|---|
| Sist endret | 16. jan. 2026 16:36 |
| Referanse | KR63.25212 |
Annonsene kan være mangelfulle i forhold til lovpålagt opplysningsplikt. Før bindende avtale inngås oppfordres interessenter til å innhente komplett informasjon fra meglerforetaket, selger eller utleier.

























