Bildegalleri

Stue/kjøkken i åpen løsning
Stokke
Romslig og sentralt beliggende selveierleilighet i 1.etg! 3 sov - innredet underetasje - garasje - stor solrik terrasse
Prisantydning3 090 000 kr
Nøkkelinfo
- Boligtype
- Leilighet
- Eieform
- Eier (Selveier)
- Soverom
- 3
- Internt bruksareal
- 65 m² (BRA-i)
- Bruksareal
- 110 m²
- Eksternt bruksareal
- 45 m² (BRA-e)
- Balkong/Terrasse
- 24 m² (TBA)
- Etasje
- 1
- Byggeår
- 1987
- Energimerking
- E - Oransje
- Rom
- 3
- Tomteareal
- 1 650 m² (festet)
- Festeavgift
- 2 037 kr
Fasiliteter
Balkong/Terrasse
Barnevennlig
Garasje/P-plass
Kjæledyr tillatt
Ingen gjenboere
Kabel-TV
Offentlig vann/kloakk
Sentralt
Turterreng
Visning
For å delta på visning, ber vi om at du melder deg på. Da sikrer vi at du får nødvendig informasjon og at det er satt av tilstrekkelig med tid. Kontakt megler dersom annet tidspunkt ønskes. Husk å lese salgsoppgaven før visningen, så du stiller forberedt. NB. Visning utgår dersom det ikke er noen påmeldte.
Ønsker du kun å bli holdt orientert, kan du fra eiendommens hjemmeside få varsel om solgtpris, eller kontakte megler.
VisningspåmeldingOm boligen
Velkommen til Tassebekkveien 5A!
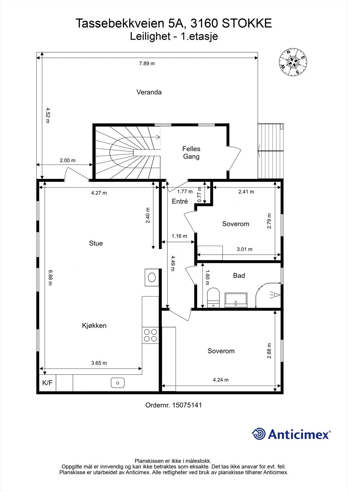
Dette er den perfekte leilighet for deg som ønsker å flytte til et rolig og koselig bomiljø. Tiltalende leilighet som er oppmalt i en moderne fargepalett med en god planløsning. Leiligheten ligger i byggets 1.etasje med adkomst fra bakkeplan og er inndelt med entré, kombinert kjøkken/stue med utgang til romslig terrasse, 2 soverom og bad. Underetasjen er innredet med kjellerstue/soverom, vaskerom og bodplass. Biloppstillingsplass i felles garasjerekke.
Her bor du sentralt til i Stokke sentrum med enkel tilgang til forretninger, jernbanestasjonen og gode bussforbindelser. Gangavstand til barneskole og ungdomsskole. Flotte turområder er det også i nærområdet som Bokemoa skogen og Storås.
Velkommen til en hyggelig visning!
Dette er den perfekte leilighet for deg som ønsker å flytte til et rolig og koselig bomiljø. Tiltalende leilighet som er oppmalt i en moderne fargepalett med en god planløsning. Leiligheten ligger i byggets 1.etasje med adkomst fra bakkeplan og er inndelt med entré, kombinert kjøkken/stue med utgang til romslig terrasse, 2 soverom og bad. Underetasjen er innredet med kjellerstue/soverom, vaskerom og bodplass. Biloppstillingsplass i felles garasjerekke.
Her bor du sentralt til i Stokke sentrum med enkel tilgang til forretninger, jernbanestasjonen og gode bussforbindelser. Gangavstand til barneskole og ungdomsskole. Flotte turområder er det også i nærområdet som Bokemoa skogen og Storås.
Velkommen til en hyggelig visning!
NB: Knappen for å vise hele beskrivelsen har kun en visuell effekt.
NB: Knappen for å vise hele beskrivelsen har kun en visuell effekt.
Salgsoppgaven beskriver vesentlig og lovpålagt informasjon om eiendommen
Se komplett salgsoppgaveNyttige lenker
Nærområdet
Krogsveen Sandefjord
Velkommen til en enklere boligreise.
Annonseinformasjon
| FINN-kode | 431020534 |
|---|---|
| Sist endret | 10. des. 2025 11:19 |
| Referanse | KR22.25331 |
Annonsene kan være mangelfulle i forhold til lovpålagt opplysningsplikt. Før bindende avtale inngås oppfordres interessenter til å innhente komplett informasjon fra meglerforetaket, selger eller utleier.







































