Bildegalleri

EiendomsMegler 1 v/ Patrick Gulmælæ presenterer Leirbakkevegen 14!
Lunde- Bjerva
Innholdsrik enebolig med 4 sov og integrert garasje, samt frittstående dobbelgarasje.- Barnevennlig og gode solforhold!
Prisantydning2 100 000 kr
Nøkkelinfo
- Boligtype
- Enebolig
- Eieform
- Eier (Selveier)
- Soverom
- 4
- Internt bruksareal
- 163 m² (BRA-i)
- Bruksareal
- 218 m²
- Eksternt bruksareal
- 55 m² (BRA-e)
- Balkong/Terrasse
- 50 m² (TBA)
- Byggeår
- 1968
- Energimerking
- F - Oransje
- Tomteareal
- 1 102 m² (eiet)
Fasiliteter
Balkong/Terrasse
Barnevennlig
Garasje/P-plass
Hage
Kjæledyr tillatt
Offentlig vann/kloakk
Peis/Ildsted
Rolig
Sentralt
Visning
mandag, 16. mars
16:00 – 17:00
For visninger utover de annonserte, ta kontakt med megler på telefon 480 68 926.
VisningspåmeldingOm boligen
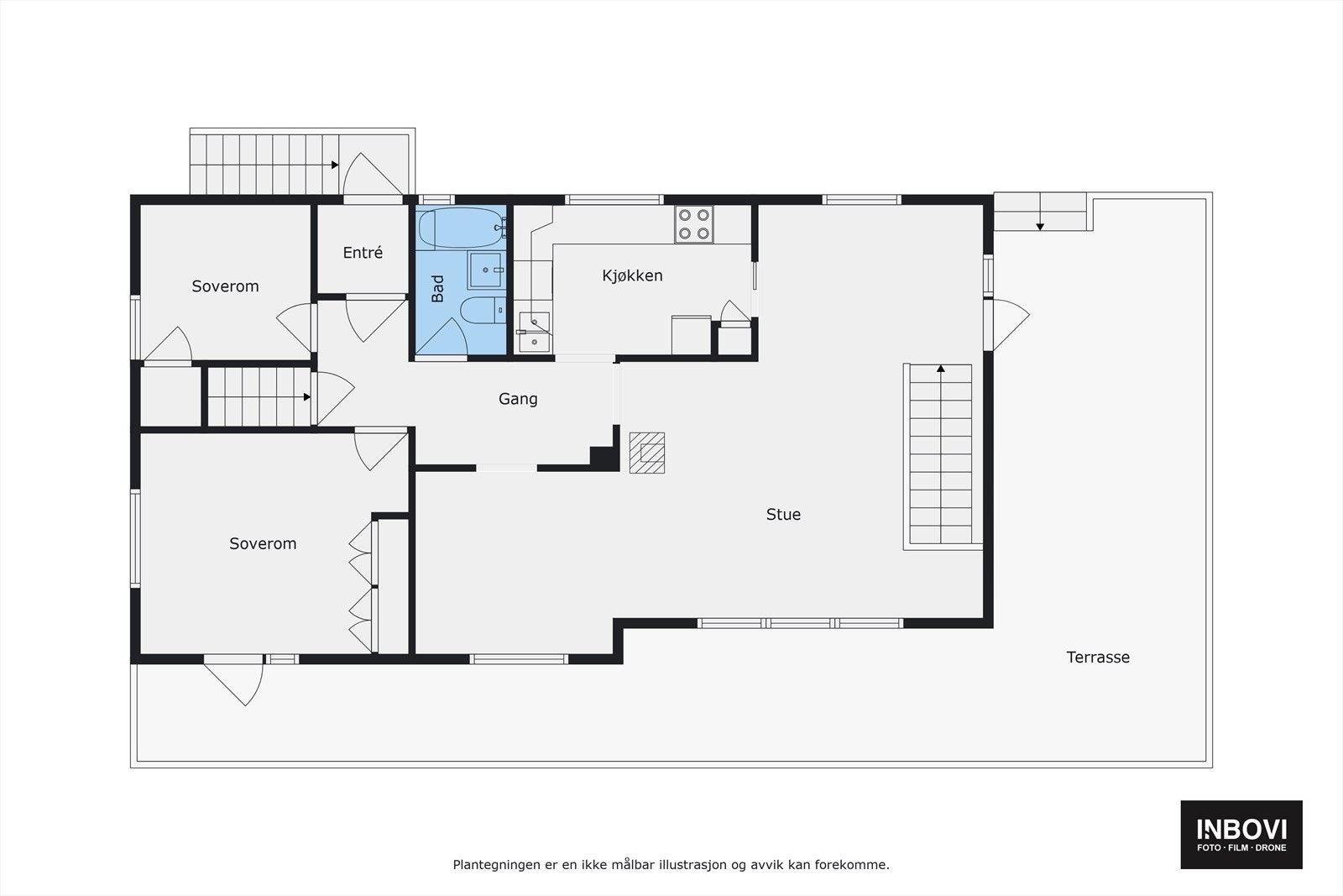
Innholdsrik enebolig fra 1968 med solrik og barnevennlig beliggenhet på Bjervafeltet nær Lunde sentrum. Dette er et rolig nabolag på tvers av generasjoner, med nærhet til det meste.
Boligen har en god planløsning som fordeler seg over 2. etasjer. Fra stuen er det utgang til veranda med god plass til utemøblement og trapp ned til hage. Hagen og tomten har god størrelse, perfekt boltreplass for både store og små. Videre er det frittstående dobbelt garasje, samt innlemmet garasje i boligen.
Boligen har behov for oppgradering men i senere tid er det gjort følgende: taksteinen og beslag er skiftet i 2024, 3stk vinduer er skiftet i 2021, baderommene har fått nye toalett i 2024 og deler av armatur/ batteri og vannrør er skiftet i 2024.
Velkommen til hyggelig visning !
Boligen har en god planløsning som fordeler seg over 2. etasjer. Fra stuen er det utgang til veranda med god plass til utemøblement og trapp ned til hage. Hagen og tomten har god størrelse, perfekt boltreplass for både store og små. Videre er det frittstående dobbelt garasje, samt innlemmet garasje i boligen.
Boligen har behov for oppgradering men i senere tid er det gjort følgende: taksteinen og beslag er skiftet i 2024, 3stk vinduer er skiftet i 2021, baderommene har fått nye toalett i 2024 og deler av armatur/ batteri og vannrør er skiftet i 2024.
Velkommen til hyggelig visning !
NB: Knappen for å vise hele beskrivelsen har kun en visuell effekt.
NB: Knappen for å vise hele beskrivelsen har kun en visuell effekt.
Salgsoppgaven beskriver vesentlig og lovpålagt informasjon om eiendommen
Se komplett salgsoppgaveNyttige lenker
Nærområdet
Eiendomsmegler 1 Midt-Telemark og Notodden
et foretak i SpareBank 1 Sør-Norge konsernet
Annonseinformasjon
| FINN-kode | 430938007 |
|---|---|
| Sist endret | 02. mars 2026 14:23 |
| Referanse | 1414250207 |
Annonsene kan være mangelfulle i forhold til lovpålagt opplysningsplikt. Før bindende avtale inngås oppfordres interessenter til å innhente komplett informasjon fra meglerforetaket, selger eller utleier.


































