Bildegalleri

Eiendomsmegler Krogsveen v/Andreas Christophersen ønsker velkommen til Tømtesvingen 13
Skjetten / Guldhaug Tømte
Frittliggende enebolig med moderniseringsbehov | Dobbelgarasje | Solrike uteplasser | Barnevennlige Guldhaug-Tømte
Prisantydning7 490 000 kr
Nøkkelinfo
- Boligtype
- Enebolig
- Eieform
- Eier (Selveier)
- Soverom
- 3
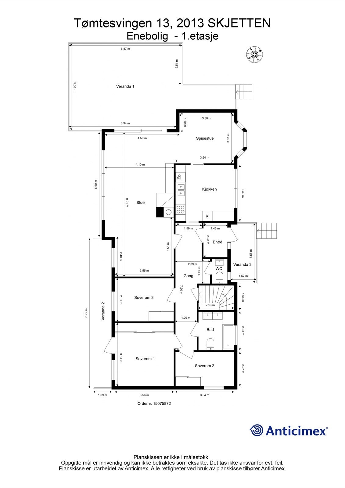
- Internt bruksareal
- 225 m² (BRA-i)
- Bruksareal
- 256 m²
- Eksternt bruksareal
- 31 m² (BRA-e)
- Balkong/Terrasse
- 55 m² (TBA)
- Etasje
- 1
- Byggeår
- 1987
- Energimerking
- E - Oransje
- Rom
- 4
- Tomteareal
- 569 m² (eiet)
Fasiliteter
Balkong/Terrasse
Barnevennlig
Garasje/P-plass
Hage
Kjæledyr tillatt
Offentlig vann/kloakk
Parkett
Peis/Ildsted
Rolig
Sentralt
Turterreng
Om boligen
Velkommen til Tømtesvingen 13 - En innholdsrik og romslig enebolig med hage, frukttrær og solfylte uteplasser.
Eiendommen ligger i et attraktivt og rolig boligområde på Guldhaug-Tømte på Skjetten, omgitt av trygge og grønne omgivelser.
Området består hovedsakelig av frittliggende eneboliger og småhusbebyggelse, og har et etablert og familievennlig preg.
Boligen ble oppført i 1987, og fremstår med sin originale, solide standard fra byggeåret.
Store vindusflater slipper inn rikelig med naturlig lys, og gir en behagelig atmosfære i oppholdsrommene.
* Egen inngang til kjelleren gir fleksibel plass til lagring (ikke omsøkt)
* Dobbelgarasje
* Barnevennlig område med fine turmuligheter
* Busstopp kun 400 meter fra boligen
* Gang-/sykkelvei til både Skedsmokorset, Skjetten og Lillestrøm
Eiendommen ligger i et attraktivt og rolig boligområde på Guldhaug-Tømte på Skjetten, omgitt av trygge og grønne omgivelser.
Området består hovedsakelig av frittliggende eneboliger og småhusbebyggelse, og har et etablert og familievennlig preg.
Boligen ble oppført i 1987, og fremstår med sin originale, solide standard fra byggeåret.
Store vindusflater slipper inn rikelig med naturlig lys, og gir en behagelig atmosfære i oppholdsrommene.
* Egen inngang til kjelleren gir fleksibel plass til lagring (ikke omsøkt)
* Dobbelgarasje
* Barnevennlig område med fine turmuligheter
* Busstopp kun 400 meter fra boligen
* Gang-/sykkelvei til både Skedsmokorset, Skjetten og Lillestrøm
NB: Knappen for å vise hele beskrivelsen har kun en visuell effekt.
NB: Knappen for å vise hele beskrivelsen har kun en visuell effekt.
Salgsoppgaven beskriver vesentlig og lovpålagt informasjon om eiendommen
Se komplett salgsoppgaveNyttige lenker
Nærområdet
Krogsveen Lillestrøm
Velkommen til en enklere boligreise.
Annonseinformasjon
| FINN-kode | 430884654 |
|---|---|
| Sist endret | 30. des. 2025 14:11 |
| Referanse | KR60.25315 |
Annonsene kan være mangelfulle i forhold til lovpålagt opplysningsplikt. Før bindende avtale inngås oppfordres interessenter til å innhente komplett informasjon fra meglerforetaket, selger eller utleier.

































