Bildegalleri

Leiligheten har en stor, delvis overbygget terrasse.
Kampanje - få med garasje! Endeleilighet med 16 kvm terrasse | 3 sov, 2 bad, vaskerom | Heis | Super sentral beliggenhet
Prisantydning11 600 000 kr
Nøkkelinfo
- Boligtype
- Leilighet
- Eieform
- Selveier
- Soverom
- 3
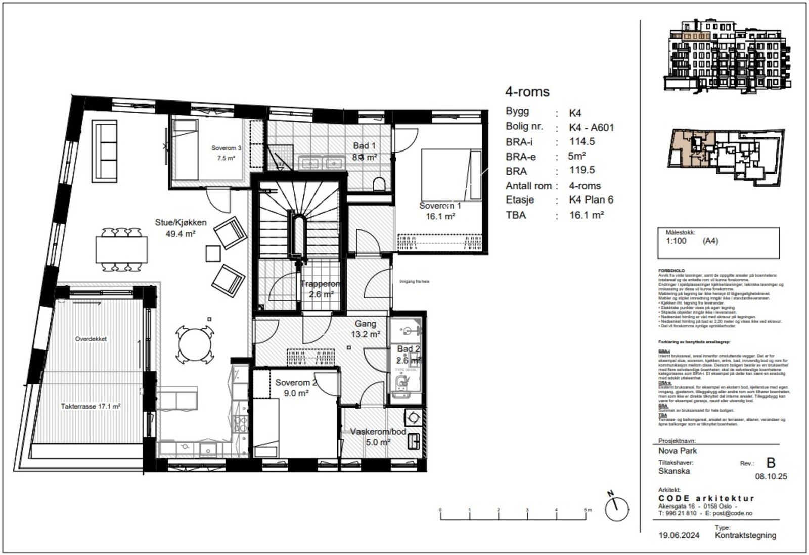
- Internt bruksareal
- 114 m² (BRA-i)
- Bruksareal
- 119 m²
- Eksternt bruksareal
- 5 m² (BRA-e)
- Balkong/Terrasse
- 16 m² (TBA)
- Etasje
- 6
- Byggeår
- 2026
- Rom
- 4
- Tomteareal
- 2 825 m² (eiet)
Fasiliteter
Barnevennlig
Balkong/Terrasse
Garasje/P-plass
Kabel-TV
Heis
Offentlig vann/kloakk
Ingen gjenboere
Parkett
Turterreng
Utsikt
Vaktmester-/vektertjeneste
Sentralt
Bredbåndstilknytning
Moderne
Bademulighet
Lademulighet
Balansert ventilasjon
Om boligen
Lekker 4-roms leilighet under oppføring i det spennende prosjektet Nova Park. Boligen ligger i byggets 6. etasje og byr på en moderne planløsning med gjennomgående høy standard. Her får du tre gode soverom, to delikate bad, eget vaskerom og en romslig stue- og kjøkkenløsning med store vindusflater som slipper inn rikelig med naturlig lys. Fra stuen er det utgang til en sydvestvendt terrasse på 16 kvm med gode solforhold. Svært usjenert.
Første som kjøper leilighet innen 30.04 får med en garasjeplass på kjøpet til en verdi av kr. 360 000,-!
Fleksibel overtagelse fra mai 2026.
Leiligheten har direkte adkomst via heis inn til leiligheten, parkeringsplass i kjeller og alle fasiliteter du kan ønske deg i umiddelbar nærhet.
Det gjøres oppmerksom på at bilder er hentet fra prosjektet og er illustrasjoner. Avvik fra gjeldende leilighet kan forekomme.
Første som kjøper leilighet innen 30.04 får med en garasjeplass på kjøpet til en verdi av kr. 360 000,-!
Fleksibel overtagelse fra mai 2026.
Leiligheten har direkte adkomst via heis inn til leiligheten, parkeringsplass i kjeller og alle fasiliteter du kan ønske deg i umiddelbar nærhet.
Det gjøres oppmerksom på at bilder er hentet fra prosjektet og er illustrasjoner. Avvik fra gjeldende leilighet kan forekomme.
NB: Knappen for å vise hele beskrivelsen har kun en visuell effekt.
NB: Knappen for å vise hele beskrivelsen har kun en visuell effekt.
Salgsoppgaven beskriver vesentlig og lovpålagt informasjon om eiendommen
Se komplett salgsoppgaveNyttige lenker
Nærområdet

PrivatMegleren Drammen
Kun det beste på dine vegne
Annonseinformasjon
| FINN-kode | 430864527 |
|---|---|
| Sist endret | 27. apr. 2026 04:04 |
| Referanse | 83251130 |
Annonsene kan være mangelfulle i forhold til lovpålagt opplysningsplikt. Før bindende avtale inngås oppfordres interessenter til å innhente komplett informasjon fra meglerforetaket, selger eller utleier.























































