Bildegalleri

Velkommen til Nørvegata 22 A, boligen selges av Krogsveen v/Geir Kristian Ødegård
Nørve
3-roms toppleilighet | Vestvendt balkong | Kort vei til NMK/NTNU | Utsikt | | Sikringsordning|
Prisantydning2 500 000 kr
Nøkkelinfo
- Boligtype
- Leilighet
- Eieform
- Andel
- Soverom
- 2
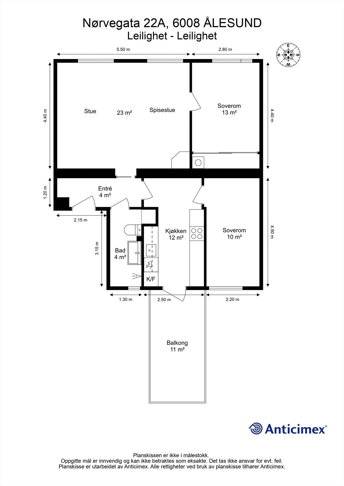
- Internt bruksareal
- 69 m² (BRA-i)
- Bruksareal
- 78 m²
- Eksternt bruksareal
- 9 m² (BRA-e)
- Balkong/Terrasse
- 11 m² (TBA)
- Etasje
- 4
- Byggeår
- 1956
- Energimerking
- G - Oransje
- Rom
- 3
- Tomteareal
- 1 353 m² (eiet)
Fasiliteter
Balkong/Terrasse
Offentlig vann/kloakk
Sentralt
Utsikt
Turterreng
Lademulighet
Visning
For å delta på visning, ber vi om at du melder deg på. Da sikrer vi at du får nødvendig informasjon og at det er satt av tilstrekkelig med tid.
Husk å lese salgsoppgaven før visningen, så du stiller forberedt.
PS! Ønsker du kun å bli holdt orientert, kan du fra eiendommens hjemmeside få varsel om solgtpris, eller kontakte megler.
VisningspåmeldingOm boligen
Krogsveen Sunnmøre v/Eiendomsmegler Geir Kristian Ødegaard har gleden av å presentere Nørvegata 22 A, en lys og flott 3-roms andelsleilighet beliggende i toppetasjen som inneholder: Entré, bad/wc, kjøkken, 2 soverom og stue. Utg. til balkong på 11 kvm.
Borettslaget er tilknyttet sikringsordning:
For å dekke eventuell manglende innbetaling av fellesutgifter fra øvrige andelseiere, er borettslaget tilknyttet et sikringsfond gjennom OBOS. Dette innebærer at OBOS innbetaler samtlige felleskostnader til borettslaget hver måned og dermed overtar ansvar og risiko for eventuell inndrivelse av utestående fellesutgifter.
Kontakt megler for visning!
Borettslaget er tilknyttet sikringsordning:
For å dekke eventuell manglende innbetaling av fellesutgifter fra øvrige andelseiere, er borettslaget tilknyttet et sikringsfond gjennom OBOS. Dette innebærer at OBOS innbetaler samtlige felleskostnader til borettslaget hver måned og dermed overtar ansvar og risiko for eventuell inndrivelse av utestående fellesutgifter.
Kontakt megler for visning!
NB: Knappen for å vise hele beskrivelsen har kun en visuell effekt.
NB: Knappen for å vise hele beskrivelsen har kun en visuell effekt.
Salgsoppgaven beskriver vesentlig og lovpålagt informasjon om eiendommen
Se komplett salgsoppgaveNyttige lenker
Nærområdet
Krogsveen Ålesund
Verdien av en god megler.
Annonseinformasjon
| FINN-kode | 430624103 |
|---|---|
| Sist endret | 08. jan. 2026 13:04 |
| Referanse | KR76.25236 |
Annonsene kan være mangelfulle i forhold til lovpålagt opplysningsplikt. Før bindende avtale inngås oppfordres interessenter til å innhente komplett informasjon fra meglerforetaket, selger eller utleier.





























