Bildegalleri

Leiligheten i Joruns vei 36A presenteres av Kenneth Graarud Olsen i Krogsveen.
Hjørnerød
Effektiv 2-roms andelsleilighet i 2. etasje med ekstra stor himlingshøyde. Solfylt balkong. Nær både marka og sentrum.
Prisantydning2 100 000 kr
Nøkkelinfo
- Boligtype
- Leilighet
- Eieform
- Andel
- Soverom
- 1
- Internt bruksareal
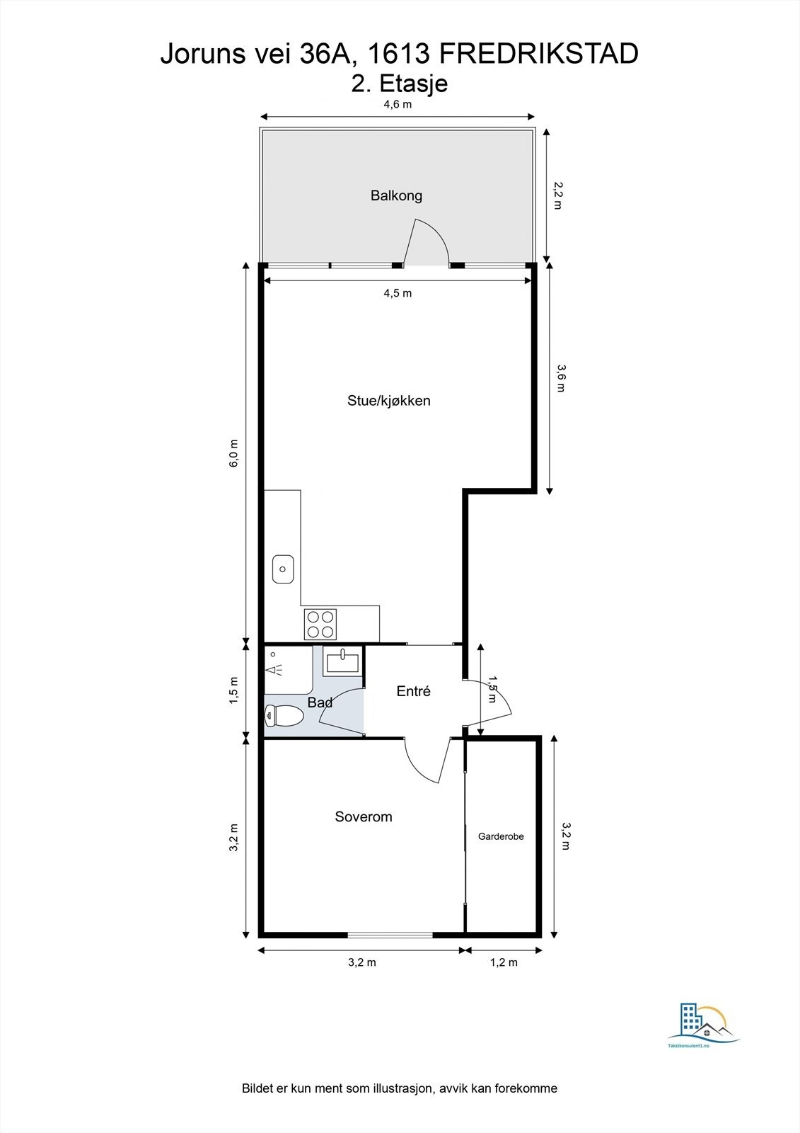
- 45 m² (BRA-i)
- Bruksareal
- 52 m²
- Eksternt bruksareal
- 7 m² (BRA-e)
- Balkong/Terrasse
- 10 m² (TBA)
- Etasje
- 2
- Byggeår
- 1974
- Energimerking
- F - Rød
- Rom
- 2
- Tomteareal
- 1 261 m²
Fasiliteter
Balkong/Terrasse
Barnevennlig
Bredbåndstilknytning
Garasje/P-plass
Kjæledyr tillatt
Ingen gjenboere
Kabel-TV
Offentlig vann/kloakk
Rolig
Sentralt
Utsikt
Turterreng
Visning
For å delta på visning, ber vi om at du melder deg på. Da sikrer vi at du får nødvendig informasjon og at det er satt av tilstrekkelig med tid. Kontakt megler dersom annet tidspunkt ønskes. Husk å lese salgsoppgaven før visningen, så du stiller forberedt. NB. Visning utgår dersom det ikke er noen påmeldte.
Ønsker du kun å bli holdt orientert, kan du fra eiendommens hjemmeside få varsel om solgtpris, eller kontakte megler.
VisningspåmeldingOm boligen
To-roms andelsleilighet i sentrumsnære, men landlige omgivelser på Hjørnerød
- Sydvendt balkong med sol fra formiddag til kveld sommerstid
- Effektiv romløsning med stue og kjøkken i åpen løsning
- Ekstra god himlingshøyde på opptil ca. 2,7 meter over stuen
- Bad oppgradert med nye møbler, klosett og dusjkabinett i senere år
- Ny varmtvannsbereder installert på kjøkken
- Egen bod på ca. 7 kvm. og felles vaskerom i kjeller
- Taktekking lagt om i regi av borettslaget i 2024
- Innenfor bomringen, under 10 min. til sentrum med sykkel eller buss
- Enkel tilgang til Fredrikstadmarka og lysløype
NB: Knappen for å vise hele beskrivelsen har kun en visuell effekt.
NB: Knappen for å vise hele beskrivelsen har kun en visuell effekt.
Salgsoppgaven beskriver vesentlig og lovpålagt informasjon om eiendommen
Se komplett salgsoppgaveNyttige lenker
Nærområdet
Krogsveen Fredrikstad og Sarpsborg
Verdien av en god megler.
Annonseinformasjon
| FINN-kode | 430446679 |
|---|---|
| Sist endret | 12. jan. 2026 09:00 |
| Referanse | KR67.25262 |
Annonsene kan være mangelfulle i forhold til lovpålagt opplysningsplikt. Før bindende avtale inngås oppfordres interessenter til å innhente komplett informasjon fra meglerforetaket, selger eller utleier.






















