Bildegalleri

Velkommen til Regnbueveien 29 presentert av Malin Natvig v/Eiendomsmegler 1! Foto: Astrid v/Studio Oslo
Teisen - Fjellhus
Flott enebolig over fire plan! | 968kvm tomt | Kjeller m/ egen inngang | Balkong og terrasser på 58 m² | Dobbel garasje
Prisantydning13 400 000 kr
Nøkkelinfo
- Boligtype
- Enebolig
- Eieform
- Eier (Selveier)
- Soverom
- 3
- Internt bruksareal
- 251 m² (BRA-i)
- Bruksareal
- 251 m²
- Balkong/Terrasse
- 63 m² (TBA)
- Byggeår
- 1939
- Energimerking
- G - Oransje
- Rom
- 5
- Tomteareal
- 969 m² (eiet)
Fasiliteter
Balkong/Terrasse
Barnevennlig
Garasje/P-plass
Peis/Ildsted
Rolig
Sentralt
Utsikt
Turterreng
Visning
søndag, 08. februar
13:00 – 14:00
Ønsker du å delta på visningen ber vi deg melde deg på slik at vi vet at du kommer. Da kan vi bistå alle best mulig og gi deg tiden du trenger på visningen. Ta gjerne kontakt med megler før visning hvis du har noen spørsmål. Velkommen!
VisningspåmeldingOm boligen
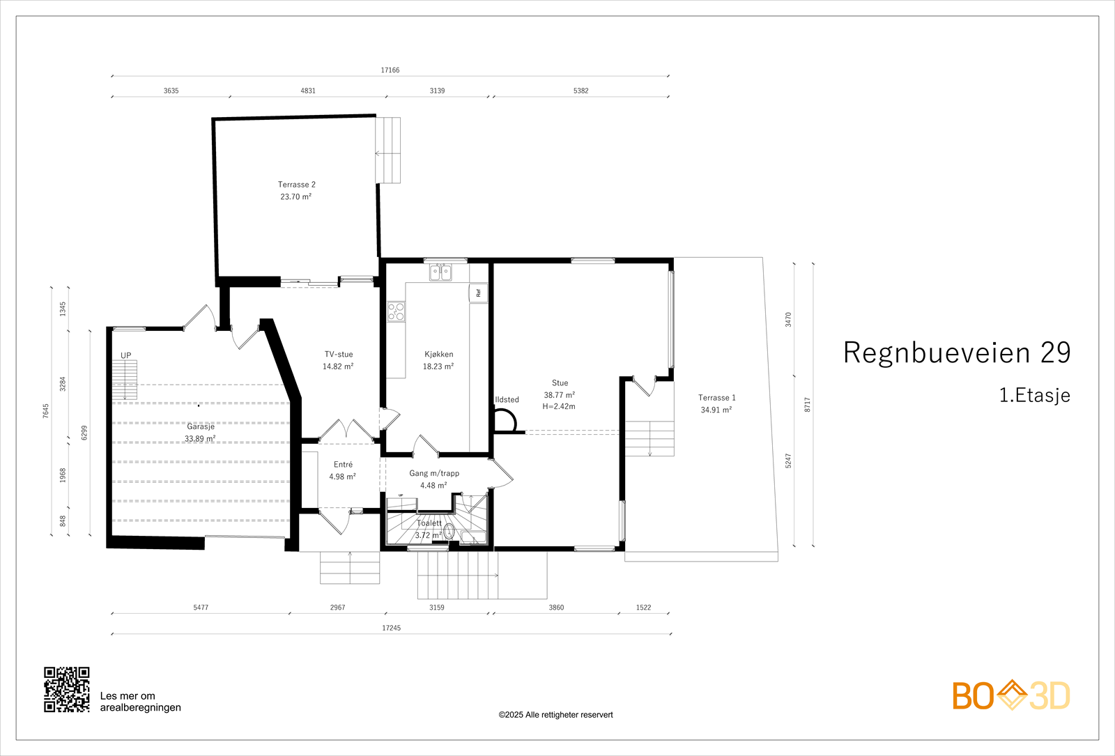
Velkommen til Regnbueveien 29 Innholdsrik enebolig bover fire plan på attraktive Fjellhus. Her får du en sjelden kombinasjon av stor tomt, fleksibel planløsning og gode uteplasser, med kort vei til skoler, barnehager, kollektivtransport og turområder. Boligen byr på mange muligheter for deg som vil skape ditt drømmehjem i et veletablert og familievennlig område. Flere overflater er nyere malt og gulv slipt på soverom.
Kort fortalt:
- Over fire plan
- BRA 251
- Stor tomt nærmere 1 mål (968kvm)
- Terrasser på totalt 58kvm og sørvestvendt balkong
- Solrike uteplasser
- Perfekt som familie- eller generasjonsbolig
- Dobbel garasje og biloppstillingsplass
- Lagringsplass på loft og i garasje
- Tre bad og ett toalettrom
- Egen inngang til kjeller
- Elektronisk lås
Velkommen til visning!
Kort fortalt:
- Over fire plan
- BRA 251
- Stor tomt nærmere 1 mål (968kvm)
- Terrasser på totalt 58kvm og sørvestvendt balkong
- Solrike uteplasser
- Perfekt som familie- eller generasjonsbolig
- Dobbel garasje og biloppstillingsplass
- Lagringsplass på loft og i garasje
- Tre bad og ett toalettrom
- Egen inngang til kjeller
- Elektronisk lås
Velkommen til visning!
NB: Knappen for å vise hele beskrivelsen har kun en visuell effekt.
NB: Knappen for å vise hele beskrivelsen har kun en visuell effekt.
Salgsoppgaven beskriver vesentlig og lovpålagt informasjon om eiendommen
Se komplett salgsoppgaveNyttige lenker
Nærområdet
EiendomsMegler 1 Økern
Vi loser deg trygt gjennom hele boligsalget
Annonseinformasjon
| FINN-kode | 430129449 |
|---|---|
| Sist endret | 28. jan. 2026 19:08 |
| Referanse | 6047260071 |
Annonsene kan være mangelfulle i forhold til lovpålagt opplysningsplikt. Før bindende avtale inngås oppfordres interessenter til å innhente komplett informasjon fra meglerforetaket, selger eller utleier.









































































