Bildegalleri

Fasade
Solgt
Hansnes - Innholdsrik enebolig I 5 sov. 2 stuer, 2 kjøkken m.m. I 2165 kvm. tomt I Strandlinje I Sentralt I Garasje
Prisantydning3 900 000 kr
Nøkkelinfo
- Boligtype
- Enebolig
- Eieform
- Eier (Selveier)
- Soverom
- 5
- Internt bruksareal
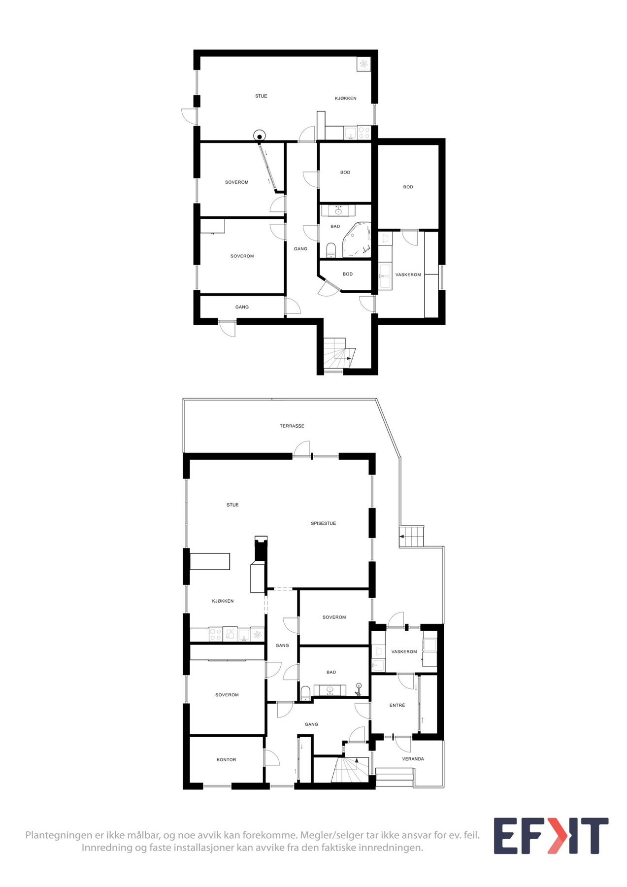
- 232 m² (BRA-i)
- Bruksareal
- 240 m²
- Eksternt bruksareal
- 8 m² (BRA-e)
- Balkong/Terrasse
- 32 m² (TBA)
- Byggeår
- 1981
- Energimerking
- G - Rød
- Rom
- 7
- Tomteareal
- 2 165 m² (eiet)
Fasiliteter
Barnevennlig
Balkong/Terrasse
Garasje/P-plass
Fiskemulighet
Offentlig vann/kloakk
Peis/Ildsted
Turterreng
Utsikt
Sentralt
Rolig
Bademulighet
Om boligen
Velkommen til Langsundveien 7 - Hansnes
Dette er en innholdsrik eiendom som ligger rett nord for sentrum på Hansnes, nærhet sjø og utmark. Innholdsrik eiendom med bl.a. 5 sov. 2 stuer, 2 kjøkken. (3. roms utleie, ikke søkt godkjent hos. off. myndighet)
En parsell av tomten har strandlinje (se vedlagte kart)
Fra boligen er det gangavstand til skoler, barnehage
butikker m.m.
Hansnes ligger ca. 1 time med bil fra Tromsø. Er et knutepunkt for øyene rund, fergeforbindelse til Karlsøy, Vannøy og Reinøy. Her finner du dagligvarebutikker, barne- og ungdomsskole, barnehage, bensinstasjon, kro/bistro, båthavn, kirke, sykehjem, legevakt, politikammer og andre offentlige tjenester m.m.
Stor ( 2 151 kvm.) og pent opparbeidet tomt med strandlinje.
31 kvm. terrasser mot sør og vest. 50 kvm. garasje og 20 kvm. anneks/bod.
Flott utsikt og gode solforhold. Barnevennlig område. Det er betydelige økonomiske fordeler ved å bo i Karlsøy kommune (se salgsoppgaven )
Husk å meld deg på visning
Dette er en innholdsrik eiendom som ligger rett nord for sentrum på Hansnes, nærhet sjø og utmark. Innholdsrik eiendom med bl.a. 5 sov. 2 stuer, 2 kjøkken. (3. roms utleie, ikke søkt godkjent hos. off. myndighet)
En parsell av tomten har strandlinje (se vedlagte kart)
Fra boligen er det gangavstand til skoler, barnehage
butikker m.m.
Hansnes ligger ca. 1 time med bil fra Tromsø. Er et knutepunkt for øyene rund, fergeforbindelse til Karlsøy, Vannøy og Reinøy. Her finner du dagligvarebutikker, barne- og ungdomsskole, barnehage, bensinstasjon, kro/bistro, båthavn, kirke, sykehjem, legevakt, politikammer og andre offentlige tjenester m.m.
Stor ( 2 151 kvm.) og pent opparbeidet tomt med strandlinje.
31 kvm. terrasser mot sør og vest. 50 kvm. garasje og 20 kvm. anneks/bod.
Flott utsikt og gode solforhold. Barnevennlig område. Det er betydelige økonomiske fordeler ved å bo i Karlsøy kommune (se salgsoppgaven )
Husk å meld deg på visning
NB: Knappen for å vise hele beskrivelsen har kun en visuell effekt.
NB: Knappen for å vise hele beskrivelsen har kun en visuell effekt.
Salgsoppgaven beskriver vesentlig og lovpålagt informasjon om eiendommen
Se komplett salgsoppgaveNærområdet
EIE eiendomsmegling Tromsø
Annonseinformasjon
| FINN-kode | 430109275 |
|---|---|
| Sist endret | 15. jan. 2026 12:54 |
| Referanse | 41251061 |
Annonsene kan være mangelfulle i forhold til lovpålagt opplysningsplikt. Før bindende avtale inngås oppfordres interessenter til å innhente komplett informasjon fra meglerforetaket, selger eller utleier.




























