Bildegalleri

Lys og fin leilighet i høy 1. etasje.
Koselig endeleilighet - biloppstillingsplass - kort veg til sykehuset, dagligvare og stadion -fin utsikt mot Mjøsa
Prisantydning1 790 000 kr
Nøkkelinfo
- Boligtype
- Leilighet
- Eieform
- Eier (Selveier)
- Soverom
- 1
- Internt bruksareal
- 40 m² (BRA-i)
- Bruksareal
- 40 m²
- Etasje
- 1
- Byggeår
- 1958
- Energimerking
- G - Rød
- Tomteareal
- 2 621 m²
Fasiliteter
Barnevennlig
Offentlig vann/kloakk
Sentralt
Om boligen
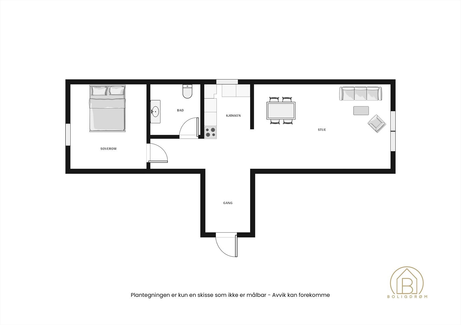
Arealeffektiv leilighet med god beliggenhet i Gjøvik, her er det kort veg til sykehuset, Gjøvik videregående skole, dagligvare, Gjøvik stadion og sentrumsfasiliteter.
Leiligheten fremstår i et lyst og nøytralt fargevalg, med en bruddvegg i stuen.
Det er delvis åpen løsning mellom kjøkken og stue, noe som skaper en god romfølelse.
Kjøkkenet har lys innredning i vinkel, og stuen har plass til både spisebord og sofa.
Det er godt med dagslys inn. Hyggelig utsikt mot Mjøsa fra stuevinduet.
Soverom med plass til garderobeskap. Lyst bad med dusjhjørne og opplegg for vaskemaskin.
Gang garderobeskap og oppheng for jakker.
Leiligheten varmes opp med strøm.
Felles festet tomt i sameiet som er opparbeidet med plen og beplantning.
Gruset gårdsplass. Medfølgende biloppstillingsplass.
Leiligheten fremstår i et lyst og nøytralt fargevalg, med en bruddvegg i stuen.
Det er delvis åpen løsning mellom kjøkken og stue, noe som skaper en god romfølelse.
Kjøkkenet har lys innredning i vinkel, og stuen har plass til både spisebord og sofa.
Det er godt med dagslys inn. Hyggelig utsikt mot Mjøsa fra stuevinduet.
Soverom med plass til garderobeskap. Lyst bad med dusjhjørne og opplegg for vaskemaskin.
Gang garderobeskap og oppheng for jakker.
Leiligheten varmes opp med strøm.
Felles festet tomt i sameiet som er opparbeidet med plen og beplantning.
Gruset gårdsplass. Medfølgende biloppstillingsplass.
NB: Knappen for å vise hele beskrivelsen har kun en visuell effekt.
NB: Knappen for å vise hele beskrivelsen har kun en visuell effekt.
Salgsoppgaven beskriver vesentlig og lovpålagt informasjon om eiendommen
Se komplett salgsoppgaveNærområdet
Aktiv Gjøvik Land Toten
Annonseinformasjon
| FINN-kode | 429986688 |
|---|---|
| Sist endret | 20. jan. 2026 12:32 |
| Referanse | 1209250174 |
Annonsene kan være mangelfulle i forhold til lovpålagt opplysningsplikt. Før bindende avtale inngås oppfordres interessenter til å innhente komplett informasjon fra meglerforetaket, selger eller utleier.



























