Bildegalleri

Lys og romlig stue med utgang til en stor balkong, delvis innglasset.
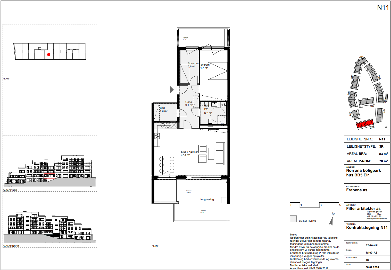
Norrøna Boligpark - Romslig og stilren treroms leilighet fra 2024. Flotte utearealer med to balkonger- èn innglasset.
Prisantydning6 490 000 kr
Nøkkelinfo
- Boligtype
- Leilighet
- Eieform
- Eier (Selveier)
- Soverom
- 2
- Internt bruksareal
- 83 m² (BRA-i)
- Bruksareal
- 107 m²
- Eksternt bruksareal
- 5 m² (BRA-e)
- Innglasset balkong
- 19 m² (BRA-b)
- Etasje
- 1
- Byggeår
- 2024
- Energimerking
- B - Mørkegrønn
- Rom
- 3
- Tomteareal
- 1 813 m² (eiet)
Fasiliteter
Balkong/Terrasse
Barnevennlig
Bredbåndstilknytning
Garasje/P-plass
Heis
Kjæledyr tillatt
Ingen gjenboere
Kabel-TV
Offentlig vann/kloakk
Parkett
Rolig
Turterreng
Lademulighet
Balansert ventilasjon
Om boligen
Velkommen til leilighet N11 i byggetrinn Eir, ferdigstilt i 2024, med attraktiv beliggenhet i flotte Norrøna Boligpark et populært og solrikt område med vakre naturområder like ved.
Her får du en moderne bolig med enkel atkomst og gode utearealer, inkludert en sørvendt balkong med innglassing fra gulv til tak, og dessuten en nordvendt balkong. Leiligheten har to romslige soverom, to bad, innvendig bod og en åpen stue- og kjøkkenløsning. Kjøkkenet er levert av Tromsøs egen kjøkkenprodusent, Nova, modell Tromsdalstinden, med stilrent design og god funksjonalitet. Boligen har gjennomgående høy kvalitet, blant annet med listefrie overganger, nedforet himling med LED-spotter, vannbåren gulvvarme og balansert ventilasjon. Sportsbod medfølger. Mulig å kjøpe parkeringsplass i for kr. 290 000,-.
Her får du en moderne bolig med enkel atkomst og gode utearealer, inkludert en sørvendt balkong med innglassing fra gulv til tak, og dessuten en nordvendt balkong. Leiligheten har to romslige soverom, to bad, innvendig bod og en åpen stue- og kjøkkenløsning. Kjøkkenet er levert av Tromsøs egen kjøkkenprodusent, Nova, modell Tromsdalstinden, med stilrent design og god funksjonalitet. Boligen har gjennomgående høy kvalitet, blant annet med listefrie overganger, nedforet himling med LED-spotter, vannbåren gulvvarme og balansert ventilasjon. Sportsbod medfølger. Mulig å kjøpe parkeringsplass i for kr. 290 000,-.
NB: Knappen for å vise hele beskrivelsen har kun en visuell effekt.
NB: Knappen for å vise hele beskrivelsen har kun en visuell effekt.
Salgsoppgaven beskriver vesentlig og lovpålagt informasjon om eiendommen
Se komplett salgsoppgaveNyttige lenker
Nærområdet
DNB Eiendom AS
Verdifulle salg
Annonseinformasjon
| FINN-kode | 429950971 |
|---|---|
| Sist endret | 17. des. 2025 13:53 |
| Referanse | 815250304 |
Annonsene kan være mangelfulle i forhold til lovpålagt opplysningsplikt. Før bindende avtale inngås oppfordres interessenter til å innhente komplett informasjon fra meglerforetaket, selger eller utleier.



























