Bildegalleri

DNB Eiendom v/Rezgar Aliassi har gleden av å presentere Jordbærsletta 5!
KOLBOTN
ATTRAKTIV 2-R SELVEIER i 2. ETG M/VESTVENDT BALKONG OG CARPORT| BAD OG KJØKKEN PÅKOSTET I 2024| 5 MIN GANGE TIL SENTRUM|
Prisantydning3 350 000 kr
Nøkkelinfo
- Boligtype
- Leilighet
- Eieform
- Eier (Selveier)
- Soverom
- 1
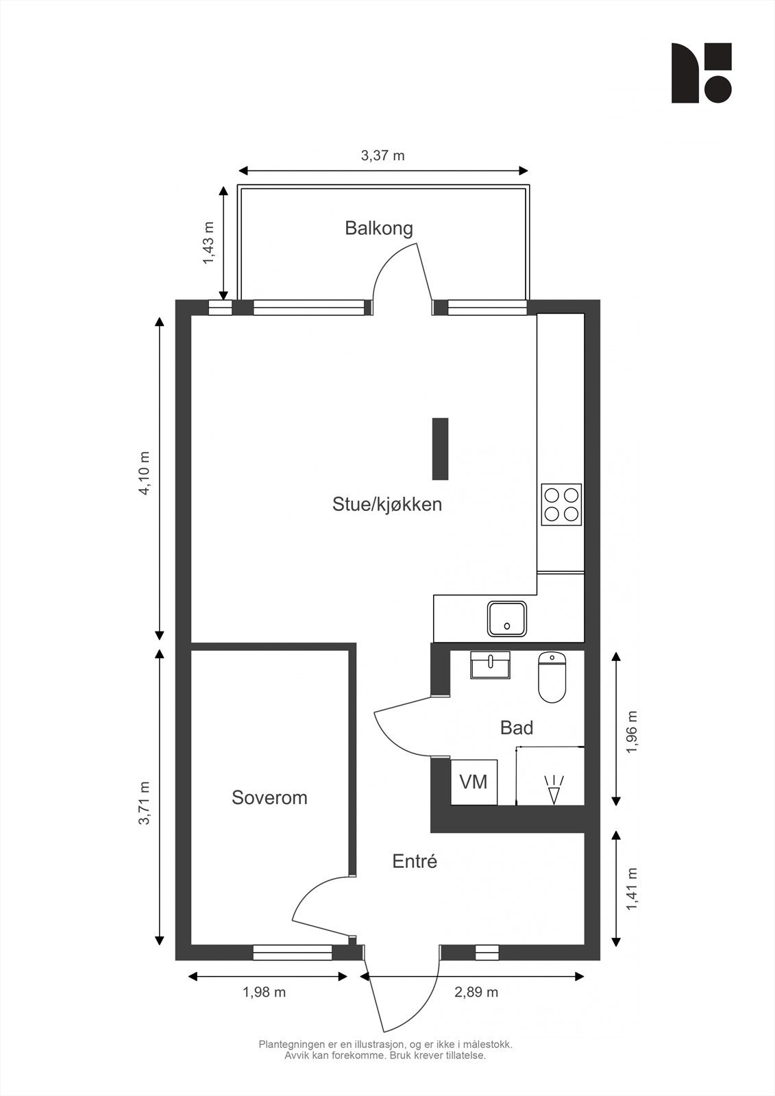
- Internt bruksareal
- 39 m² (BRA-i)
- Bruksareal
- 44 m²
- Eksternt bruksareal
- 5 m² (BRA-e)
- Balkong/Terrasse
- 5 m² (TBA)
- Etasje
- 2
- Byggeår
- 2004
- Energimerking
- D - Rød
- Rom
- 2
- Tomteareal
- 2 060 m² (eiet)
Fasiliteter
Balkong/Terrasse
Barnevennlig
Garasje/P-plass
Kjæledyr tillatt
Offentlig vann/kloakk
Rolig
Sentralt
Utsikt
Turterreng
Visning
Velkommen til visning! Meld deg på ved å trykke "visningspåmelding" i våre boligannonser. Ta gjerne kontakt med megler i forkant av visningen om du har spørsmål.
VisningspåmeldingOm boligen
DNB Eiendom v/Rezgar Aliassi har gleden av å presentere Jordbærsletta 5!
Velkommen til en innbydende 2-roms selveierleilighet i 2. etasje på Kolbotn. Boligen har en god planløsning og ble oppgradert i 2024 med kjøkkeninnredning fra IKEA m/ integrerte hvitevarer, ny varmtvannsbereder(m/waterguard), samt nye laminatgulv, innvendige dører og panelovner. Badet er fra byggeåret, men ble enkelt oppgradert i 2024. Leiligheten disponerer en stor bod og parkeringsplass i carport. Her bor du sentralt med kort vei til Kolbotn stasjon, Kolbotn Torg, skoler, barnehager og flotte turområder.
Kort fortalt:
- 2-roms selveier
- Vestvendt balkong på 5 m²
- Carport
- Betydelig oppusset i 2024
- Påkostet bad i 2024
- IKEA kjøkken fra 2024
- Ekstern bod med god lagringsplass
- Sentralt
Velkommen til en innbydende 2-roms selveierleilighet i 2. etasje på Kolbotn. Boligen har en god planløsning og ble oppgradert i 2024 med kjøkkeninnredning fra IKEA m/ integrerte hvitevarer, ny varmtvannsbereder(m/waterguard), samt nye laminatgulv, innvendige dører og panelovner. Badet er fra byggeåret, men ble enkelt oppgradert i 2024. Leiligheten disponerer en stor bod og parkeringsplass i carport. Her bor du sentralt med kort vei til Kolbotn stasjon, Kolbotn Torg, skoler, barnehager og flotte turområder.
Kort fortalt:
- 2-roms selveier
- Vestvendt balkong på 5 m²
- Carport
- Betydelig oppusset i 2024
- Påkostet bad i 2024
- IKEA kjøkken fra 2024
- Ekstern bod med god lagringsplass
- Sentralt
NB: Knappen for å vise hele beskrivelsen har kun en visuell effekt.
NB: Knappen for å vise hele beskrivelsen har kun en visuell effekt.
Salgsoppgaven beskriver vesentlig og lovpålagt informasjon om eiendommen
Se komplett salgsoppgaveNyttige lenker
Nærområdet
DNB Eiendom AS
Fra hjem til hjem
Annonseinformasjon
| FINN-kode | 429908284 |
|---|---|
| Sist endret | 28. nov. 2025 10:24 |
| Referanse | 305250209 |
Annonsene kan være mangelfulle i forhold til lovpålagt opplysningsplikt. Før bindende avtale inngås oppfordres interessenter til å innhente komplett informasjon fra meglerforetaket, selger eller utleier.































