Bildegalleri

EiendomsMegler 1 v/ Mads Larsen har gleden av å ønske velkommen til Fjæregata 1! En rålekker 2-roms selveierleilighet med flott beliggenhet i byggets 5. - og øverste etasje. Foto: Pholio, (Julian Nonstad).
Lademoen
RÅLEKKER 2-ROMS SELVEIERLEILIGHET FRA 2022 I BYGGETS 5. OG TOPPETASJE - 2 FRANSK BALKONGER - LADEMOEN - NÆRHET TIL "ALT"
Prisantydning5 450 000 kr
Nøkkelinfo
- Boligtype
- Leilighet
- Eieform
- Eier (Selveier)
- Soverom
- 1
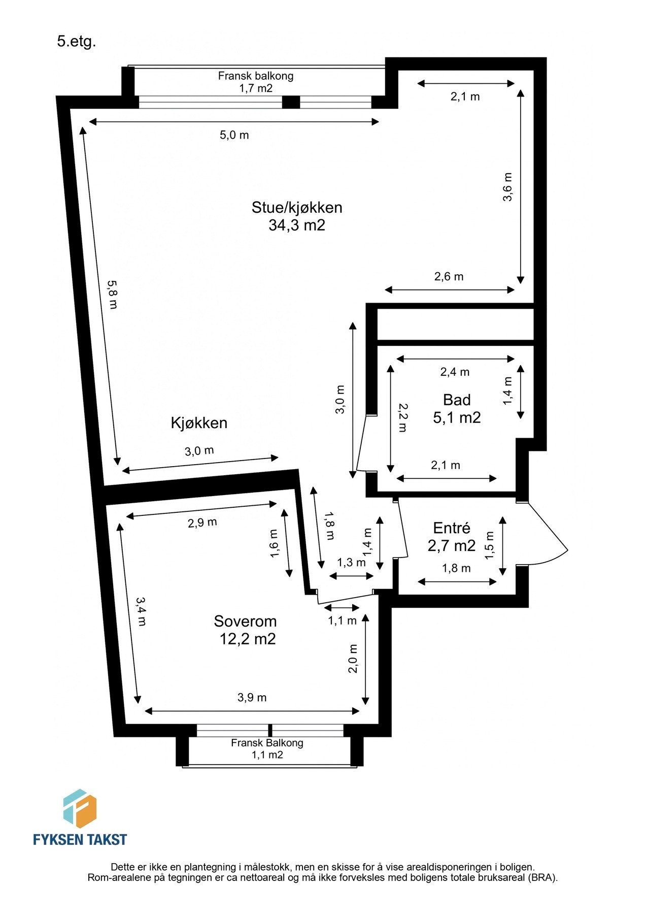
- Internt bruksareal
- 58 m² (BRA-i)
- Bruksareal
- 65 m²
- Eksternt bruksareal
- 7 m² (BRA-e)
- Balkong/Terrasse
- 3 m² (TBA)
- Etasje
- 5
- Byggeår
- 2022
- Energimerking
- A - Rød
- Rom
- 2
- Tomteareal
- 836 m² (eiet)
Fasiliteter
Barnevennlig
Kabel-TV
Heis
Offentlig vann/kloakk
Parkett
Sentralt
Bredbåndstilknytning
Moderne
Rolig
Balansert ventilasjon
Visning
mandag, 05. januar
16:00 – 16:45
Våre visninger har påmelding. Dette gjør vi for å kunne yte bedre service for våre kunder. Verdifullt for boligkjøper og for oss. Vi anbefaler at salgsoppgaven lastes ned digitalt før visning, og ring oss gjerne på forhånd for spørsmål om boligen. Passer ikke angitt tidspunkt, ta kontakt så finner vi en løsning. Skulle det mot formodning ikke være påmeldte til angitt visningstidspunkt vil ikke visning bli gjennomført.
Om boligen
EiendomsMegler 1 v/ Mads Larsen har gleden av å ønske velkommen til Fjæregata 1 - En meget romslig og supersentral 2-roms toppleilighet fra 2022!
Leiligheten holder med en ny og moderne standard. Moderne fasiliteter som heis og balansert ventilasjon. Leiligheten er godt gjennomført med fine materialvalg og store vindusposter. Lagringsplass finner du i leilighetens eksterne bod. På Lademoen bor du med bussholdeplasser, treningssenter, kjøpesentre og dagligvarebutikker i umiddelbar nærhet. Samt Solsiden og Trondheim sentrum innen kort gangavstand.
Verdt å merke seg:
Leiligheten holder med en ny og moderne standard. Moderne fasiliteter som heis og balansert ventilasjon. Leiligheten er godt gjennomført med fine materialvalg og store vindusposter. Lagringsplass finner du i leilighetens eksterne bod. På Lademoen bor du med bussholdeplasser, treningssenter, kjøpesentre og dagligvarebutikker i umiddelbar nærhet. Samt Solsiden og Trondheim sentrum innen kort gangavstand.
Verdt å merke seg:
- Felles takterrasse.
- 2 franske balkonger.
- Ekstern bod og sykkelparkering.
- Soneparkering for bil i nærheten.
- TG 0/1 på tilnærmet alle punkter!
- Varmefolie i gulv på stue og kjøkken.
- Meget kort avstand til bussholdeplass, treningssenter, dagligvarebutikk.
NB: Knappen for å vise hele beskrivelsen har kun en visuell effekt.
NB: Knappen for å vise hele beskrivelsen har kun en visuell effekt.
Salgsoppgaven beskriver vesentlig og lovpålagt informasjon om eiendommen
Se komplett salgsoppgaveNyttige lenker
Nærområdet
EiendomsMegler 1 Lade og Lilleby
Vi loser deg trygt gjennom hele boligsalget
Annonseinformasjon
| FINN-kode | 429844911 |
|---|---|
| Sist endret | 29. des. 2025 11:52 |
| Referanse | 36250151 |
Annonsene kan være mangelfulle i forhold til lovpålagt opplysningsplikt. Før bindende avtale inngås oppfordres interessenter til å innhente komplett informasjon fra meglerforetaket, selger eller utleier.

























