Bildegalleri

Innholdsrik enebolig i meget fredelige omgivelser i Åslia på Jeløy
Jeløy/Varden
Innholdsrik enebolig i høyden på Jeløy, med frodig hage og fin utsikt. Ny fasade i 2021. Rolig og barnevennlig.
Prisantydning8 800 000 kr
Nøkkelinfo
- Boligtype
- Enebolig
- Eieform
- Eier (Selveier)
- Soverom
- 4
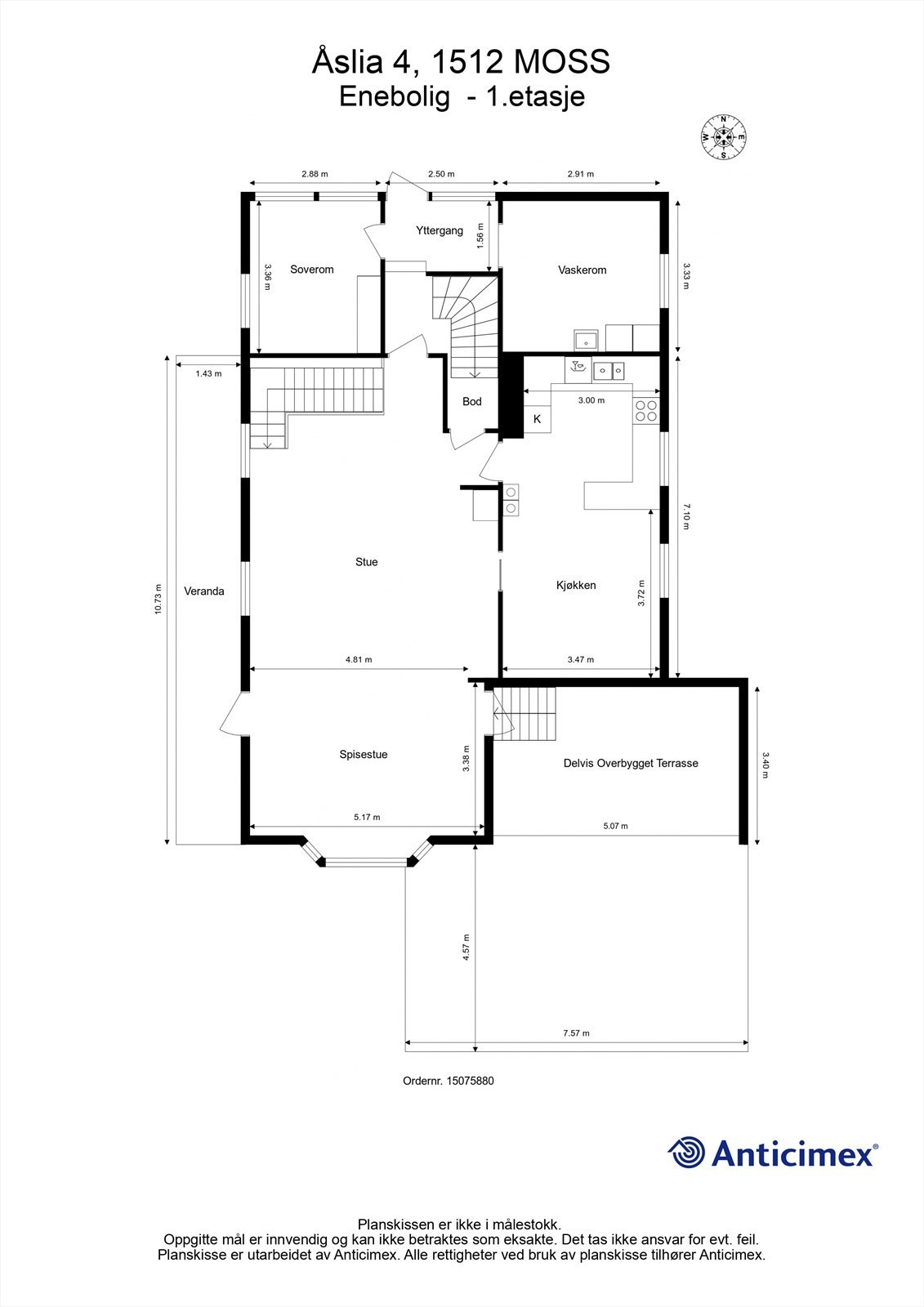
- Internt bruksareal
- 223 m² (BRA-i)
- Bruksareal
- 265 m²
- Eksternt bruksareal
- 42 m² (BRA-e)
- Balkong/Terrasse
- 67 m² (TBA)
- Byggeår
- 1954
- Rom
- 6
- Tomteareal
- 963 m² (eiet)
Fasiliteter
Balkong/Terrasse
Barnevennlig
Bredbåndstilknytning
Felles resepsjon
Garasje/P-plass
Hage
Kjæledyr tillatt
Ingen gjenboere
Kabel-TV
Offentlig vann/kloakk
Parkett
Peis/Ildsted
Rolig
Sentralt
Utsikt
Lademulighet
Visning
Ta kontakt med megler for avtale om privatvisning.
Ønsker du kun å bli holdt orientert, kan du fra eiendommens hjemmeside få varsel om solgtpris, eller kontakte megler.
VisningspåmeldingOm boligen
Innholdsrik enebolig i meget fredelige omgivelser i Åslia på Jeløy
- Flott utsikt i flere retninger, over vakre Jeløy til Oslofjorden
- Familievennlig romløsning over totalt tre plan inkludert fire store soverom
- Fasade etterisolert og omkledd i 2021, vinduer og terrassedører samtidig skiftet ut
- Luft-luft varmepumper installert i 2019 og 2017
- Stor markterrasse og balkong med sol fra tidlig morgen til sen kveld sommerstid
- Frodig tomt med et mangfold av vakre planter, busker, blomster og bærvekster
- Stor gårdsplass med oppstillingsmulighet for opptil flere biler
- Bil-lader og ny motor til garasjeport installert i 2025
- Kun 5 minutter å gå til Bellevue og Sprint Jeløy
- Kort vei til barnehager og skole, sykkelavstand til by og tog
NB: Knappen for å vise hele beskrivelsen har kun en visuell effekt.
NB: Knappen for å vise hele beskrivelsen har kun en visuell effekt.
Salgsoppgaven beskriver vesentlig og lovpålagt informasjon om eiendommen
Se komplett salgsoppgaveNyttige lenker
Nærområdet
Krogsveen Moss
Velkommen til en enklere boligreise.
Annonseinformasjon
| FINN-kode | 429838172 |
|---|---|
| Sist endret | 25. nov. 2025 15:12 |
| Referanse | KR30.25157 |
Annonsene kan være mangelfulle i forhold til lovpålagt opplysningsplikt. Før bindende avtale inngås oppfordres interessenter til å innhente komplett informasjon fra meglerforetaket, selger eller utleier.


























































