Bildegalleri

Penthouse-leilighet med fantastisk utsikt, stor takterrasse med jacuzzi, to garasjeplasser og boder. Heis rett inn
Nøkkelinfo
- Boligtype
- Leilighet
- Eieform
- Eier (Selveier)
- Soverom
- 3
- Internt bruksareal
- 140 m² (BRA-i)
- Bruksareal
- 150 m²
- Eksternt bruksareal
- 10 m² (BRA-e)
- Balkong/Terrasse
- 82 m² (TBA)
- Etasje
- 4
- Byggeår
- 2023
- Energimerking
- A - Lysegrønn
- Tomt
- Eiet
Fasiliteter
Visning
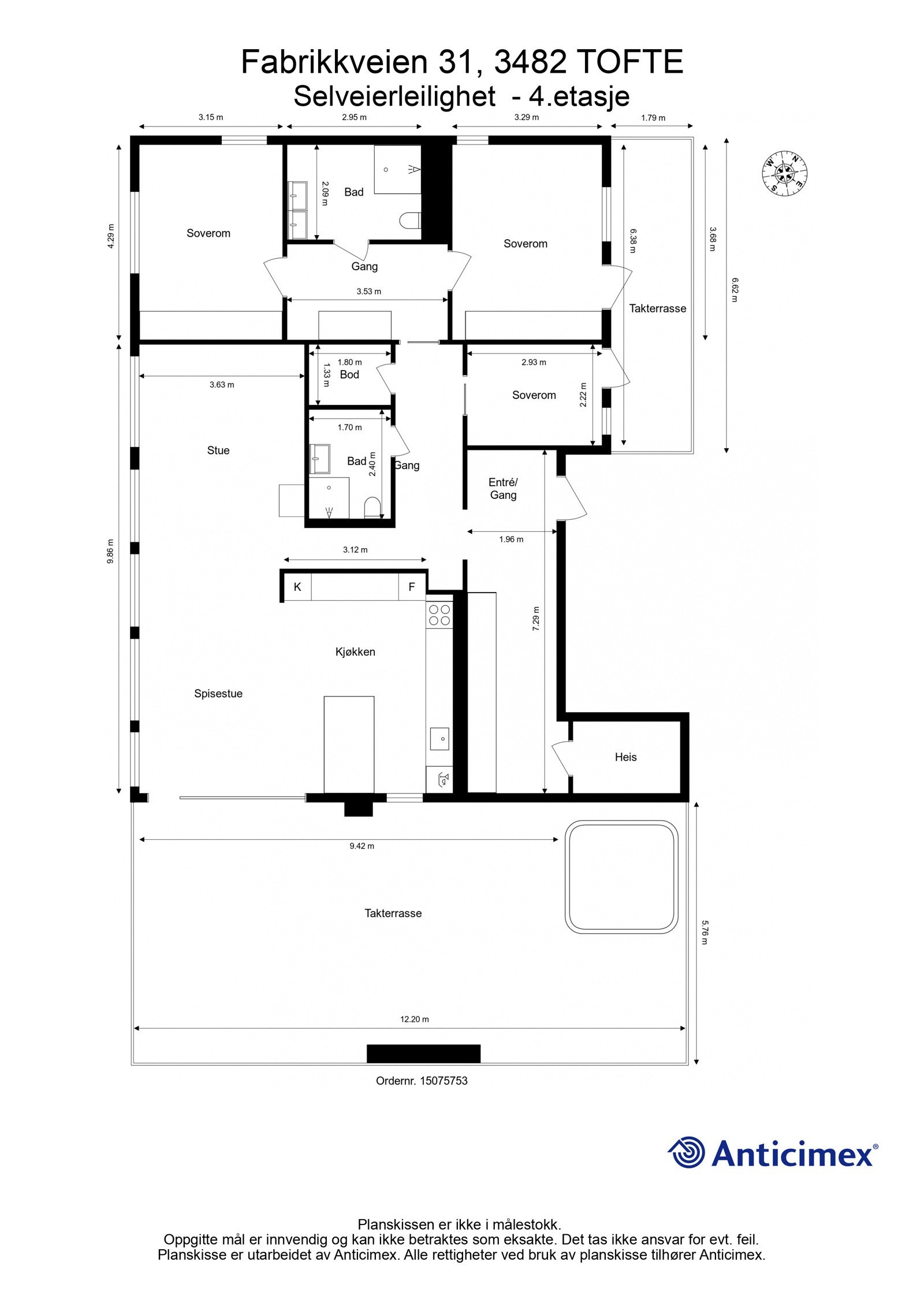
Om boligen
Fantastisk beliggende penthouse-leilighet i prosjektet Hurum Brygge. Her har man virkelig panoramautsikt utover Oslofjorden, mot Son, Jæløya, Færder fyr, Slagentangen og Horten. Ønsker du å starte dagen med et morgenbad ligger stranden rett på nedsiden av boligen. Her er det bare å ta på seg tøflene og rusle ned på 2-3 minutter. Kveldssol frem til ca kl. 21 på midtsommer.
Leiligheten inneholder følgende: entré/gang, gang, stue/kjøkken, bod/teknisk rom, 2 bad og 3 soverom. Det er utgang fra stue til takterrasse på ca. 70 kvm med boblebad, og utgang fra 2 soverom til takterrasse på ca. 12 kvm.
- 2 parkeringsplasser
- Heis rett inn i leiligheten
- 2 boder
- 80 kvm med terrasser
- 2 bad
- Påkostet ca kr. 670.000,- utover standard
- Fantastisk utsikt
- Ikke boplikt
Salgsoppgaven beskriver vesentlig og lovpålagt informasjon om eiendommen
Se komplett salgsoppgaveNyttige lenker
Nærområdet

FREM EIENDOMSMEGLING
Annonsene kan være mangelfulle i forhold til lovpålagt opplysningsplikt. Før bindende avtale inngås oppfordres interessenter til å innhente komplett informasjon fra meglerforetaket, selger eller utleier.






























































