Bildegalleri

Velkommen til Pettermarka 14! Foto: Diakrit (Krisztian Sere)
Solgt
Langevåg
Stor tomannsbolig i rolig nabolag - Eget vaskerom - Solrik uteplass - Vedfyring - 3 store soverom + loftstue
Prisantydning3 550 000 kr
Nøkkelinfo
- Boligtype
- Tomannsbolig
- Eieform
- Eier (Selveier)
- Soverom
- 3
- Internt bruksareal
- 127 m² (BRA-i)
- Bruksareal
- 131 m²
- Eksternt bruksareal
- 4 m² (BRA-e)
- Balkong/Terrasse
- 44 m² (TBA)
- Etasje
- 2
- Byggeår
- 2008
- Energimerking
- D - Oransje
- Rom
- 5
- Tomteareal
- 1 670 m² (eiet)
Fasiliteter
Barnevennlig
Balkong/Terrasse
Peis/Ildsted
Turterreng
Rolig
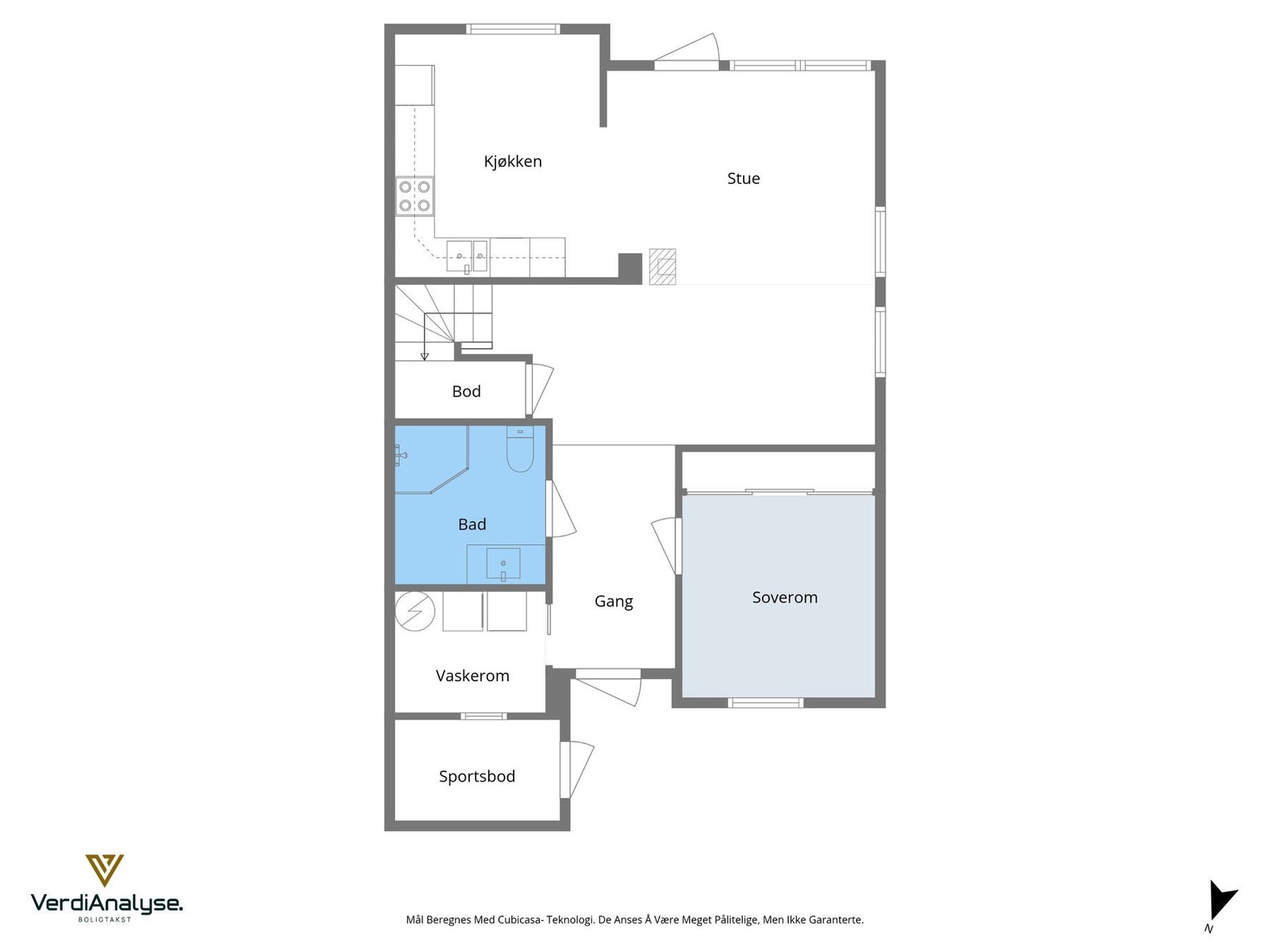
Om boligen
Velkommen til Pettermarka 14!
Denne boligen kan by på følgende kvaliteter:
Denne boligen kan by på følgende kvaliteter:
- Beliggende i rolig område i endevei med kvartalslekeplass.
- En av de større tomannsboligtypene i Langevåg.
- Solrikt uteområde med en terrasse på 44kvm.
- Åpen stue-/kjøkkenløsning.
- Lyst kjøkken med god skapplass.
- Tre soverom av god størrelse i tillegg til loftstue og hobbyrom.
- Flislagt bad med nyere innredning og dusjkabinett.
- Eget vaskerom.
- Lagringsplass i kneloft, trapperom og utvendig bod.
- Stor gruset biloppstillingsplass.
Husk å meld deg på visning.
NB: Knappen for å vise hele beskrivelsen har kun en visuell effekt.
NB: Knappen for å vise hele beskrivelsen har kun en visuell effekt.
Salgsoppgaven beskriver vesentlig og lovpålagt informasjon om eiendommen
Se komplett salgsoppgaveNyttige lenker
Nærområdet
EIE Eiendomsmegling Ålesund
Annonseinformasjon
| FINN-kode | 429780324 |
|---|---|
| Sist endret | 21. des. 2025 20:04 |
| Referanse | 17250155 |
Annonsene kan være mangelfulle i forhold til lovpålagt opplysningsplikt. Før bindende avtale inngås oppfordres interessenter til å innhente komplett informasjon fra meglerforetaket, selger eller utleier.



























