Bildegalleri

EIE eiendomsmegling ved Julie Marie Vollan Brennvik ønsker velkommen til Orkdalsveien 290. Foto: Robin Syrstad, EFKT foto
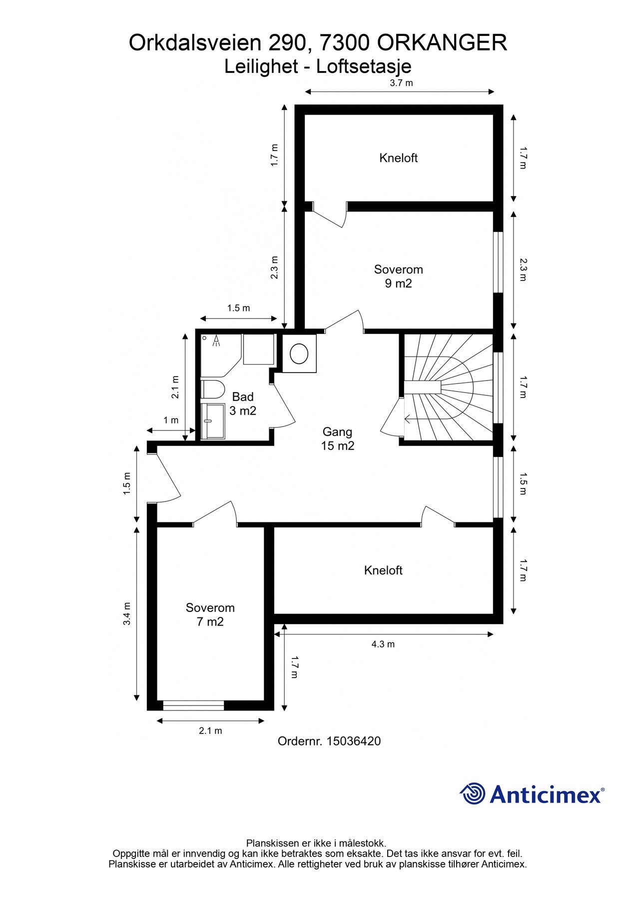
Familieleilighet over 2-plan bygd 2009 med to bad og rett ved skole. Garasje og balkong. Godt utleieobjekt
Prisantydning2 790 000 kr
Nøkkelinfo
- Boligtype
- Leilighet
- Eieform
- Selveier
- Soverom
- 2
- Internt bruksareal
- 94 m² (BRA-i)
- Bruksareal
- 104 m²
- Eksternt bruksareal
- 10 m² (BRA-e)
- Balkong/Terrasse
- 9 m² (TBA)
- Byggeår
- 1948
- Energimerking
- G - Gul
- Tomteareal
- 827 m² (eiet)
Fasiliteter
Balkong/Terrasse
Garasje/P-plass
Offentlig vann/kloakk
Peis/Ildsted
Utsikt
Aircondition
Sentralt
Moderne
Rolig
Om boligen
EIE eiendomsmegling v/ Julie Marie Vollan Brennvik ønsker velkommen til en attraktiv selveierleilighet i Orkdalsveien 290. Boligen går over to etasjer og byr på gjennomtenkte løsninger med rikelig lysinnslipp. Stuen oppleves som luftig med store vindusflater og en vedovn som bidrar til lun atmosfære. Eiendommen har en praktisk beliggenhet med nærhet til servicetilbudene i Orkanger.
Merk deg disse kvalitetene:
Merk deg disse kvalitetene:
- Fast plass i garasje i tillegg til gjesteparkering på fellesområde
- Flere oppvarmingskilder, inkludert peis, varmepumpe og elektriske varmeløsninger
- Leiligheten leies i dag ut med en månedlig leieinntekt på kr 15 000
- To romslige bad fordelt på begge plan
- To store soverom
- Privat balkong med gode solforhold og utsyn mot Orkdalsområdet
- Kort og trygg gangavstand til barne-, ungdoms- og videregående skole
Velkommen til hyggelig EIE-visning!
NB: Knappen for å vise hele beskrivelsen har kun en visuell effekt.
NB: Knappen for å vise hele beskrivelsen har kun en visuell effekt.
Salgsoppgaven beskriver vesentlig og lovpålagt informasjon om eiendommen
Se komplett salgsoppgaveNyttige lenker
Nærområdet
EIE eiendomsmegling Heimdal

Julie Marie Vollan Brennvik
Eiendomsmeglerfullmektig | Markeds- og sosiale medier ansvarlig
Annonsene kan være mangelfulle i forhold til lovpålagt opplysningsplikt. Før bindende avtale inngås oppfordres interessenter til å innhente komplett informasjon fra meglerforetaket, selger eller utleier.




























