Bildegalleri

Eiendomsmegler Lars Bredeveien presenterer den ærverdige Rogstadgården; en særpreget eiendom fra 1700-tallet med tonnevis av sjarm.
Kongsberg vest
Ærverdige Rogstadgården på vestsiden av Kongsberg - Klassisk eiendom med gode inntektsmuligheter
Prisantydning11 500 000 kr
Nøkkelinfo
- Boligtype
- Tomannsbolig
- Eieform
- Eier (Selveier)
- Soverom
- 7
- Internt bruksareal
- 568 m² (BRA-i)
- Bruksareal
- 666 m²
- Eksternt bruksareal
- 98 m² (BRA-e)
- Balkong/Terrasse
- 67 m² (TBA)
- Etasje
- 2
- Byggeår
- 1750
- Energimerking
- G - Rød
- Rom
- 15
- Tomteareal
- 1 004 m² (eiet)
Fasiliteter
Alpinanlegg
Balkong/Terrasse
Barnevennlig
Garasje/P-plass
Kjæledyr tillatt
Offentlig vann/kloakk
Parkett
Peis/Ildsted
Sentralt
Turterreng
Om boligen
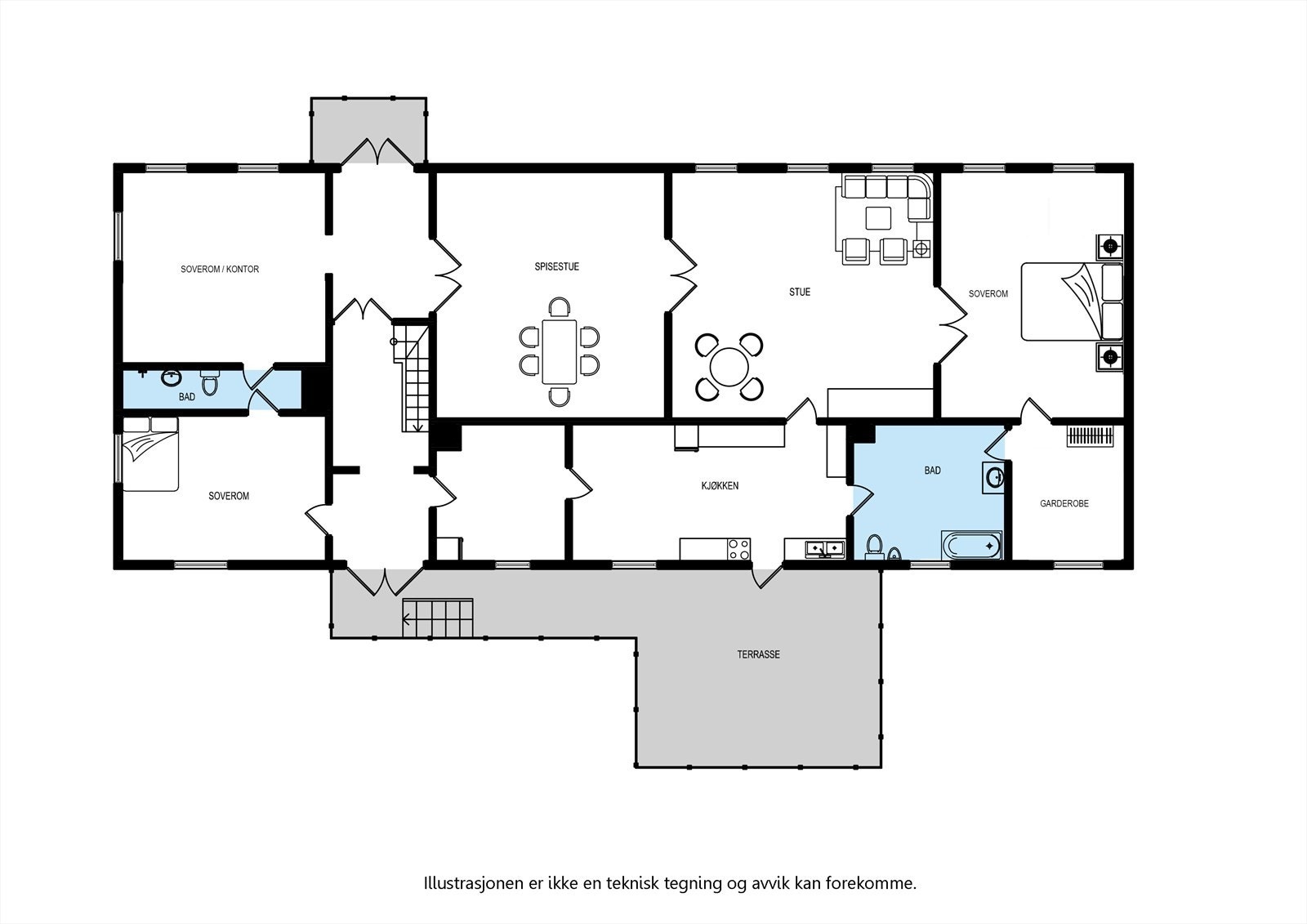
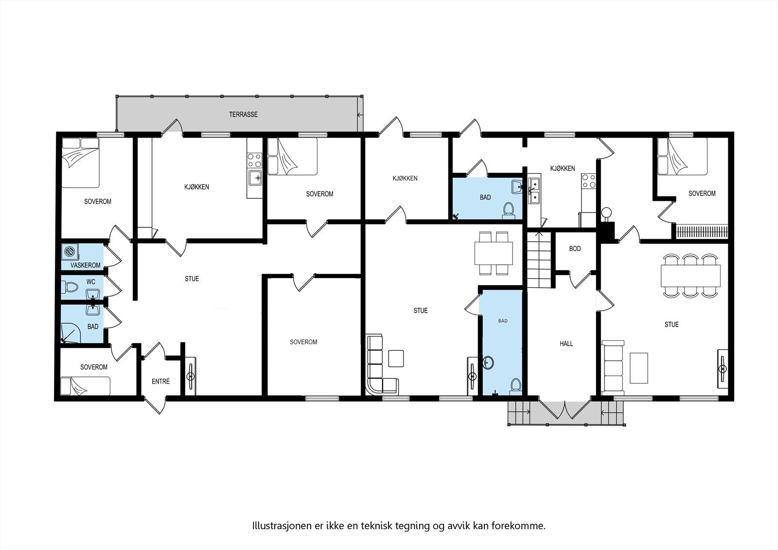
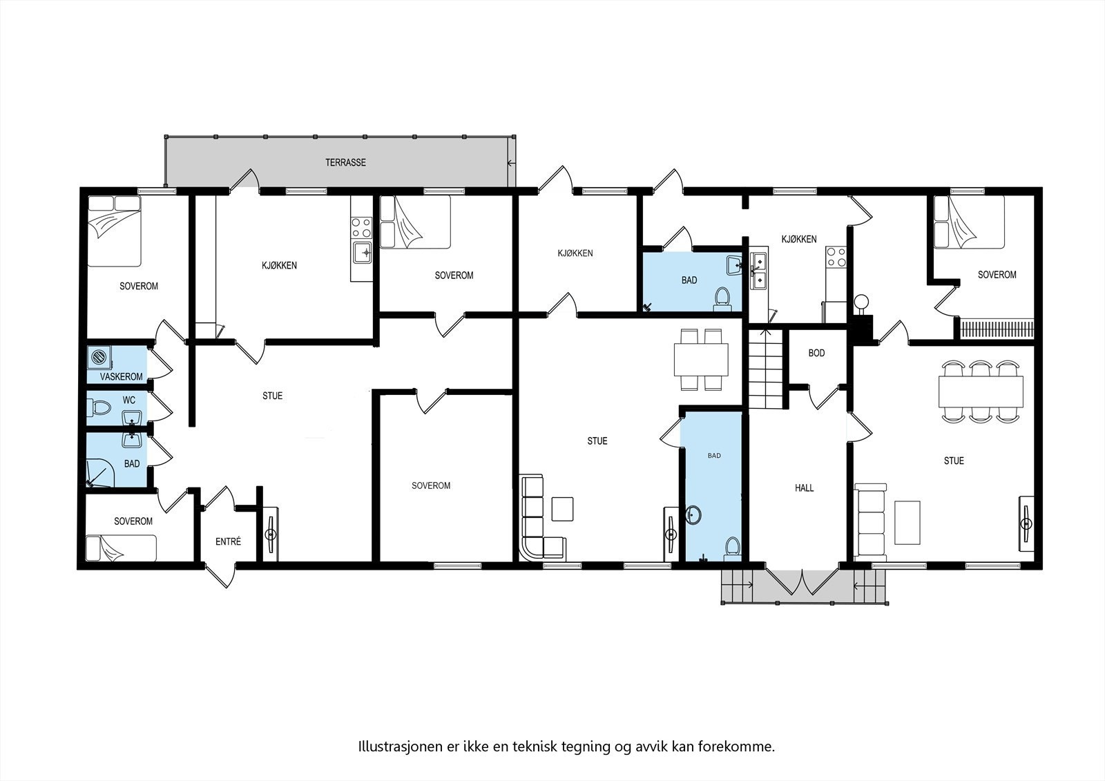
Hovedhuset i Rogstadbakken 4 er en de mest markante eiendommene i byen. Navnet er trolig etter kjøpmann Tore Rogstad fra Sandsvær, som bygde huset omkring 1750. Den fungerte da som bolig for kjøpmennen Tore og Knut Rogstad. Senere har den fungert som bolig i 2. etasje, mens 1. etasje har fungert som barnehave, salmakeri, centibit, legekontor og frisørsalong.
I dag er bolighuset innredet i 1. og 2. etasje. 2. etasje er én stor leilighet på 215 kvm, mens det er 4 utleieobjekter i 1. etasje (2 av enhetene ikke godkjent som separate boenheter). Utleieobjektene i 1. etasje gir leieinntekter på kr. 468.000,- pr. år p.t. Ypperlig for deg som vil bo i boligens 2. etasje og samtidig ha gode inntekter.
Eiendomsmassen består av et stort bolighus, et uthus og en garasje.
Velkommen!
I dag er bolighuset innredet i 1. og 2. etasje. 2. etasje er én stor leilighet på 215 kvm, mens det er 4 utleieobjekter i 1. etasje (2 av enhetene ikke godkjent som separate boenheter). Utleieobjektene i 1. etasje gir leieinntekter på kr. 468.000,- pr. år p.t. Ypperlig for deg som vil bo i boligens 2. etasje og samtidig ha gode inntekter.
Eiendomsmassen består av et stort bolighus, et uthus og en garasje.
Velkommen!
NB: Knappen for å vise hele beskrivelsen har kun en visuell effekt.
NB: Knappen for å vise hele beskrivelsen har kun en visuell effekt.
Salgsoppgaven beskriver vesentlig og lovpålagt informasjon om eiendommen
Se komplett salgsoppgaveNyttige lenker
Nærområdet
Eiendomsmegler 1 Kongsberg
et foretak i SpareBank 1 Sør-Norge konsernet
Annonseinformasjon
| FINN-kode | 429484013 |
|---|---|
| Sist endret | 16. jan. 2026 11:56 |
| Referanse | 2863250289 |
Annonsene kan være mangelfulle i forhold til lovpålagt opplysningsplikt. Før bindende avtale inngås oppfordres interessenter til å innhente komplett informasjon fra meglerforetaket, selger eller utleier.























































































