Bildegalleri

Velkommen til Urtegata 24A - en herlig gjennomgående 3-roms leilighet!
Solgt
BOTANISK HAGE SOM NÆR NABO
Gjennomgående 3-roms i 6.etg. Utsikt og solrik balkong. God standard. Heis. VV inkl. Mulighet for kjøp av garasjeplass!
Prisantydning5 600 000 kr
Nøkkelinfo
- Boligtype
- Leilighet
- Eieform
- Eier (Selveier)
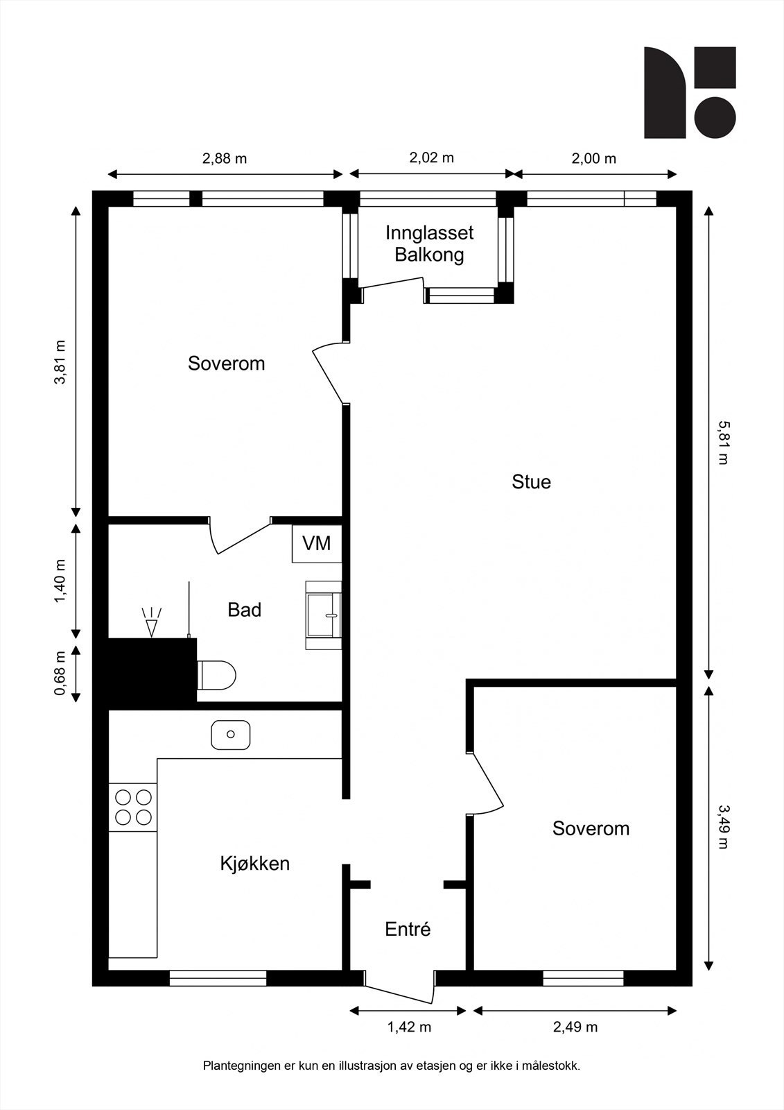
- Soverom
- 2
- Internt bruksareal
- 63 m² (BRA-i)
- Bruksareal
- 72 m²
- Eksternt bruksareal
- 6 m² (BRA-e)
- Innglasset balkong
- 3 m² (BRA-b)
- Etasje
- 6
- Byggeår
- 1990
- Energimerking
- E - Rød
- Rom
- 3
- Tomteareal
- 1 502 m² (eiet)
Fasiliteter
Balkong/Terrasse
Heis
Offentlig vann/kloakk
Sentralt
Utsikt
Om boligen
Bo høyt og fritt i Urtegata 24A!
Hjemmet utmerker seg med store vindusflater, god standard og en gjennomgående harmonisk atmosfære. Leiligheten har svært gode solforhold morgensolen skinner inn på kjøkkenet, mens både stue og balkong bader i sol fra formiddag til kveld. Den innglassede balkongen kan brukes store deler av året og gir en ekstra sone for hygge og avslapning. Med to soverom som ligger i hver sin ende av leiligheten, er planløsningen både praktisk og behagelig. Her ligger alt til rette for en komfortabel og trivelig hverdag!
Leiligheten har en svært attraktiv beliggenhet med kort vei til det meste av service- og kollektivtilbud, samt grønne rekreasjonsområder.
Høydepunkter:
-Heis
-Bad fra 2016
-Seperat kjøkken fra 2016
-Grønn og frodig utsikt
-Lite innsyn
-Svalgang
-Bod
Hjemmet utmerker seg med store vindusflater, god standard og en gjennomgående harmonisk atmosfære. Leiligheten har svært gode solforhold morgensolen skinner inn på kjøkkenet, mens både stue og balkong bader i sol fra formiddag til kveld. Den innglassede balkongen kan brukes store deler av året og gir en ekstra sone for hygge og avslapning. Med to soverom som ligger i hver sin ende av leiligheten, er planløsningen både praktisk og behagelig. Her ligger alt til rette for en komfortabel og trivelig hverdag!
Leiligheten har en svært attraktiv beliggenhet med kort vei til det meste av service- og kollektivtilbud, samt grønne rekreasjonsområder.
Høydepunkter:
-Heis
-Bad fra 2016
-Seperat kjøkken fra 2016
-Grønn og frodig utsikt
-Lite innsyn
-Svalgang
-Bod
NB: Knappen for å vise hele beskrivelsen har kun en visuell effekt.
NB: Knappen for å vise hele beskrivelsen har kun en visuell effekt.
Salgsoppgaven beskriver vesentlig og lovpålagt informasjon om eiendommen
Se komplett salgsoppgaveNærområdet
Aktiv Gamle Oslo/Bjørvika
Prisstatistikk
Urtegata 24A
10 194 klikk
på annonsen
90 873 kr
prisantydning per kvadratmeter
Prisfordeling
Pris per m² ligger 13 127 kr under snittet for leiligheter i Gamle Oslo.
Grafen viser antall leiligheter solgt i Gamle Oslo siste året fordelt på pris per m² - totalt 2 077 leiligheter
Antall boliger
Kvadratmeterpris tilsvarer prisantydning pluss fellesgjeld per kvadratmeter (p-rom eller BRA-i). Prisene i grafen er avrundet til nærmeste 1000 kr.
Annonseinformasjon
| FINN-kode | 429416104 |
|---|---|
| Sist endret | 07. des. 2025 11:44 |
| Referanse | 1002250291 |
Annonsene kan være mangelfulle i forhold til lovpålagt opplysningsplikt. Før bindende avtale inngås oppfordres interessenter til å innhente komplett informasjon fra meglerforetaket, selger eller utleier.



































