Bildegalleri

Nordvik v/Jørgen Nyhus har gleden av å presentere Kløverveien 2 og denne moderniserte og tiltalende leiligheten, beliggende på attraktive Teie
Solgt
Teie/Nøtterøy
Flott leilighet m/mulighet for 3 soverom og innredet underetasje | vestvendt og solrik terrasse og hage
Prisantydning2 850 000 kr
Nøkkelinfo
- Boligtype
- Leilighet
- Eieform
- Andel
- Soverom
- 1
- Internt bruksareal
- 79 m² (BRA-i)
- Bruksareal
- 101 m²
- Eksternt bruksareal
- 22 m² (BRA-e)
- Balkong/Terrasse
- 23 m² (TBA)
- Etasje
- 1
- Byggeår
- 1953
- Energimerking
- F - Rød
- Rom
- 2
- Tomteareal
- 1 550 m² (festet)
- Festeavgift
- 2 729 kr
Fasiliteter
Balkong/Terrasse
Barnevennlig
Bredbåndstilknytning
Garasje/P-plass
Golfbane
Hage
Kabel-TV
Offentlig vann/kloakk
Parkett
Peis/Ildsted
Rolig
Sentralt
Bademulighet
Fiskemulighet
Turterreng
Lademulighet
Om boligen
Velkommen til Kløverveien 2 og denne moderniserte og tiltalende leiligheten, beliggende attraktivt til på Teie.
Dersom du drømmer om å bo sentralt m/gangavstand til bl.a. dagligvareforretninger, badeplass, båthavn, lysløype, park og attraktive barnehager og skole, vil denne leiligheten begeistre.
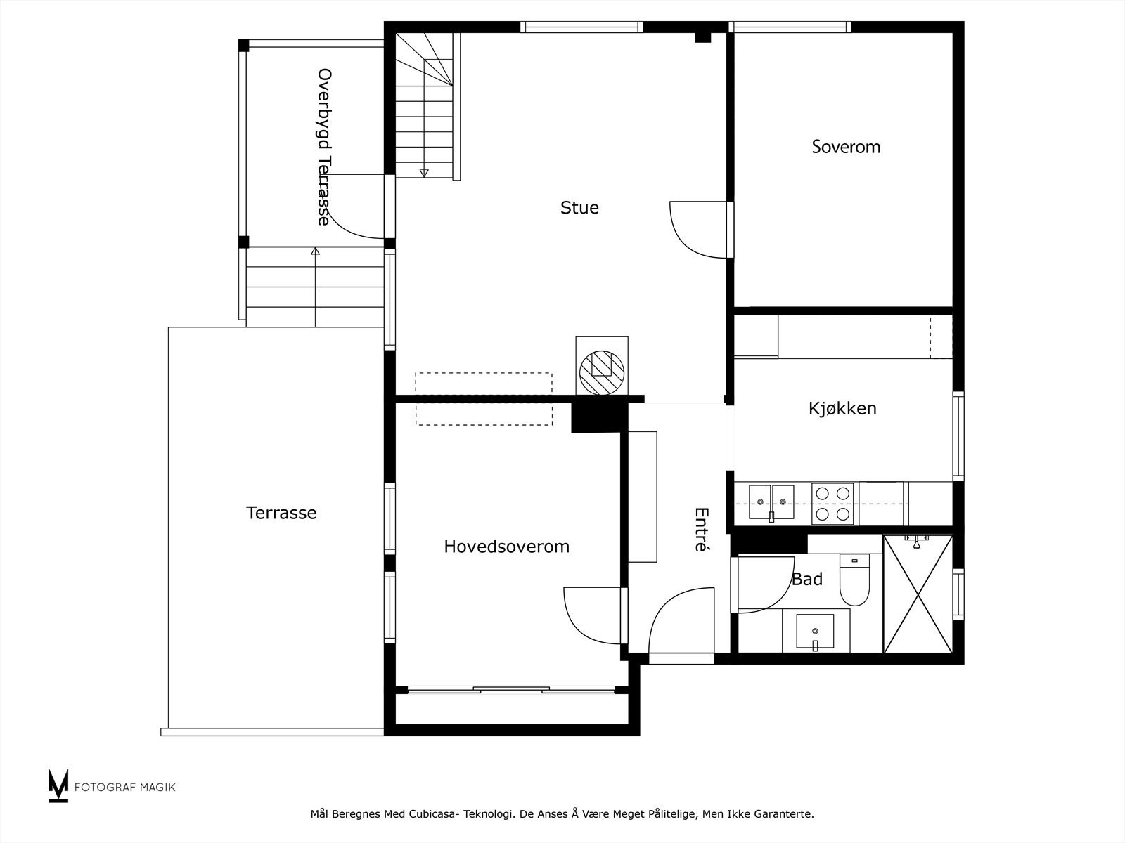
Boligen er innredet m/stue m/åpen kjøkkenløsning, ildsted og utgang til svært solrik terrasse på 23m² og videre til nydelig hage, baderom fra 2023, soverom, gang, samt innredet kjellerrom (ikke godkjent for varig opphold). Boligen var opprinnelig en 4-roms, men er omgjort til en 2-roms m/muligheter for tilbakeføring til opprinnelig rominndeling. Boligen er pusset opp både inn- og utvendig de siste årene og gir et godt og moderne inntrykk.
Det er biloppstillingsplass m/bil-lader v/inngangsdør.
Dersom du drømmer om å bo sentralt m/gangavstand til bl.a. dagligvareforretninger, badeplass, båthavn, lysløype, park og attraktive barnehager og skole, vil denne leiligheten begeistre.
Boligen er innredet m/stue m/åpen kjøkkenløsning, ildsted og utgang til svært solrik terrasse på 23m² og videre til nydelig hage, baderom fra 2023, soverom, gang, samt innredet kjellerrom (ikke godkjent for varig opphold). Boligen var opprinnelig en 4-roms, men er omgjort til en 2-roms m/muligheter for tilbakeføring til opprinnelig rominndeling. Boligen er pusset opp både inn- og utvendig de siste årene og gir et godt og moderne inntrykk.
Det er biloppstillingsplass m/bil-lader v/inngangsdør.
NB: Knappen for å vise hele beskrivelsen har kun en visuell effekt.
NB: Knappen for å vise hele beskrivelsen har kun en visuell effekt.
Salgsoppgaven beskriver vesentlig og lovpålagt informasjon om eiendommen
Se komplett salgsoppgaveNyttige lenker
Nærområdet
Nordvik Tønsberg
Annonseinformasjon
| FINN-kode | 429019661 |
|---|---|
| Sist endret | 24. nov. 2025 18:29 |
| Referanse | 25-0168/25 |
Annonsene kan være mangelfulle i forhold til lovpålagt opplysningsplikt. Før bindende avtale inngås oppfordres interessenter til å innhente komplett informasjon fra meglerforetaket, selger eller utleier.





















































