Bildegalleri

Nordvik Eiendomsmegling v/Christoffer Kvalshaugen ønsker deg velkommen til denne attraktive toppleiligheten i 6. etasje på populære Kaldnes. Foto: Fotograf Magik
Solgt
Kaldnes
Lekker og moderne toppleilighet i 6. etasje | Heis og 8 kvm terrasse | Umiddelbar nærhet til sentrum | Kort vei til alt!
Prisantydning3 390 000 kr
Nøkkelinfo
- Boligtype
- Leilighet
- Eieform
- Eier (Selveier)
- Soverom
- 1
- Bruksareal
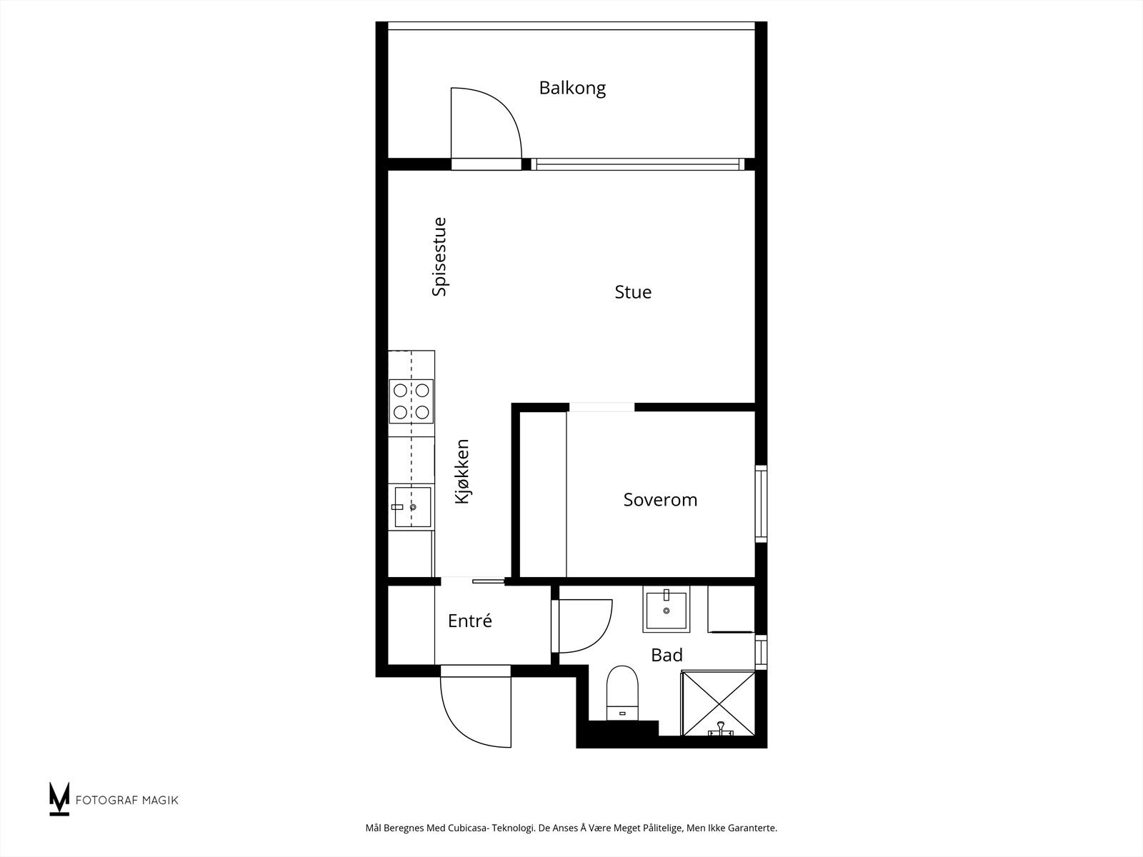
- 38 m²
- Etasje
- 6
- Byggeår
- 2017
- Energimerking
- C - Rød
- Rom
- 1
- Tomteareal
- 1 425 m² (eiet)
- Bruttoareal
- 37 m²
Fasiliteter
Aircondition
Balkong/Terrasse
Bredbåndstilknytning
Garasje/P-plass
Heis
Kjæledyr tillatt
Ingen gjenboere
Kabel-TV
Offentlig vann/kloakk
Parkett
Sentralt
Utsikt
Bademulighet
Turterreng
Om boligen
Velkommen til denne attraktive toppleiligheten i 6. etasje på populære Kaldnes.
Beliggende i Tønsbergs nye, urbane bydel med fjorden som nærmeste nabo og den populære bystranda kun et steinkast unna.
Leiligheten er arealeffektiv med store vindusflater som, sammen med plasseringen øverst, sikrer rikelig med lys og en usjenert atmosfære. Det er behagelig, vannbåren varme i gulvene.
Standarden er tidsriktig og god, med et moderne kjøkken med integrerte hvitevarer og et delikat, flislagt bad. Store, integrerte garderobeløsninger i både alkove og entré gir rikelig med oppbevaringsplass. I tillegg får du en flott terrasse på 8 kvm og en oppvarmet bod.
Her finner du alt du trenger innen gangavstand: tog, buss, båthavn, matbutikk, Kverneriet og bakeri.
Velkommen til visning!
Beliggende i Tønsbergs nye, urbane bydel med fjorden som nærmeste nabo og den populære bystranda kun et steinkast unna.
Leiligheten er arealeffektiv med store vindusflater som, sammen med plasseringen øverst, sikrer rikelig med lys og en usjenert atmosfære. Det er behagelig, vannbåren varme i gulvene.
Standarden er tidsriktig og god, med et moderne kjøkken med integrerte hvitevarer og et delikat, flislagt bad. Store, integrerte garderobeløsninger i både alkove og entré gir rikelig med oppbevaringsplass. I tillegg får du en flott terrasse på 8 kvm og en oppvarmet bod.
Her finner du alt du trenger innen gangavstand: tog, buss, båthavn, matbutikk, Kverneriet og bakeri.
Velkommen til visning!
NB: Knappen for å vise hele beskrivelsen har kun en visuell effekt.
NB: Knappen for å vise hele beskrivelsen har kun en visuell effekt.
Salgsoppgaven beskriver vesentlig og lovpålagt informasjon om eiendommen
Se komplett salgsoppgaveNyttige lenker
Nærområdet
Nordvik Tønsberg
Annonseinformasjon
| FINN-kode | 428954479 |
|---|---|
| Sist endret | 19. jan. 2026 17:04 |
| Referanse | 25-0179/25 |
Annonsene kan være mangelfulle i forhold til lovpålagt opplysningsplikt. Før bindende avtale inngås oppfordres interessenter til å innhente komplett informasjon fra meglerforetaket, selger eller utleier.



























