Bildegalleri

Elevert i høyden av 11. etasje på Seut Brygge ligger denne penthouseleiligheten det ikke finnes maken til.
Seut Brygge
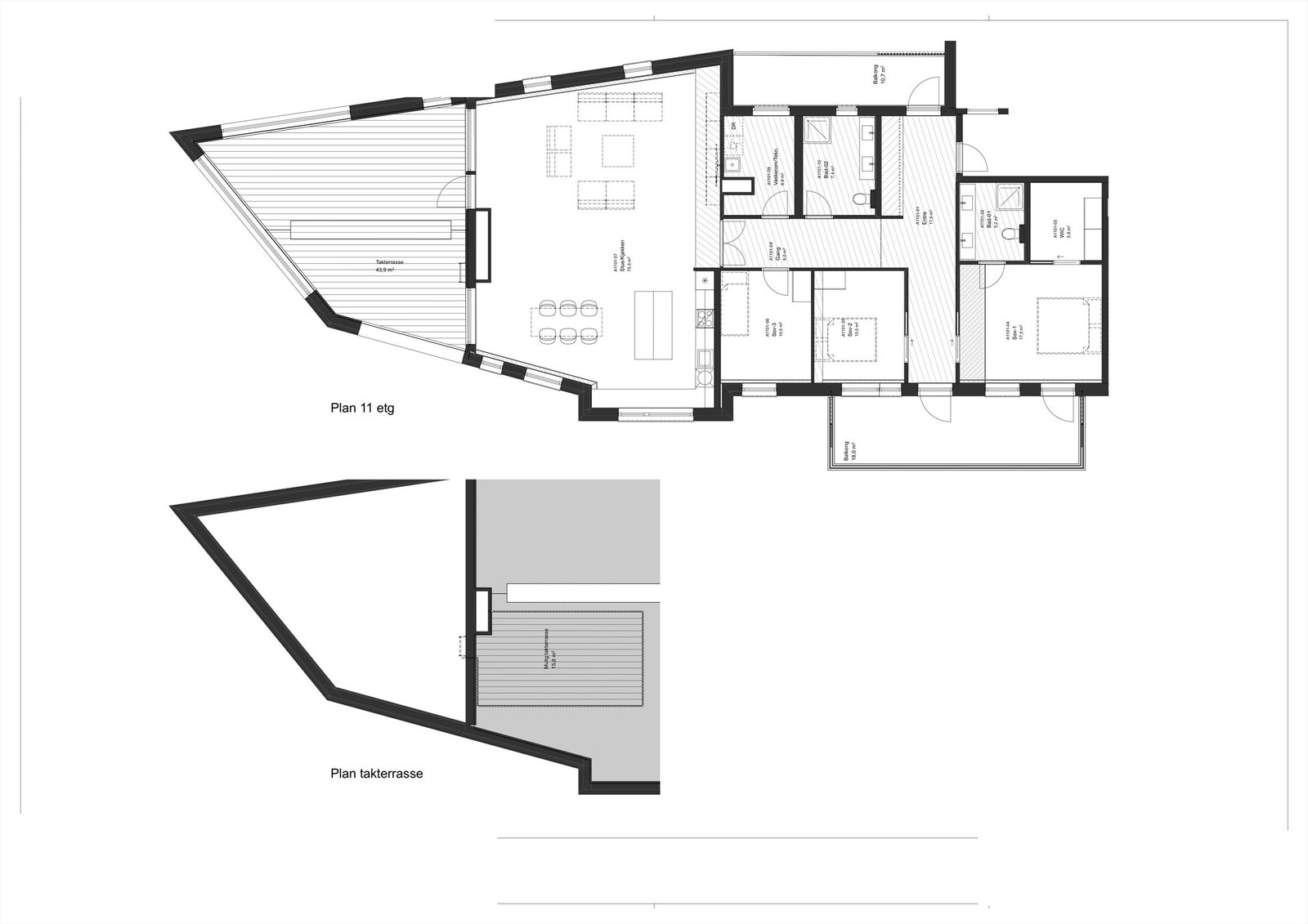
Enestående penthouseleilighet med panoramautsikt, 74 kvm. uteareal og 15 m. båtplass rett nedenfor. 3 garasjeplasser.
Prisantydning16 500 000 kr
Nøkkelinfo
- Boligtype
- Leilighet
- Eieform
- Eier (Selveier)
- Soverom
- 3
- Internt bruksareal
- 172 m² (BRA-i)
- Bruksareal
- 179 m²
- Eksternt bruksareal
- 7 m² (BRA-e)
- Balkong/Terrasse
- 74 m² (TBA)
- Etasje
- 11
- Byggeår
- 2021
- Energimerking
- C - Mørkegrønn
- Rom
- 4
- Tomteareal
- 7 294 m² (eiet)
Fasiliteter
Takterrasse
Balkong/Terrasse
Bredbåndstilknytning
Båtplass
Garasje/P-plass
Heis
Ingen gjenboere
Kabel-TV
Parkett
Sentralt
Utsikt
Vaktmester-/vektertjeneste
Lademulighet
Balansert ventilasjon
Om boligen
Unik mulighet - makeløs penthouseleilighet fra 2021 i Seut Brygge
- Usjenert i høyden av øverst etasje med 74 kvm. uteareal fordel på balkonger og stor, skjermet takaltan
- 15 m. longside båtplass rett nedenfor leiligheten
- Tre store garasjeplasser i garasjeanlegget, like ved heisen
- 74 kvm. uteareal fordel på balkonger og takaltan med hev/senk panoramavinduer
- Meget velholdt, moderne standard med vannbåren gulvvarme i alle rom
- Stort, velutrustet og elegant kvalitetskjøkken fra Sigdal
- Master bedroom med balkong, walk-in closet og eget bad
- Påkostet med flere plassbyggede løsninger, soverom innredet som bibliotek/TV-stue
- To inviterende bad og meget praktisk vaskerom
- Enkel adkomst med heis i bygget
NB: Knappen for å vise hele beskrivelsen har kun en visuell effekt.
NB: Knappen for å vise hele beskrivelsen har kun en visuell effekt.
Salgsoppgaven beskriver vesentlig og lovpålagt informasjon om eiendommen
Se komplett salgsoppgaveNyttige lenker
Nærområdet
Krogsveen Fredrikstad og Sarpsborg
Verdien av en god megler.
Annonseinformasjon
| FINN-kode | 428943105 |
|---|---|
| Sist endret | 06. feb. 2026 15:52 |
| Referanse | KR67.25250 |
Annonsene kan være mangelfulle i forhold til lovpålagt opplysningsplikt. Før bindende avtale inngås oppfordres interessenter til å innhente komplett informasjon fra meglerforetaket, selger eller utleier.




















































