Bildegalleri

Fra terrassen har man god oversikt over hagen og nærområdet.
Sjarmerende enebolig med solrik hage og romslig gårdsplass. Nærhet til barnehager, skoler og idrettsbaner.
Prisantydning5 780 000 kr
Nøkkelinfo
- Boligtype
- Enebolig
- Eieform
- Eier (Selveier)
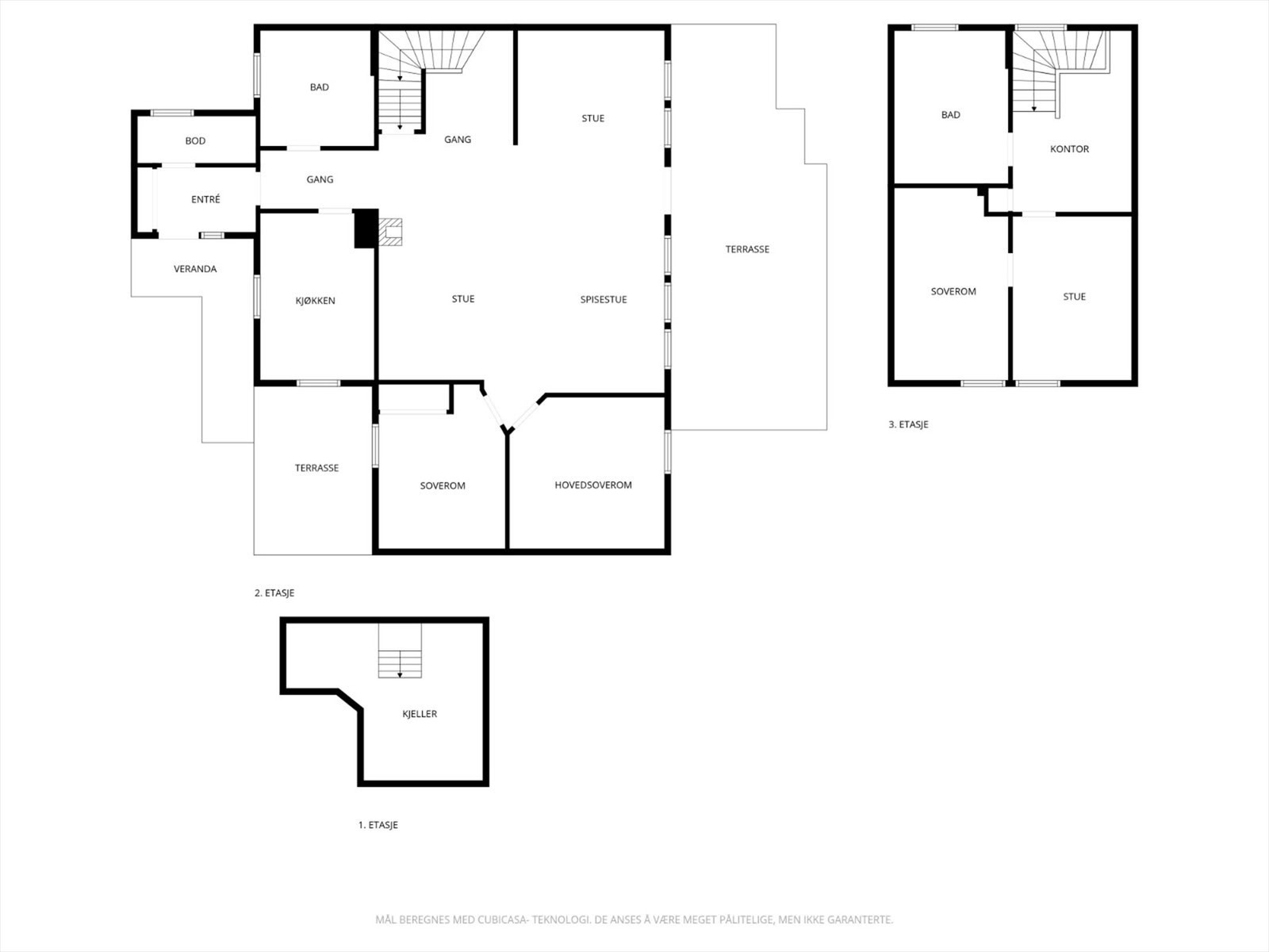
- Soverom
- 4
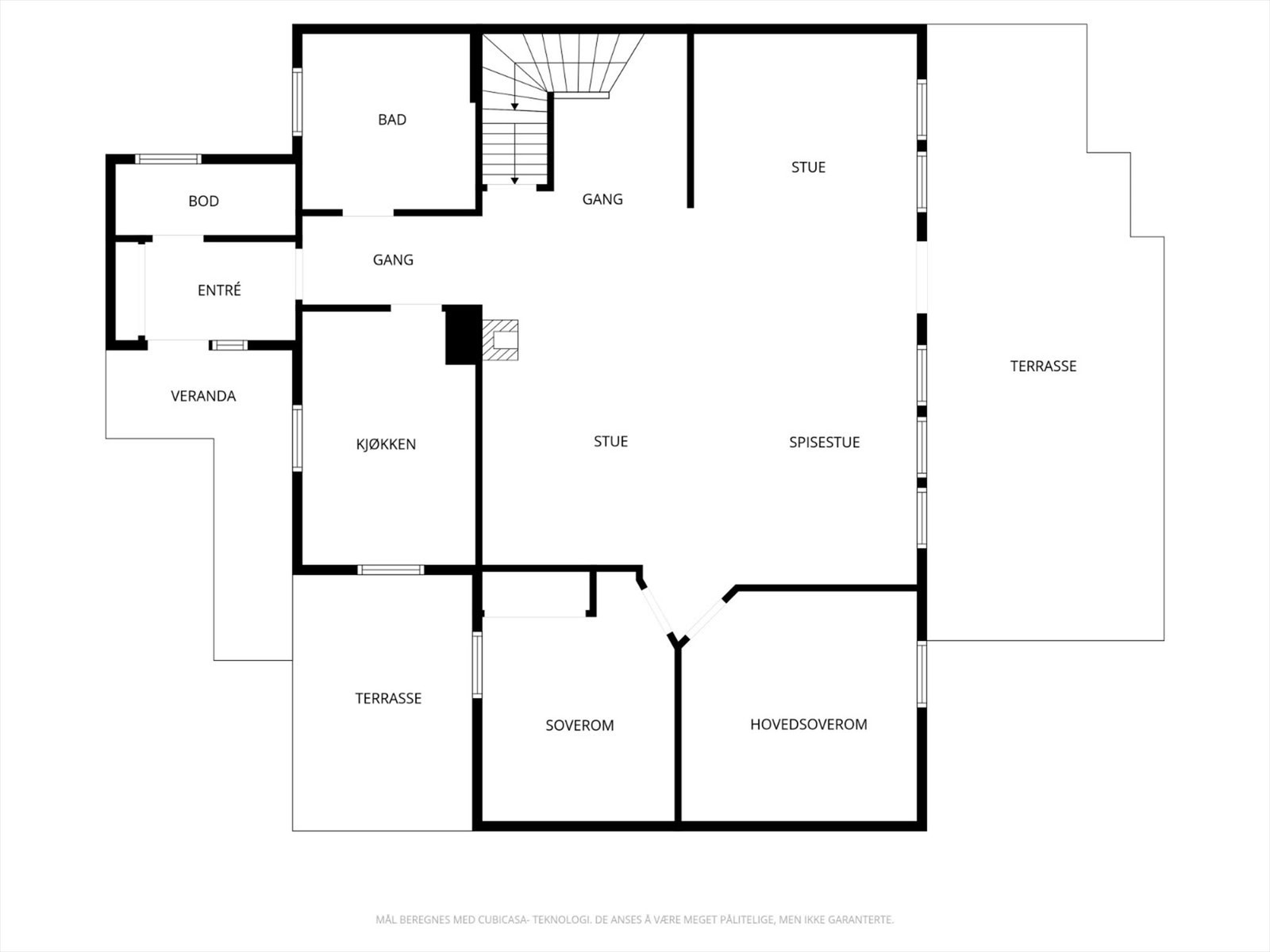
- Internt bruksareal
- 148 m² (BRA-i)
- Bruksareal
- 193 m²
- Eksternt bruksareal
- 45 m² (BRA-e)
- Balkong/Terrasse
- 48 m² (TBA)
- Etasje
- 2
- Byggeår
- 1901
- Energimerking
- G - Gul
- Rom
- 5
- Tomteareal
- 991 m² (eiet)
Visning
Ønsker du å delta på visningen ber vi deg melde deg på slik at vi vet at du kommer. Da kan vi bistå alle best mulig og gi deg tiden du trenger på visningen.
Visningen avholdes bare dersom det er påmeldte innen kl. 16:00 på visningsdagen.
Ta gjerne kontakt med megler før visning hvis du har noen spørsmål. Velkommen!
VisningspåmeldingOm boligen
Velkommen til en sjarmerende eiendom beliggende på Ajer/Bekkesvea i nærheten av Ajer ungdomsskole og Hamar katedralskole.
Eiendommen består av en innholdsrik enebolig over halvannen etasje med bad i hver etasje og mulighet for 4 soverom. Alle rom er oppusset i lyse farger, og boligen fremstår som tiltalende.
Stor stue med utgang til terrasse og romslig solrik vestvendt hage.
Frittstående dobbelgarasje.
Beliggende innerst i blindvei og kort vei til Storhamar senter og Maxi kjøpesenter. Prestrud med fotballanlegg, CC-amfi med ishockey, OBOS Arena og Storhamar håndball, samt flotte turstier langs Mjøsa og i Furuberget.
Eiendommen består av en innholdsrik enebolig over halvannen etasje med bad i hver etasje og mulighet for 4 soverom. Alle rom er oppusset i lyse farger, og boligen fremstår som tiltalende.
Stor stue med utgang til terrasse og romslig solrik vestvendt hage.
Frittstående dobbelgarasje.
Beliggende innerst i blindvei og kort vei til Storhamar senter og Maxi kjøpesenter. Prestrud med fotballanlegg, CC-amfi med ishockey, OBOS Arena og Storhamar håndball, samt flotte turstier langs Mjøsa og i Furuberget.
NB: Knappen for å vise hele beskrivelsen har kun en visuell effekt.
NB: Knappen for å vise hele beskrivelsen har kun en visuell effekt.
Salgsoppgaven beskriver vesentlig og lovpålagt informasjon om eiendommen
Se komplett salgsoppgaveNyttige lenker
Nærområdet
EiendomsMegler 1 Stange
Vi loser deg trygt gjennom hele boligsalget
Annonsene kan være mangelfulle i forhold til lovpålagt opplysningsplikt. Før bindende avtale inngås oppfordres interessenter til å innhente komplett informasjon fra meglerforetaket, selger eller utleier.
























































