Bildegalleri

Benjamin Ådna v/Nordvik har gleden av å presentere denne lekre klassiske 2-roms leiligheten i byggets 2. etasje, med en svært sentral beliggenhet på Majorstuen! Foto: Henrik Fjørtoft Sporsheim v/ Tigerstaden Boligfoto AS.
Uranienborg - Majorstuen
Lekker, klassisk 2-roms med god takhøyde 3m - Nyere balkong 3m² - Peis - Stukkatur og rosett - Ingen dok.
Prisantydning6 590 000 kr
Nøkkelinfo
- Boligtype
- Leilighet
- Eieform
- Andel
- Soverom
- 1
- Internt bruksareal
- 55 m² (BRA-i)
- Bruksareal
- 67 m²
- Eksternt bruksareal
- 12 m² (BRA-e)
- Balkong/Terrasse
- 3 m² (TBA)
- Etasje
- 2
- Byggeår
- 1893
- Energimerking
- G - Oransje
- Rom
- 2
- Tomteareal
- 1 173 m² (eiet)
Fasiliteter
Balkong/Terrasse
Bredbåndstilknytning
Kjæledyr tillatt
Offentlig vann/kloakk
Peis/Ildsted
Rolig
Sentralt
Om boligen
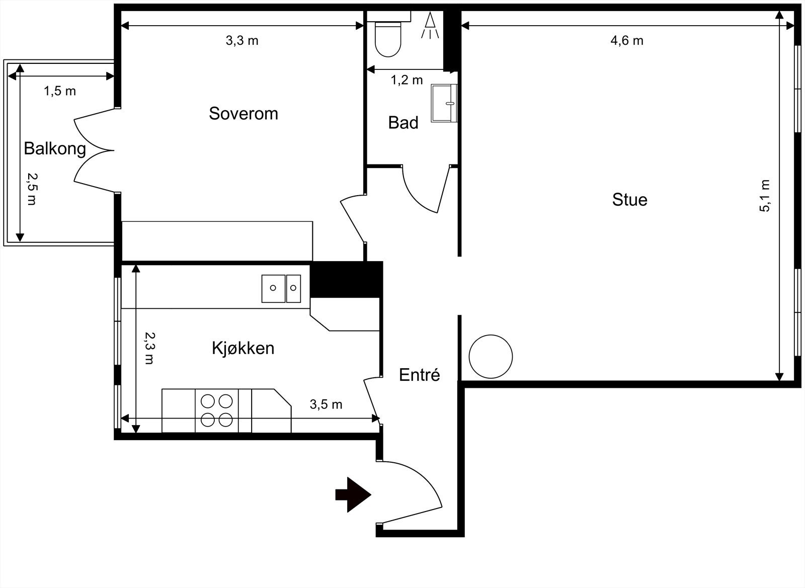
Benjamin Ådna v/Nordvik har gleden av å presenterer denne klassiske leiligheten i byggets 2. etasje. Leiligheten har gjennomgående planløsning - innbyderne entré, romslig stue med peis, separat kjøkken oppgradert i 2020, stort soverom og delikat bad. Store vindusflater som gir rikelig med naturlig lys. Her bor du i et av Oslos mest attraktive områder med pene, klassiske bygårder og kort vei til "alt".
- Nordvestvendt balkong på 3m² mot rolig bakgård
- Lekre klassiske detaljer som rosetter, stukkatur og brede vinduskarmer
- Mulighet for to soverom ved å flytte kjøkken til stue
- Romslig soverom mot stille bakgård
- Orginale tregulv, peis og generøs takhøyde 3m
- Rolig og attraktivt område med klassisk byarkitektur
- Kjellerbod 9m² og loftsbod 3m²
- Parkering*
NB: Knappen for å vise hele beskrivelsen har kun en visuell effekt.
NB: Knappen for å vise hele beskrivelsen har kun en visuell effekt.
Salgsoppgaven beskriver vesentlig og lovpålagt informasjon om eiendommen
Se komplett salgsoppgaveNyttige lenker
Nærområdet
Nordvik Majorstuen
Annonseinformasjon
| FINN-kode | 428891727 |
|---|---|
| Sist endret | 07. jan. 2026 02:27 |
| Referanse | 8-0523/25 |
Annonsene kan være mangelfulle i forhold til lovpålagt opplysningsplikt. Før bindende avtale inngås oppfordres interessenter til å innhente komplett informasjon fra meglerforetaket, selger eller utleier.



































