Bildegalleri

- Velkommen til Rugdeberget 33, presentert av Øystein Opheim -
Solgt
Hauketo / Øvre Prinsdal
Attraktivt enderekkehus med solrik terrasse, hage og balkong. Bilfritt og barnevennlig. Garasje. Fjernvarme inkl.
Prisantydning5 000 000 kr
Nøkkelinfo
- Boligtype
- Rekkehus
- Eieform
- Andel
- Soverom
- 3
- Internt bruksareal
- 90 m² (BRA-i)
- Bruksareal
- 93 m²
- Eksternt bruksareal
- 3 m² (BRA-e)
- Balkong/Terrasse
- 57 m² (TBA)
- Byggeår
- 1984
- Energimerking
- G - Mørkegrønn
- Rom
- 4
- Tomteareal
- 38 691 m² (eiet)
Fasiliteter
Balkong/Terrasse
Barnevennlig
Garasje/P-plass
Kabel-TV
Offentlig vann/kloakk
Parkett
Rolig
Vaktmester-/vektertjeneste
Turterreng
Om boligen
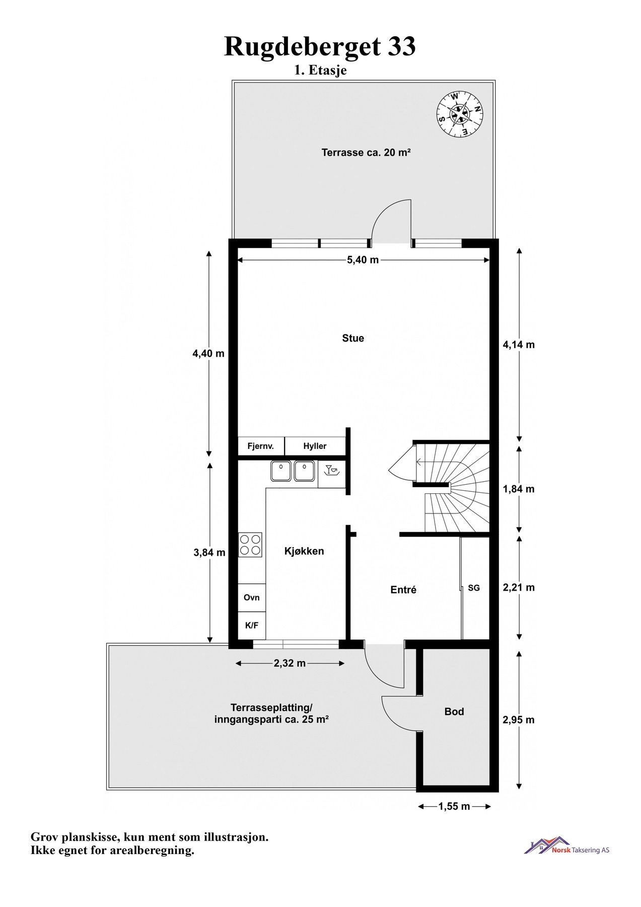
Velkommen til Rugdeberget 33, et attraktiv og familievennlig rekkehus over to plan. Dette er et veletablert og populært boligområde i idylliske og grønne omgivelser på toppen av Hauketo/Øvre Prinsdal. Boligen inneholder bl.a. stue, kjøkken, tre soverom samt bad og wc. Videre har boligen flotte uteområder rundt tre sider av boligen som er opparbeidet med to terrasser og hage med frodige beplantninger.
Et bilfritt og meget barnevennlig borettslag, med kort vei til lekeplasser, turstier, lysløyper, barnehage og skole.
- Familievennlig og attraktiv enderekkehus
- Utgang til flotte og solrike terrasser
- Barnevennlig og inngjerdet uteområde
- Parkering i felles garasjeanlegg
- Fjernvarme, varmtvann, TV og internett inkl.
- Tilhørighet til Prinsdal skole med trygg skolevei
- Tog fra Hauketo St. bruker ca. 10 min. til Oslo S.
- Lave kjøpsomkostninger - Ingen dokumentavgift
Et bilfritt og meget barnevennlig borettslag, med kort vei til lekeplasser, turstier, lysløyper, barnehage og skole.
- Familievennlig og attraktiv enderekkehus
- Utgang til flotte og solrike terrasser
- Barnevennlig og inngjerdet uteområde
- Parkering i felles garasjeanlegg
- Fjernvarme, varmtvann, TV og internett inkl.
- Tilhørighet til Prinsdal skole med trygg skolevei
- Tog fra Hauketo St. bruker ca. 10 min. til Oslo S.
- Lave kjøpsomkostninger - Ingen dokumentavgift
NB: Knappen for å vise hele beskrivelsen har kun en visuell effekt.
NB: Knappen for å vise hele beskrivelsen har kun en visuell effekt.
Salgsoppgaven beskriver vesentlig og lovpålagt informasjon om eiendommen
Se komplett salgsoppgaveNyttige lenker
Nærområdet

PrivatMegleren Panorama
Kun det beste på dine vegne
Annonseinformasjon
| FINN-kode | 428795537 |
|---|---|
| Sist endret | 11. okt. 2025 10:34 |
| Referanse | 38251274 |
Annonsene kan være mangelfulle i forhold til lovpålagt opplysningsplikt. Før bindende avtale inngås oppfordres interessenter til å innhente komplett informasjon fra meglerforetaket, selger eller utleier.


















































