Bildegalleri

Velkommen til Vesterøyveien 281! Foto: Jeanett Teigen
Vesterøya |Hel tomannsbolig med utleiedel, oppgradert i 2025, idyllisk hage og kort vei til sjø og strender
Prisantydning6 850 000 kr
Nøkkelinfo
- Boligtype
- Tomannsbolig
- Eieform
- Eier (Selveier)
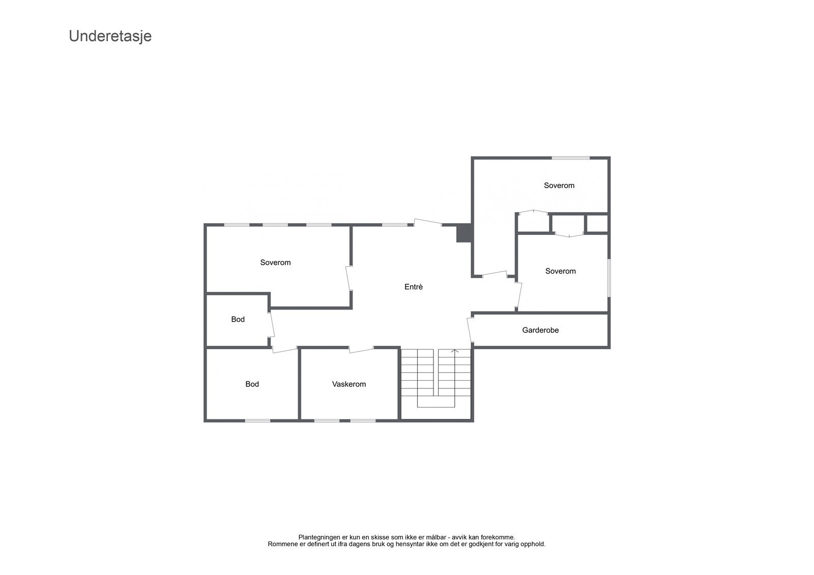
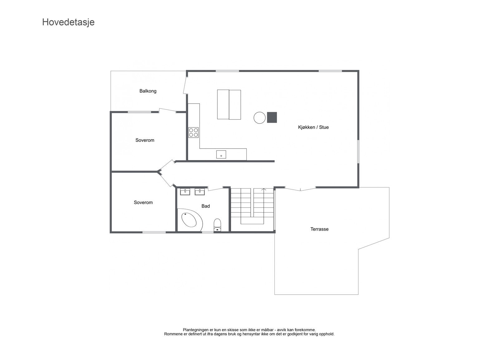
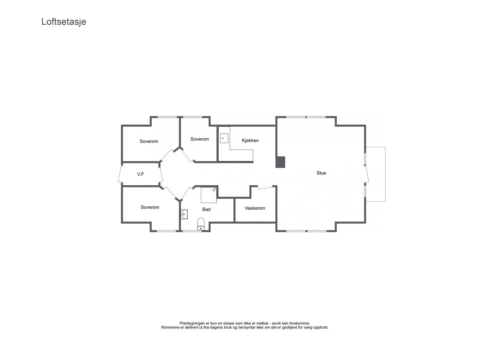
- Soverom
- 8
- Internt bruksareal
- 228 m² (BRA-i)
- Bruksareal
- 247 m²
- Eksternt bruksareal
- 19 m² (BRA-e)
- Balkong/Terrasse
- 13 m² (TBA)
- Etasje
- 3
- Byggeår
- 1955
- Energimerking
- F - Oransje
- Tomteareal
- 1 521 m² (eiet)
Fasiliteter
Balkong/Terrasse
Barnevennlig
Garasje/P-plass
Hage
Kjæledyr tillatt
Kabel-TV
Offentlig vann/kloakk
Peis/Ildsted
Utsikt
Bademulighet
Visning
Alle våre visninger har påmelding. På denne måten sikrer vi at megler har god oversikt og tid til å imøtekomme alle interessenter. Meld deg på visning ved å trykke på lenken visningspåmelding. Visning utgår dersom det ikke er noen påmeldte 2 timer før oppsatt visningstidspunkt.
VisningspåmeldingOm boligen
Velkommen til Vesterøyveien 281 en hel tomannsbolig med flott beliggenhet, høyt og fritt i terrenget. Eiendommen har en nydelig, opparbeidet hagetomt med plen og idylliske omgivelser. Boligen har praktisk planløsning, er bruksvennlig og er gjennomgående oppgradert, sist i 2025. Her kan du flytte rett inn.
Eiendommen består av en stor hoveddel med egen toppleilighet som i dag er utleid for 12.000,-. Beliggenheten er ypperlig for deg som liker sjø og natur, med strender og turstier like i nærheten. Kort vei til lekeplasser og et aktivt sommerliv på Langeby og Vøra.
Vi ønsker velkommen til visning!
Eiendommen består av en stor hoveddel med egen toppleilighet som i dag er utleid for 12.000,-. Beliggenheten er ypperlig for deg som liker sjø og natur, med strender og turstier like i nærheten. Kort vei til lekeplasser og et aktivt sommerliv på Langeby og Vøra.
Vi ønsker velkommen til visning!
NB: Knappen for å vise hele beskrivelsen har kun en visuell effekt.
NB: Knappen for å vise hele beskrivelsen har kun en visuell effekt.
Salgsoppgaven beskriver vesentlig og lovpålagt informasjon om eiendommen
Se komplett salgsoppgaveNyttige lenker
Nærområdet
Nordvik Sandefjord
Vi vet hva det er verdt
Annonseinformasjon
| FINN-kode | 428638218 |
|---|---|
| Sist endret | 30. nov. 2025 10:21 |
| Referanse | 40-0100/25 |
Annonsene kan være mangelfulle i forhold til lovpålagt opplysningsplikt. Før bindende avtale inngås oppfordres interessenter til å innhente komplett informasjon fra meglerforetaket, selger eller utleier.


















































