Bildegalleri

Megler Fabian Robertino (92117474) ønsker velkommen til St. Hansfjellet og 3. etasje i Frøyas gate 51!
ST.HANSFJELLET
Moderne 3-roms leilighet på toppen av byen | Vestvendt balkong med fantastisk sjøutsikt & solforhold | Garasjeplass
Prisantydning2 790 000 kr
Nøkkelinfo
- Boligtype
- Leilighet
- Eieform
- Andel
- Soverom
- 2
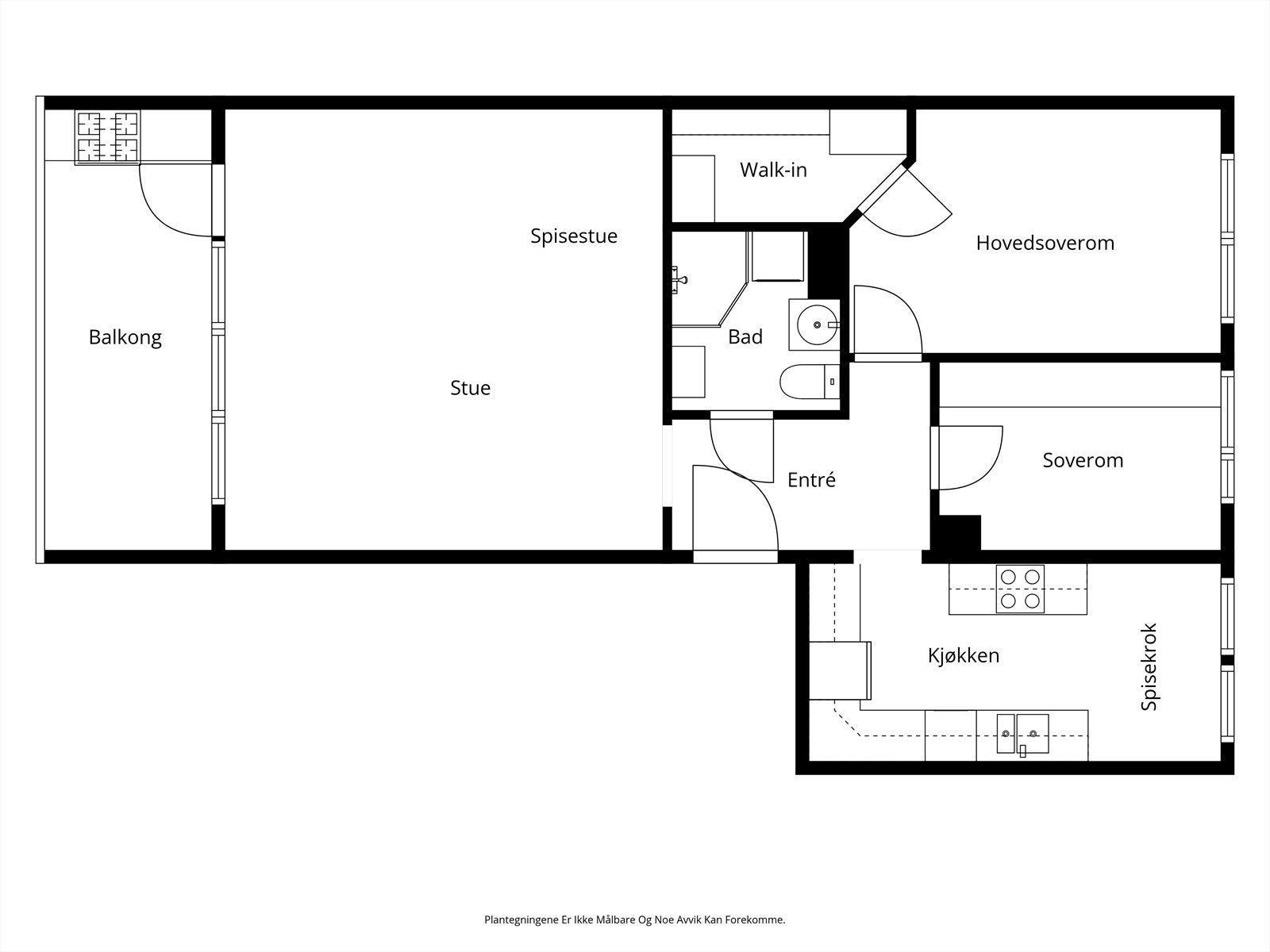
- Internt bruksareal
- 74 m² (BRA-i)
- Bruksareal
- 74 m²
- Balkong/Terrasse
- 10 m² (TBA)
- Etasje
- 3
- Byggeår
- 1989
- Energimerking
- E - Rød
- Rom
- 3
- Tomteareal
- 13 563 m² (eiet)
Fasiliteter
Balkong/Terrasse
Barnevennlig
Bredbåndstilknytning
Garasje/P-plass
Kjæledyr tillatt
Kabel-TV
Offentlig vann/kloakk
Rolig
Sentralt
Utsikt
Vaktmester-/vektertjeneste
Turterreng
Lademulighet
Visning
Velkommen til visning! Meld deg på ved å trykke "visningspåmelding" i våre boligannonser. Visning med megler til stede vil ikke bli avholdt uten påmeldinger. Ta gjerne kontakt med megler i forkant av visningen om du har spørsmål.
VisningspåmeldingOm boligen
Flott og stilfull 3-roms andelsleilighet med utmerket beliggenhet ved St. Hansfjellet. Lettstelt leilighet med god planløsning og vestvendt balkong med fantastisk sjøutsikt, deilig kveldssol og god plass til utemøbler. Meget sentral beliggenhet med nærhet til friluftsområder, offentlig kommunikasjon og sentrums fasiliteter.
Leiligheten har følgende kvaliteter:
Velkommen til visning!
Leiligheten har følgende kvaliteter:
- Klassisk kjøkken med profilerte fronter fra 2010
- To lune soverom og et praktisk garderoberom
- Flislagt bad med gulvvarme som ble pusset opp i 2011
- Gjennomgående med laminat på gulvene og lyse farger på veggene
- Stor stue med moderne fargevalg og utgang til balkong
- Solrik balkong på ca 10 kvm med fantastisk utsikt
- Fast p-plass i felles garasje og sportsbod i kjeller
Velkommen til visning!
NB: Knappen for å vise hele beskrivelsen har kun en visuell effekt.
NB: Knappen for å vise hele beskrivelsen har kun en visuell effekt.
Salgsoppgaven beskriver vesentlig og lovpålagt informasjon om eiendommen
Se komplett salgsoppgaveNyttige lenker
Nærområdet
DNB Eiendom AS
Fra hjem til hjem
Annonseinformasjon
| FINN-kode | 428621133 |
|---|---|
| Sist endret | 06. nov. 2025 13:24 |
| Referanse | 217250312 |
Annonsene kan være mangelfulle i forhold til lovpålagt opplysningsplikt. Før bindende avtale inngås oppfordres interessenter til å innhente komplett informasjon fra meglerforetaket, selger eller utleier.









































