Bildegalleri

Velkommen til Nardovegen 5 B, presentert av Johannes Tømmerås!
Nardo/Lerkendal
PEN & STOR 2-ROMS MED SENTRAL BELIGGENHET. 2 boder. Kort vei til NTNU Gløshaugen. Lave felleskostnader. P-plass*
Prisantydning2 940 000 kr
Nøkkelinfo
- Boligtype
- Leilighet
- Eieform
- Andel
- Soverom
- 1
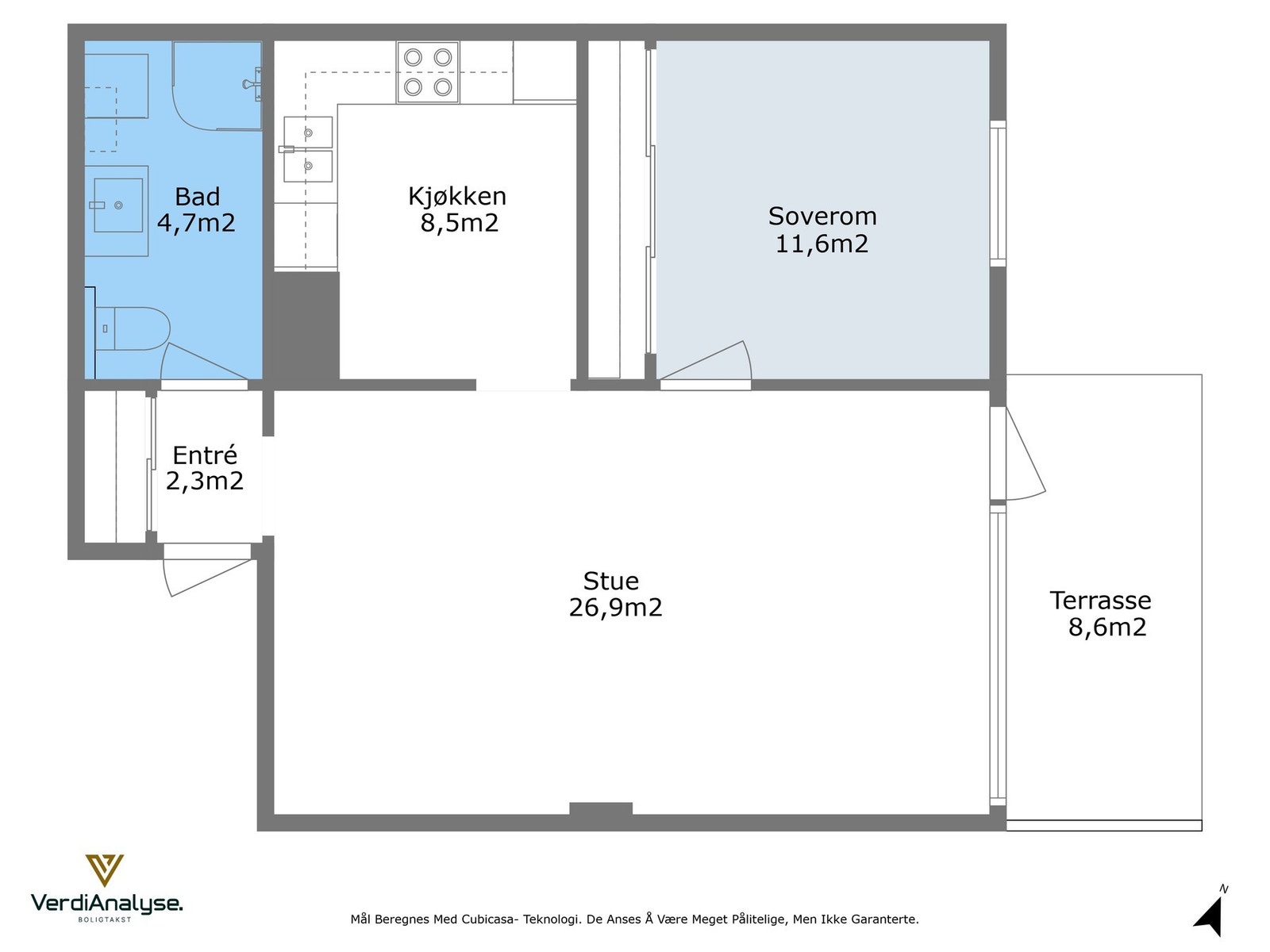
- Internt bruksareal
- 57 m² (BRA-i)
- Bruksareal
- 61 m²
- Eksternt bruksareal
- 4 m² (BRA-e)
- Balkong/Terrasse
- 9 m² (TBA)
- Etasje
- 1
- Byggeår
- 1967
- Energimerking
- F - Rød
- Rom
- 2
- Tomteareal
- 2 860 m² (eiet)
Fasiliteter
Barnevennlig
Balkong/Terrasse
Garasje/P-plass
Kabel-TV
Offentlig vann/kloakk
Ingen gjenboere
Turterreng
Sentralt
Bredbåndstilknytning
Rolig
Balansert ventilasjon
Om boligen
Velkommen til Nardovegen 5 B, presentert av EiendomsMegler 1 v/Johannes Tømmerås. Fin og stor 2-roms med svært sentral beliggenhet. Korte avstander til gode bussforbindelser, dagligvarebutikker rett ved boligen m.m.
Leiligheten byr på en rekke kvaliteter, som blant annet:
Leiligheten byr på en rekke kvaliteter, som blant annet:
- Fin og romslig 2-roms som holder en fin standard
- Romslig stue med flere møbleringsmulighter
- Flott kjøkken som har fått TG1 av takstmann
- Fin terrasse med gode solforhold
- God størrelse på badet med opplegg for vaskemaskin
- Fint og innbydende soverom
- 2 boder for lagringsplass, samt felles sykkelbod
- Balansert ventilasjon i boligen som gir et godt inneklima :
- Borettslaget får inn svært gode salgsinntekter fra tomtesalg som skal brukes til rehabilitering av borettslaget. Konferer med megler!
Velkommen til en hyggelig visning!
NB: Knappen for å vise hele beskrivelsen har kun en visuell effekt.
NB: Knappen for å vise hele beskrivelsen har kun en visuell effekt.
Salgsoppgaven beskriver vesentlig og lovpålagt informasjon om eiendommen
Se komplett salgsoppgaveNyttige lenker
Nærområdet
EiendomsMegler 1 Lerkendal
Vi loser deg trygt gjennom hele boligsalget
Annonseinformasjon
| FINN-kode | 428619280 |
|---|---|
| Sist endret | 14. jan. 2026 05:07 |
| Referanse | 37250275 |
Annonsene kan være mangelfulle i forhold til lovpålagt opplysningsplikt. Før bindende avtale inngås oppfordres interessenter til å innhente komplett informasjon fra meglerforetaket, selger eller utleier.
























