Bildegalleri

Velkommen til Døsserødveien 65 presentert av EiendomsMegler 1 v/ Hans Westby
Pen, nyere og moderne 3-roms med livsløpsstandard, veranda og garasjeplass (el-billader) I Rolig og sentral beliggenhet
Prisantydning4 490 000 kr
Nøkkelinfo
- Boligtype
- Leilighet
- Eieform
- Eier (Selveier)
- Soverom
- 2
- Internt bruksareal
- 83 m² (BRA-i)
- Bruksareal
- 90 m²
- Eksternt bruksareal
- 7 m² (BRA-e)
- Balkong/Terrasse
- 18 m² (TBA)
- Etasje
- 1
- Byggeår
- 2019
- Rom
- 3
- Tomteareal
- 1 406 m² (eiet)
Om boligen
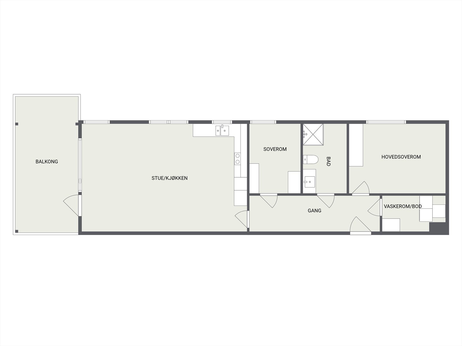
Tiltalende, velholdt og morderne leilighet oppført i 2019. Leiligheten er innredet med bl.a. 2 gode soverom, pent flislagt baderom med varmekabler i gulv, opplegg for vaskemaskin, servant, wc og dusjkabinett. Bod/vaskerom med lagringsplass og opplegg for vaskemaskin. Romslig kjøkken og stue i åpen løsning med tiltalende kjøkken med lyse slette fronter, rikelig med skap og benkplass og integrerte hvitevarer, herunder: kjøl/frys, ovn/platetopp og oppvaskmaskin. God plass til stort spisebord mellom kjøkken og stue. Trivelig stue med stor vindusflater for rikelig tilgang på naturlig lys og utgang til stor overbyd veranda med morgensol og ettermiddag/kveldssol. Garasjeplass i oppvarmet garasjeanlegg med el-billader. Lagringsplass i bod og sykkelparkering i felles sykkelbod.
NB: Knappen for å vise hele beskrivelsen har kun en visuell effekt.
NB: Knappen for å vise hele beskrivelsen har kun en visuell effekt.
Salgsoppgaven beskriver vesentlig og lovpålagt informasjon om eiendommen
Se komplett salgsoppgaveNyttige lenker
Nærområdet
EiendomsMegler 1 Tønsberg
En del av Sparebank 1 Sør-Norge
Annonseinformasjon
| FINN-kode | 428606835 |
|---|---|
| Sist endret | 15. des. 2025 12:57 |
| Referanse | 2871250071 |
Annonsene kan være mangelfulle i forhold til lovpålagt opplysningsplikt. Før bindende avtale inngås oppfordres interessenter til å innhente komplett informasjon fra meglerforetaket, selger eller utleier.






































