Bildegalleri

Velkommen til Kongsvingervegen 2!

Unik jugendbolig fra 1930 m/​6 soverom | Sentralt & stor tomt | Mansardtak | Renoveringsobjekt

Prisantydning6 990 000 kr
Totalpris
7 166 100 kr
Omkostninger
176 100 kr
Kommunale avg.
15 295 kr per år
Formuesverdi
1 226 145 kr

Nøkkelinfo

Boligtype
Enebolig
Eieform
Eier (Selveier)
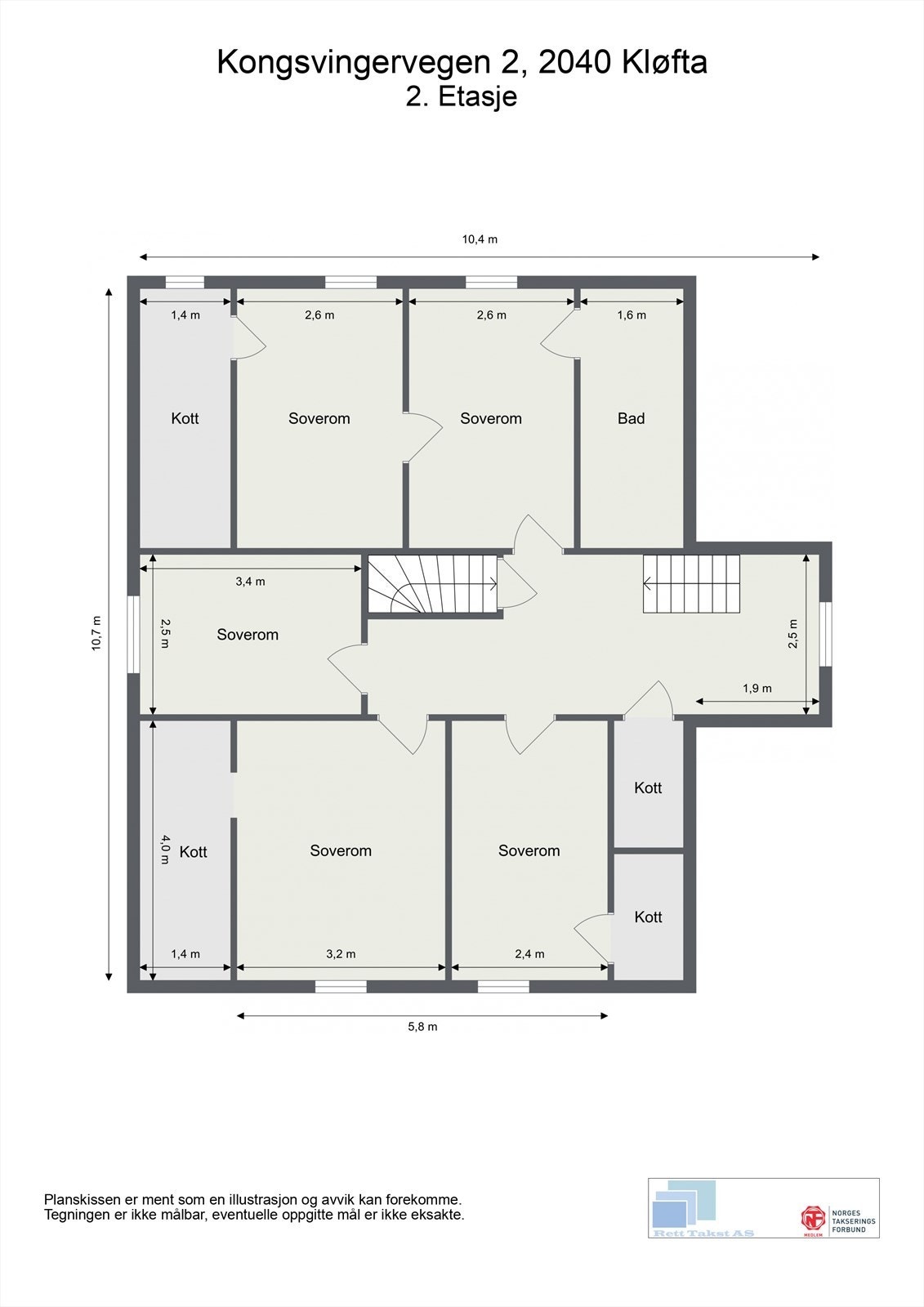
Soverom
6
Internt bruksareal
321 m² (BRA-i)
Bruksareal
378 m²
Eksternt bruksareal
57 m² (BRA-e)
Etasje
2
Byggeår
1930
Energimerking
G - Rød
Rom
11
Tomteareal
2 989 m² (eiet)

Les mer om bruksareal her

Visning

Vi ønsker på forhånd å vite om du kommer på visning og ber deg ta kontakt for avtale om visning på angitt dag. Dette gjør vi for å kunne yte bedre service til kundene våre. For visninger utover de annonserte, ta kontakt med megler på telefon 948 41 566.
Visningspåmelding

Om boligen

Velkommen til Kongsvingervegen 2! Dette er en flott enebolig fra 1930 bygd i jugendstil med sentral beliggenhet på Kløfta. Boligen er et rehabiliteringsobjekt med et betydelig potensial, perfekt for deg som ønsker å skape ditt eget drømmehjem. Eiendommen har en stor, eiet tomt på 2989 m² som er pent opparbeidet med gårdsplass, plen og beplantning.

Huset strekker seg over flere plan og inneholder blant annet stue, spisestue og kjøkken i første etasje. Med hele fem soverom i andre etasje og ett i første, er det rikelig med plass for en stor familie. Boligen har en praktisk romløsning med kjeller og loft som byr på gode lagringsmuligheter. I tillegg finnes det et eget bygg på 57 m² med bod.
Velkommen til visning!

Salgsoppgaven beskriver vesentlig og lovpålagt informasjon om eiendommen

Se komplett salgsoppgave

Nærområdet

Annonseinformasjon

FINN-kode428458003
Sist endret25. nov. 2025 14:51
Referanse3375250169

Rapporter annonse

Annonsene kan være mangelfulle i forhold til lovpålagt opplysningsplikt. Før bindende avtale inngås oppfordres interessenter til å innhente komplett informasjon fra meglerforetaket, selger eller utleier.