Bildegalleri

Solgt
Velkommen til Eiganes

Sjarmerende leilighet med solrik balkong, flott felles hage, to soverom og kjeller med vaskerom/​bad og to arbeidsrom

Prisantydning3 850 000 kr
Totalpris
3 947 600 kr
Omkostninger
97 600 kr
Kommunale avg.
13 270 kr per år
Formuesverdi
1 063 746 kr

Nøkkelinfo

Boligtype
Leilighet
Eieform
Eier (Selveier)
Soverom
2
Internt bruksareal
65 m² (BRA-i)
Bruksareal
98 m²
Eksternt bruksareal
33 m² (BRA-e)
Balkong/Terrasse
7 m² (TBA)
Byggeår
1916
Energimerking
F - Gul
Rom
3
Tomteareal
448 m² (eiet)

Les mer om bruksareal her

Fasiliteter

Barnevennlig
Balkong/Terrasse
Garasje/P-plass
Offentlig vann/kloakk
Parkett
Peis/Ildsted
Turterreng
Utsikt
Sentralt
Moderne
Rolig
Lademulighet

Om boligen

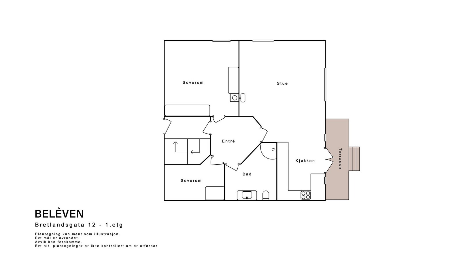
Drømmer du om en sjarmerende leilighet med 2 soverom, åpen stue og kjøkkenløsning med fin atmosfære og en solrik balkong som har tilkomst til hagen? Den fine leiligheten i Bretlandsgata 12 har flott beliggenhet på Eiganes.
Her kan du nyte solrike dager på balkongen eller i den hyggelige felles hagen, perfekt for morgenkaffe eller sene sommerkvelder.
Med tilkomst fra gangen er det et helfliset baderom med moderne baderomsinnredning og elektrisk gulvvarme. De to soverommene er tilbaketrukket fra stuen. Leiligheten har både varmepumpe og vedovn.
Tilhørende leiligheten er det innredet i kjeller, med gang, baderom/vaskerom, kontor og arbeidsrom. Det er ekstra lagringsplass ved kjellertrapp. Kjelleretasjen gir fleksible muligheter og har vært benyttet som kontor, gjesterom og tv-stue (rom i kjeller er ikke byggegodkjent). Det er en fast parkeringsplass i carport, samt en utvendig bod.

Salgsoppgaven beskriver vesentlig og lovpålagt informasjon om eiendommen

Se komplett salgsoppgave

Nærområdet

Prisstatistikk

Bretlandsgata 12

5 487 klikk

på annonsen

59 230 kr

prisantydning per kvadratmeter

Prisfordeling

Pris per m² ligger 770 kr under snittet for leiligheter i Eiganes/Stokka/Sandal.

Grafen viser antall leiligheter solgt i Eiganes/Stokka/Sandal siste året fordelt på pris per m² - totalt 158 leiligheter

Antall boliger

02468101214
Histogram som viser prisfordeling for boliger i Eiganes/Stokka/SandalDenne boligen koster 59000 kr per kvadratmeter, mens gjennomsnittet er 60000 kr per kvadratmeter30 00054 00078 000100 000130 000Pris per m² i krDenne boligen59 000 kr

Kvadratmeterpris tilsvarer prisantydning pluss fellesgjeld per kvadratmeter (p-rom eller BRA-i). Prisene i grafen er avrundet til nærmeste 1000 kr.

Eiendommer solgt i samme område

I løpet av de siste 12 månedene

Bilde av kartet på finn.no

Annonseinformasjon

FINN-kode428277288
Sist endret17. okt. 2025 11:49
Referanse2250049

Rapporter annonse

Annonsene kan være mangelfulle i forhold til lovpålagt opplysningsplikt. Før bindende avtale inngås oppfordres interessenter til å innhente komplett informasjon fra meglerforetaket, selger eller utleier.