Bildegalleri

Velkommen til Hofsøyveien 23, presentert av Nordvik Finnsnes!
Inaktiv
Sør-Senja/Stonglandseidet: Flermannsbolig med fire leiligheter.
Prisantydning4 400 000 kr
Nøkkelinfo
- Boligtype
- Bygård/Flermannsbolig
- Eieform
- Eier (Selveier)
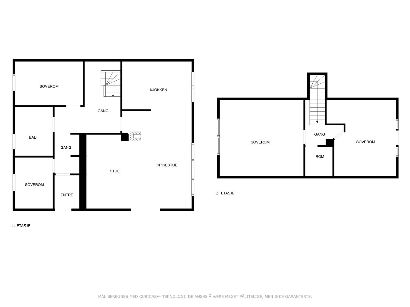
- Soverom
- 2
- Internt bruksareal
- 275 m² (BRA-i)
- Bruksareal
- 459 m²
- Eksternt bruksareal
- 184 m² (BRA-e)
- Balkong/Terrasse
- 152 m² (TBA)
- Etasje
- 3
- Byggeår
- 1983
- Energimerking
- E - Rød
- Tomteareal
- 2 008 m² (eiet)
Fasiliteter
Garasje/P-plass
Offentlig vann/kloakk
Peis/Ildsted
Rolig
Sentralt
Om boligen
Velkommen til Hofsøyveien 23, her presentert av Nordvik Finnsnes!
Denne flermannsboligen ble oppført ca. 1983 er ombygget i flere omganger. Boligen er oppdelt i 4 boenheter, hvorav 3 er innredet til boliger og den fjerde er påstartet renovering og må ferdigstilles av ny eier før den kan brukes. Eiendommen har en enkel adkomst og god plass til parkering på egen tomt samt i stor dobbelgarasje. Garasjedelen er innredet med boder og har god lagringsplass. Beliggenheten er sentral på Stonglandseidet, med kort vei til en rekke lokale servicetilbud. Den lokale dagligvarebutikken, Joker, tilbyr post i butikk-tjenester, og for barnefamilier er det gangavstand til både Stonglandet barnehage og skole.
Denne flermannsboligen ble oppført ca. 1983 er ombygget i flere omganger. Boligen er oppdelt i 4 boenheter, hvorav 3 er innredet til boliger og den fjerde er påstartet renovering og må ferdigstilles av ny eier før den kan brukes. Eiendommen har en enkel adkomst og god plass til parkering på egen tomt samt i stor dobbelgarasje. Garasjedelen er innredet med boder og har god lagringsplass. Beliggenheten er sentral på Stonglandseidet, med kort vei til en rekke lokale servicetilbud. Den lokale dagligvarebutikken, Joker, tilbyr post i butikk-tjenester, og for barnefamilier er det gangavstand til både Stonglandet barnehage og skole.
NB: Knappen for å vise hele beskrivelsen har kun en visuell effekt.
NB: Knappen for å vise hele beskrivelsen har kun en visuell effekt.
Salgsoppgaven beskriver vesentlig og lovpålagt informasjon om eiendommen
Se komplett salgsoppgaveNyttige lenker
Nærområdet
Nordvik Finnsnes
Annonseinformasjon
| FINN-kode | 428000290 |
|---|---|
| Sist endret | 10. okt. 2025 16:10 |
| Referanse | 28-0055/25 |
Annonsene kan være mangelfulle i forhold til lovpålagt opplysningsplikt. Før bindende avtale inngås oppfordres interessenter til å innhente komplett informasjon fra meglerforetaket, selger eller utleier.































































