Bildegalleri

Gjelleråsveien 3B presenteres av PrivatMegleren v/ Chattree
GJELLERÅSEN | HAGAN
MEGET ROMSLG ENEBOLIG PÅ 200m² FRA 2012 | 5 SOVEROM, TO BAD, TO STUER, PARKERING & STOR TERRASSE | PERFEKT FAMILIEBOLIG
Prisantydning8 480 000 kr
Nøkkelinfo
- Boligtype
- Enebolig
- Eieform
- Eier (Selveier)
- Soverom
- 5
- Internt bruksareal
- 200 m² (BRA-i)
- Bruksareal
- 221 m²
- Eksternt bruksareal
- 15 m² (BRA-e)
- Balkong/Terrasse
- 43 m² (TBA)
- Byggeår
- 2012
- Energimerking
- B - Oransje
- Rom
- 7
- Tomteareal
- 683 m² (eiet)
Fasiliteter
Barnevennlig
Balkong/Terrasse
Garasje/P-plass
Kabel-TV
Alarm
Offentlig vann/kloakk
Ingen gjenboere
Peis/Ildsted
Turterreng
Aircondition
Sentralt
Bredbåndstilknytning
Moderne
Rolig
Lademulighet
Om boligen
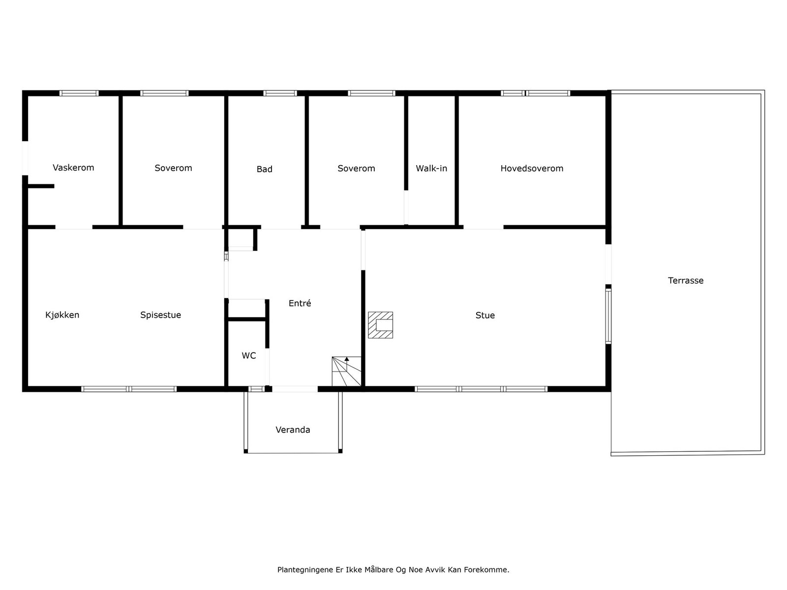
Velkommen til Gjelleråsveien 3B - en familievennlig enebolig med god plass til hele familien! Boligen byr på ca. 200m² BRA-i fordelt på to plan, med romslige oppholdsrom, fem soverom, to bad og store uteplasser. I 2. etasje venter en stue på hele 51 m² - perfekt for selskap eller mulighet for 2 soverom. I 1. etasje får du kjøkken med spiseplass og egen stue med peis. Beliggenheten på Gjelleråstoppen er barnevennlig og fredelig med turstier, lysløyper og marka rett i nærheten, samtidig som bussholdeplass, og handel på Hagan, Rema 1000 og Stovner er like ved. Et hjem med plass til å vokse - både inne og ute!
. Ca. 200m² BRA-i over to plan
. Stue på 51m² i 2. etasje
. 5 soverom + walk-in closet
. Kjøkken med spiseplass
. Peisovn i stuen
. To bad + vaskerom og separat wc
. Stor terrasse på 39m²
. Utebod på 15m²
. Mulighet for 2 nye soverom (loft)
. Barnevennlig beliggenhet nær marka
. 25 min til Oslo S med buss nr 380 & 390 hvert 15 min
. Ca. 200m² BRA-i over to plan
. Stue på 51m² i 2. etasje
. 5 soverom + walk-in closet
. Kjøkken med spiseplass
. Peisovn i stuen
. To bad + vaskerom og separat wc
. Stor terrasse på 39m²
. Utebod på 15m²
. Mulighet for 2 nye soverom (loft)
. Barnevennlig beliggenhet nær marka
. 25 min til Oslo S med buss nr 380 & 390 hvert 15 min
NB: Knappen for å vise hele beskrivelsen har kun en visuell effekt.
NB: Knappen for å vise hele beskrivelsen har kun en visuell effekt.
Salgsoppgaven beskriver vesentlig og lovpålagt informasjon om eiendommen
Se komplett salgsoppgaveNyttige lenker
Nærområdet
PrivatMegleren Grünerløkka
Kun det beste på dine vegne
Annonseinformasjon
| FINN-kode | 427752558 |
|---|---|
| Sist endret | 21. nov. 2025 05:01 |
| Referanse | 302251011 |
Annonsene kan være mangelfulle i forhold til lovpålagt opplysningsplikt. Før bindende avtale inngås oppfordres interessenter til å innhente komplett informasjon fra meglerforetaket, selger eller utleier.





















































