Bildegalleri

EiendomsMegler 1 v/Marius Aune Olsen har gleden av å presentere Karen Aunes Veg 13 B - Et særdeles flott og moderne rekkehus i lekker utførelse med god beliggenhet på beste Overvik.
STILRENT REKKEHUS PÅ 96M² BRA-I FRA 2021 | 3 soverom | Flere gode uteplasser | Parkering | Barnevennlig område
Nøkkelinfo
- Boligtype
- Rekkehus
- Eieform
- Andel
- Soverom
- 3
- Internt bruksareal
- 96 m² (BRA-i)
- Bruksareal
- 101 m²
- Eksternt bruksareal
- 5 m² (BRA-e)
- Balkong/Terrasse
- 21 m² (TBA)
- Etasje
- 2
- Byggeår
- 2021
- Energimerking
- B - Rød
- Rom
- 4
- Tomt
- Eiet
Fasiliteter
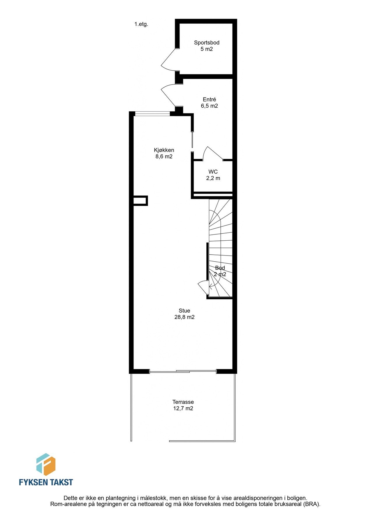
Om boligen
Boligen ble ferdigstilt så sent som i 2021, så her får du en gjennomgående høy og moderne standard med gode kvaliteter. TG0/1 på absolutt alle punkter.
En gjenganger i boligen er lyse overflater og store vindusflater. Kombinert med god planløsning får boligen en lett og avslappet atmosfære. På sommerstid nyter man gode solforhold store deler av dagen på boligens uteplasser, fjordgløtt har man også! Videre skimter boligen med 3 gode soverom, bad + toalettrom/vaskerom samt åpen stue- kjøkkenløsning.
Av flere gode kvaliteter fremheves:
- Stilrent rekkehus i lekker utførelse fra 2021
- Oppgradert kjøkken med integrerte hvitevarer fra Siemens, Røroshetta avtrekk.
- Flere gode uteplasser med sol
- 3 gode soverom i varierende størrelser
- Parkering i oppvarmet parkeringskjeller
- Ekstern sportsbod rett utenfor døren.
Velkommen til en hyggelig visning!
Salgsoppgaven beskriver vesentlig og lovpålagt informasjon om eiendommen
Se komplett salgsoppgaveNyttige lenker
Nærområdet
EiendomsMegler 1 Grilstadporten
Prisstatistikk
Karen Aunes veg 13 B
på annonsen
prisantydning per kvadratmeter
Prisfordeling
Pris per m² ligger 14 312 kr over snittet for rekkehus i Trondheim Øst.
Grafen viser antall rekkehus solgt i Trondheim Øst siste året fordelt på pris per m² - totalt 194 rekkehus
Antall boliger
Kvadratmeterpris tilsvarer prisantydning pluss fellesgjeld per kvadratmeter (p-rom eller BRA-i). Prisene i grafen er avrundet til nærmeste 1000 kr.
Annonseinformasjon
| FINN-kode | 427681437 |
|---|---|
| Sist endret | 06. okt. 2025 12:29 |
| Referanse | 33250274 |
Annonsene kan være mangelfulle i forhold til lovpålagt opplysningsplikt. Før bindende avtale inngås oppfordres interessenter til å innhente komplett informasjon fra meglerforetaket, selger eller utleier.



















































