Bildegalleri

Velkommen til Kjerkveien 2 - To splitter nye og familievennlige halvparter av tomannsbolig, med barnevennlig beliggenhet og egen garasje!
BERKÅK - Meld deg på visning!
2 splitter nye, familievennlige halvparter med egen garasje | 3 soverom | 2 bad + vaskerom| Barnevennlig| Nybygg-garanti
Prisantydning3 690 000 kr
Nøkkelinfo
- Boligtype
- Tomannsbolig
- Eieform
- Eier (Selveier)
- Soverom
- 3
- Internt bruksareal
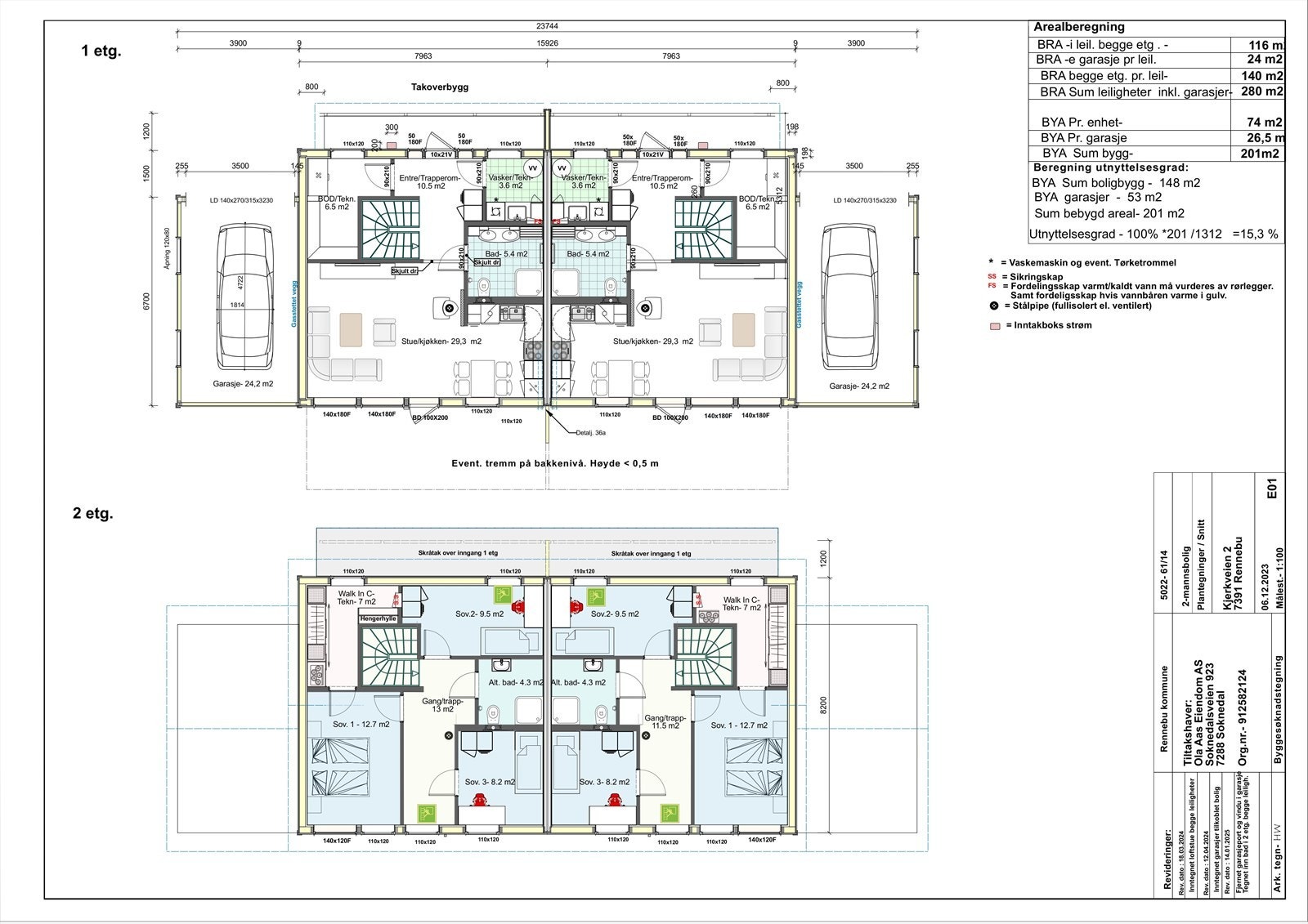
- 116 m² (BRA-i)
- Bruksareal
- 142 m²
- Eksternt bruksareal
- 26 m² (BRA-e)
- Balkong/Terrasse
- 35 m² (TBA)
- Etasje
- 2
- Byggeår
- 2025
- Energimerking
- B - Oransje
- Rom
- 4
- Tomteareal
- 1 313 m² (eiet)
Fasiliteter
Balkong/Terrasse
Barnevennlig
Garasje/P-plass
Offentlig vann/kloakk
Parkett
Peis/Ildsted
Rolig
Sentralt
Turterreng
Balansert ventilasjon
Visning
søndag, 11. januar
12:00 – 13:00
Alle våre visninger har påmelding. Meld deg opp til ønsket visningstidspunkt via linken visningspåmelding , eller kontakt megler på telefon, SMS eller mail. Vi anbefaler at salgsoppgaven lastes ned digitalt, og oppfordrer alle til å lese komplett salgsoppgave før visning. Skulle det mot formodning ikke være påmeldte til angitt visningstidspunkt vil ikke visning bli gjennomført.
VisningspåmeldingOm boligen
Velkommen til Kjerkveien 2, der du nå finner to splitter nye og familievennlige tomannsboliger, som ble ferdigstilt i september 2025.
Hver halvpart går over to plan og inneholder bl.a. tre soverom, to bad, vaskerom, åpen stue-/kjøkken-løsning, walk-in- garderobe og bod/teknisk rom. Boligen ligger i et barnevennlig område, med kort vei til skole, barnehage, dagligvarebutikker, treningssenter og idrettsanlegg.
Verdt å merke seg:
- Lav dokumentavgift
- Egen garasje, samt godt med biloppstillingsplasser i gårdsplassen
- 3 soverom
- 2 bad
- Sentral beliggenhet
- 5 års nybygg-garanti
- Gangavstand til barnehage og grunnskole
- Gangavstand til sentrum med butikker og servicetilbud
- Eget vaskerom
- Mulighet for snarlig innflytting
Velkommen til en trivelig visning!
Hver halvpart går over to plan og inneholder bl.a. tre soverom, to bad, vaskerom, åpen stue-/kjøkken-løsning, walk-in- garderobe og bod/teknisk rom. Boligen ligger i et barnevennlig område, med kort vei til skole, barnehage, dagligvarebutikker, treningssenter og idrettsanlegg.
Verdt å merke seg:
- Lav dokumentavgift
- Egen garasje, samt godt med biloppstillingsplasser i gårdsplassen
- 3 soverom
- 2 bad
- Sentral beliggenhet
- 5 års nybygg-garanti
- Gangavstand til barnehage og grunnskole
- Gangavstand til sentrum med butikker og servicetilbud
- Eget vaskerom
- Mulighet for snarlig innflytting
Velkommen til en trivelig visning!
NB: Knappen for å vise hele beskrivelsen har kun en visuell effekt.
NB: Knappen for å vise hele beskrivelsen har kun en visuell effekt.
Salgsoppgaven beskriver vesentlig og lovpålagt informasjon om eiendommen
Se komplett salgsoppgaveNyttige lenker
Nærområdet
Heimdal Eiendomsmegling avd. Melhus
Annonseinformasjon
| FINN-kode | 427676839 |
|---|---|
| Sist endret | 24. des. 2025 10:48 |
| Referanse | 3-25-0040 |
Annonsene kan være mangelfulle i forhold til lovpålagt opplysningsplikt. Før bindende avtale inngås oppfordres interessenter til å innhente komplett informasjon fra meglerforetaket, selger eller utleier.









































