Bildegalleri

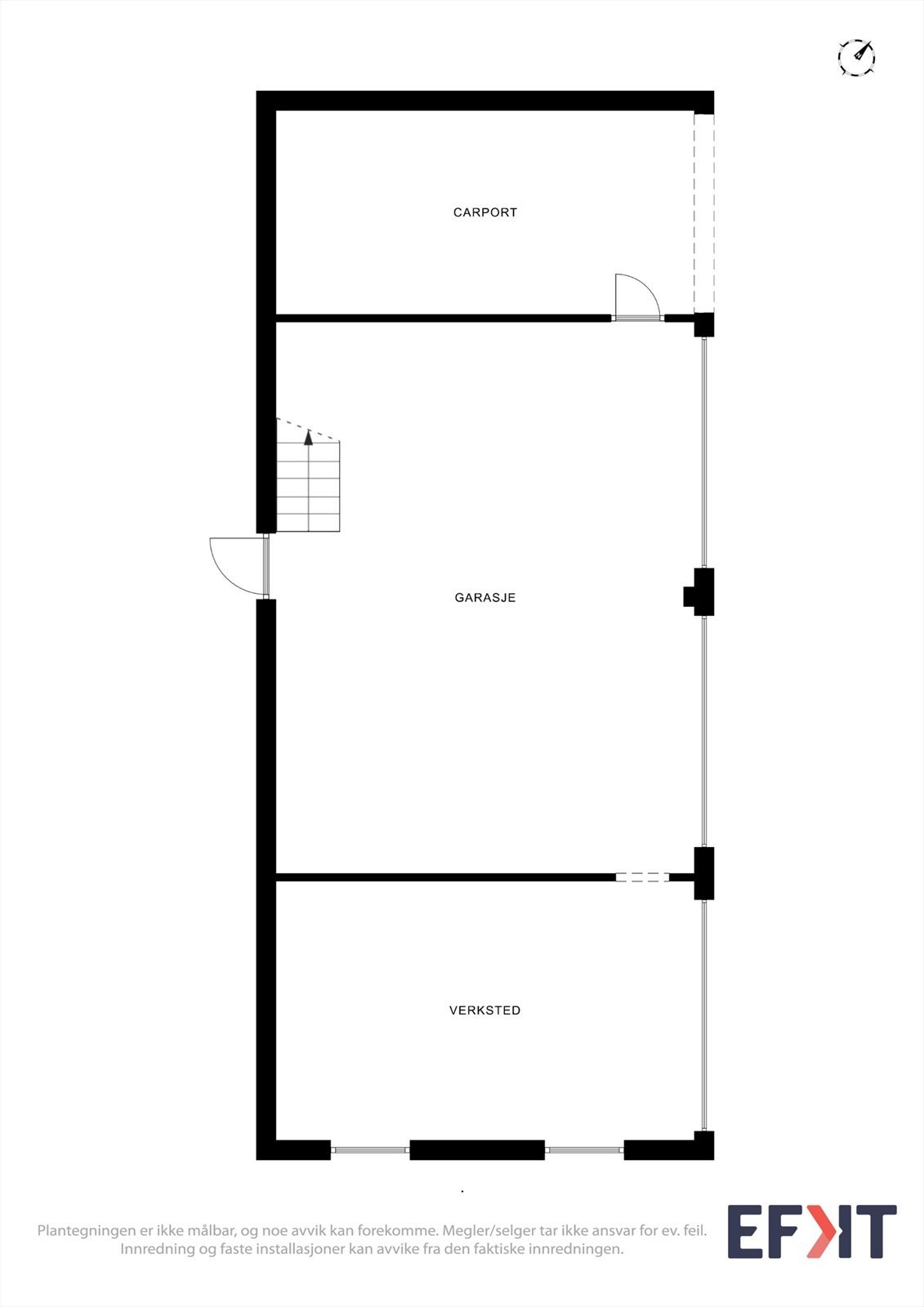
Velkommen til Valdresvegen 3506! En innholdsrik eiendom som består av stor enebolig, garasje/carport, redskapshus/verksted og et eldre stabbur i laftet tømmer. Fotograf: Tor Solberg.
Bagn
Innholdsrik enebolig, verksted, garasje og stabbur med kort vei til Bagn sentrum. Stor tomt og landlig beliggenhet.
Prisantydning2 590 000 kr
Nøkkelinfo
- Boligtype
- Enebolig
- Eieform
- Eier (Selveier)
- Soverom
- 4
- Internt bruksareal
- 334 m² (BRA-i)
- Bruksareal
- 460 m²
- Eksternt bruksareal
- 126 m² (BRA-e)
- Balkong/Terrasse
- 21 m² (TBA)
- Etasje
- 3
- Byggeår
- 1988
- Energimerking
- D - Gul
- Tomteareal
- 13 151 m² (eiet)
Fasiliteter
Barnevennlig
Garasje/P-plass
Hage
Kjæledyr tillatt
Kabel-TV
Peis/Ildsted
Rolig
Utsikt
Fiskemulighet
Turterreng
Om boligen
Dette er en innholdsrik enebolig med garasje, verksted og sjarmerende stabbur på tunet, ca. 3,5 km sør for Bagn sentrum. Her bor du i et rolig og naturnært område med spredt gårds- og boligbebyggelse, omgitt av vakker Valdres-natur og fin utsikt til Begna Elv.
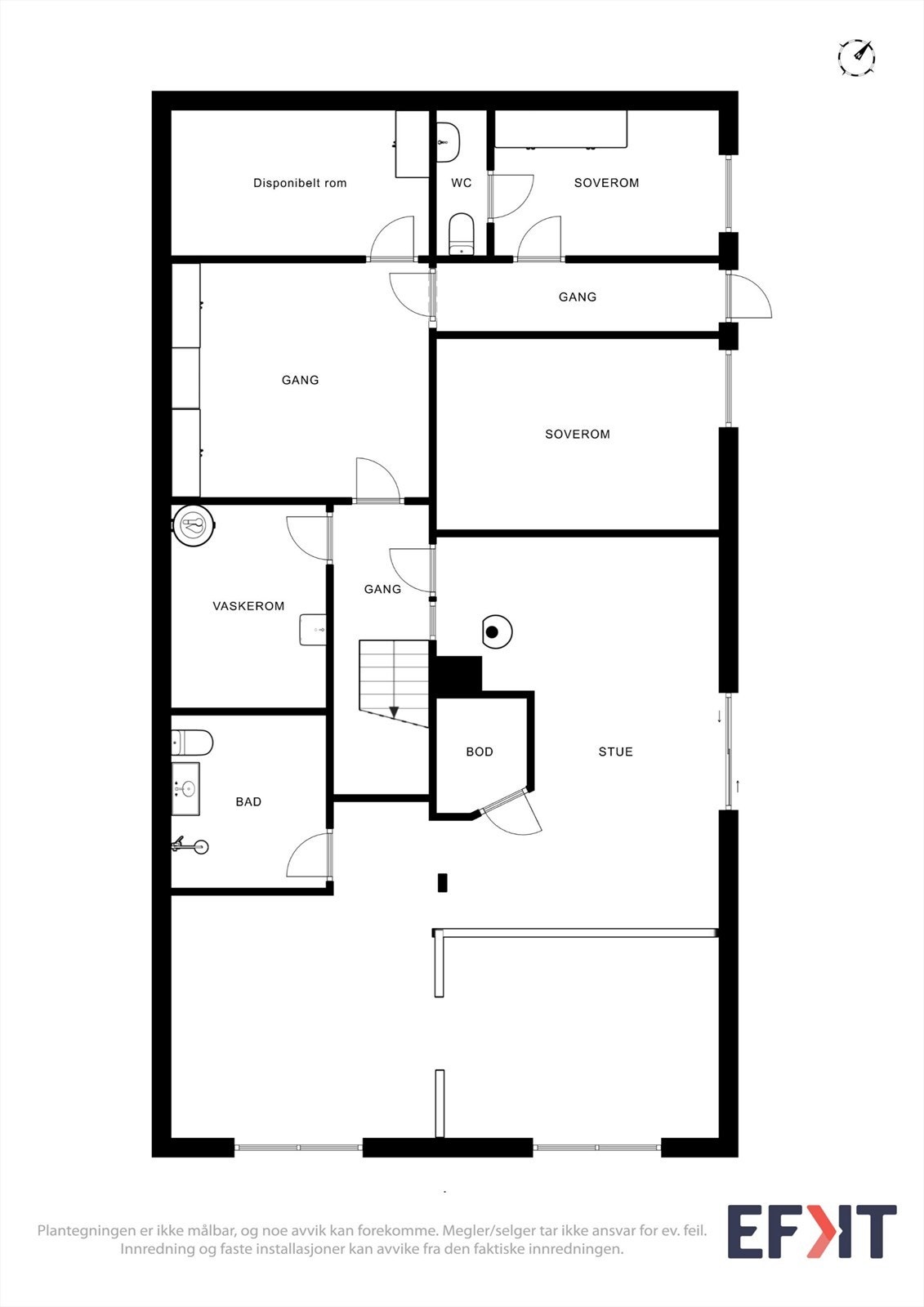
Eiendommen har romslig tomt og ligger landlig til med fine sol- og utsiktsforhold. Boligen går over tre plan og byr på stor stue med vedovn og luft-til-luft varmepumpe, kjøkken med god skapplass, flere soverom og bad. Loftsetasje med disponible rom, samt kjelleretasje med egen inngang, stue med utgang til uteområdet, to soverom, vaskerom, bad, toalettrom og grovkjøkken.
Valdresvegen 3506 er en eiendom med mange muligheter, perfekt for deg som ønsker god plass, skjermet beliggenhet og kort vei til sentrum.
Velkommen på visning!
Eiendommen har romslig tomt og ligger landlig til med fine sol- og utsiktsforhold. Boligen går over tre plan og byr på stor stue med vedovn og luft-til-luft varmepumpe, kjøkken med god skapplass, flere soverom og bad. Loftsetasje med disponible rom, samt kjelleretasje med egen inngang, stue med utgang til uteområdet, to soverom, vaskerom, bad, toalettrom og grovkjøkken.
Valdresvegen 3506 er en eiendom med mange muligheter, perfekt for deg som ønsker god plass, skjermet beliggenhet og kort vei til sentrum.
Velkommen på visning!
NB: Knappen for å vise hele beskrivelsen har kun en visuell effekt.
NB: Knappen for å vise hele beskrivelsen har kun en visuell effekt.
Salgsoppgaven beskriver vesentlig og lovpålagt informasjon om eiendommen
Se komplett salgsoppgaveNærområdet
Aktiv Valdres
Annonseinformasjon
| FINN-kode | 427622979 |
|---|---|
| Sist endret | 13. feb. 2026 11:58 |
| Referanse | 1201250110 |
Annonsene kan være mangelfulle i forhold til lovpålagt opplysningsplikt. Før bindende avtale inngås oppfordres interessenter til å innhente komplett informasjon fra meglerforetaket, selger eller utleier.


































