Bildegalleri

Velkommen til Bakkegata 63!
Sentrumsnær enebolig i populære Bakkegata | Skjermet beliggenhet mot friareal | God planløsning | Oppussingsbehov
Prisantydning2 990 000 kr
Nøkkelinfo
- Boligtype
- Enebolig
- Eieform
- Eier (Selveier)
- Soverom
- 3
- Internt bruksareal
- 193 m² (BRA-i)
- Bruksareal
- 193 m²
- Balkong/Terrasse
- 21 m² (TBA)
- Etasje
- 2
- Byggeår
- 1971
- Energimerking
- E - Gul
- Tomteareal
- 731 m² (eiet)
Fasiliteter
Barnevennlig
Balkong/Terrasse
Garasje/P-plass
Offentlig vann/kloakk
Peis/Ildsted
Turterreng
Utsikt
Sentralt
Rolig
Visning
søndag, 01. februar
15:00 – 16:00
Velkommen til visning!
Alle våre visninger har påmelding. På denne måten sikrer vi at megler har god oversikt og tid til å imøtekomme alle interessenter på beste måte. Dette er veldig verdifullt for boligkjøpere og for oss. Det er enkelt å melde seg på, og du kan like enkelt melde deg av. Kontakt også gjerne megler i forkant av visning dersom du har spørsmål.
Om boligen
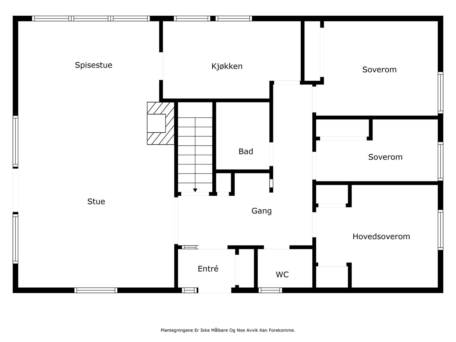
Bakkegata 63 er en flott og koselig enebolig med en god beliggenhet i populære Bakkegata nær sentrum av Askim. Det er pent opparbeidet tomt med gressplen for lek og moro i trygge omgivelser. Tomten ligger 1 kvm fra sentrum og med grenser mot friareal som gir en skjermet beliggenhet på feltet. Fra stuen har man utgang til terrasse på 21 kvm med utsikt over grøntarealer og på fremsiden er det romslig gårdsplass. Boligen har alt man trenger på en flate.
Stuen er stor og med flere gode soner. I stuen er det koselig spiseplass, tv-krok og en lesekrok. Videre har boligen et bad, separat wc, romslig kjøkken, et vaskerom og tre gode soverom. I kjellerne har man også rikelig med lagringsplass og potensiale.
Boligen har oppussingsbehov.
Stuen er stor og med flere gode soner. I stuen er det koselig spiseplass, tv-krok og en lesekrok. Videre har boligen et bad, separat wc, romslig kjøkken, et vaskerom og tre gode soverom. I kjellerne har man også rikelig med lagringsplass og potensiale.
Boligen har oppussingsbehov.
NB: Knappen for å vise hele beskrivelsen har kun en visuell effekt.
NB: Knappen for å vise hele beskrivelsen har kun en visuell effekt.
Salgsoppgaven beskriver vesentlig og lovpålagt informasjon om eiendommen
Se komplett salgsoppgaveNyttige lenker
Nærområdet
PrivatMegleren Indre Østfold
Kun det beste på dine vegne
Annonseinformasjon
| FINN-kode | 427581074 |
|---|---|
| Sist endret | 23. jan. 2026 16:03 |
| Referanse | 292250092 |
Annonsene kan være mangelfulle i forhold til lovpålagt opplysningsplikt. Før bindende avtale inngås oppfordres interessenter til å innhente komplett informasjon fra meglerforetaket, selger eller utleier.




































