Bildegalleri

Spannatoppen
Flott og moderne bolig fra 2011, godt utstyrt med gjennomtenkte løsninger
Prisantydning6 150 000 kr
Nøkkelinfo
- Boligtype
- Enebolig
- Eieform
- Eier (Selveier)
- Soverom
- 4
- Internt bruksareal
- 194 m² (BRA-i)
- Bruksareal
- 225 m²
- Eksternt bruksareal
- 31 m² (BRA-e)
- Balkong/Terrasse
- 52 m² (TBA)
- Etasje
- 2
- Byggeår
- 2011
- Energimerking
- C - Lysegrønn
- Rom
- 6
- Tomteareal
- 577 m² (eiet)
Visning
tirsdag, 10. februar
16:00 – 16:45
Ønsker du å delta på visningen ber vi deg melde deg på slik at vi vet at du kommer. Da kan vi bistå alle best mulig og gi deg tiden du trenger på visningen. Kontakt gjerne megler før visning hvis du har spørsmål. Visningen avholdes bare dersom det er påmeldte. Hvis det ikke er oppsatt visningstidspunkt eller tidspunkt ikke passer, kontakt megler.
VisningspåmeldingOm boligen
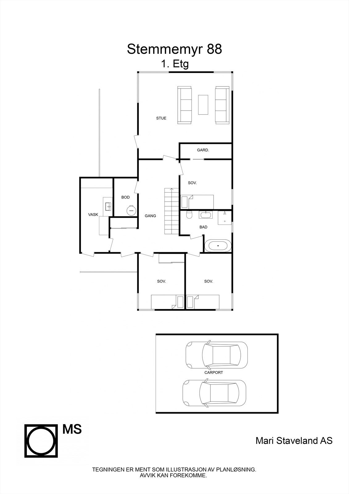
Velkommen til Stemmemyr 88 - En flott og moderne bolig fra 2011, godt utstyrt med gjennomtenkte løsninger. Boligen har en romslig planløsning fordelt over 2 plan og inneholder bl.a. stue, kjøkken, 4 soverom, kjellerstue, 2 bad og vaskerom. Solrik uteplass samt pent opparbeidet inngangsparti og carport.
Boligen har en attraktiv beliggenhet på Spannatoppen like ved barnehage og i nærheten av Norheim skole. Fra eiendommen er det kort avstand til alle servicetilbud, enten du vil ta deg en tur på Oasen Storsenter eller for eksempel Raglamyr forretningsområde. Er du glad i det grønne element er dette muligens boligen for deg. Her har en umiddelbar nærhet til Spannhelgeland og kort vei til Norheimskogen for å nevne noe.
Boligen har en attraktiv beliggenhet på Spannatoppen like ved barnehage og i nærheten av Norheim skole. Fra eiendommen er det kort avstand til alle servicetilbud, enten du vil ta deg en tur på Oasen Storsenter eller for eksempel Raglamyr forretningsområde. Er du glad i det grønne element er dette muligens boligen for deg. Her har en umiddelbar nærhet til Spannhelgeland og kort vei til Norheimskogen for å nevne noe.
NB: Knappen for å vise hele beskrivelsen har kun en visuell effekt.
NB: Knappen for å vise hele beskrivelsen har kun en visuell effekt.
Salgsoppgaven beskriver vesentlig og lovpålagt informasjon om eiendommen
Se komplett salgsoppgaveNyttige lenker
Nærområdet
EiendomsMegler 1 Haugesund
En del av Sparebank 1 Sør-Norge
Annonseinformasjon
| FINN-kode | 427476540 |
|---|---|
| Sist endret | 03. feb. 2026 11:04 |
| Referanse | 2501250301 |
Annonsene kan være mangelfulle i forhold til lovpålagt opplysningsplikt. Før bindende avtale inngås oppfordres interessenter til å innhente komplett informasjon fra meglerforetaket, selger eller utleier.
















































