Bildegalleri

Velkommen til Tessems veg 23A, en moderne leilighet med sentral beliggenhet.
Strindheim
Svært pen 3-roms leilighet på attraktive Strindheim | Renovert i 2021 | Høy standard | Balkong | P-plass | God takhøyde
Prisantydning4 750 000 kr
Nøkkelinfo
- Boligtype
- Leilighet
- Eieform
- Eier (Selveier)
- Soverom
- 2
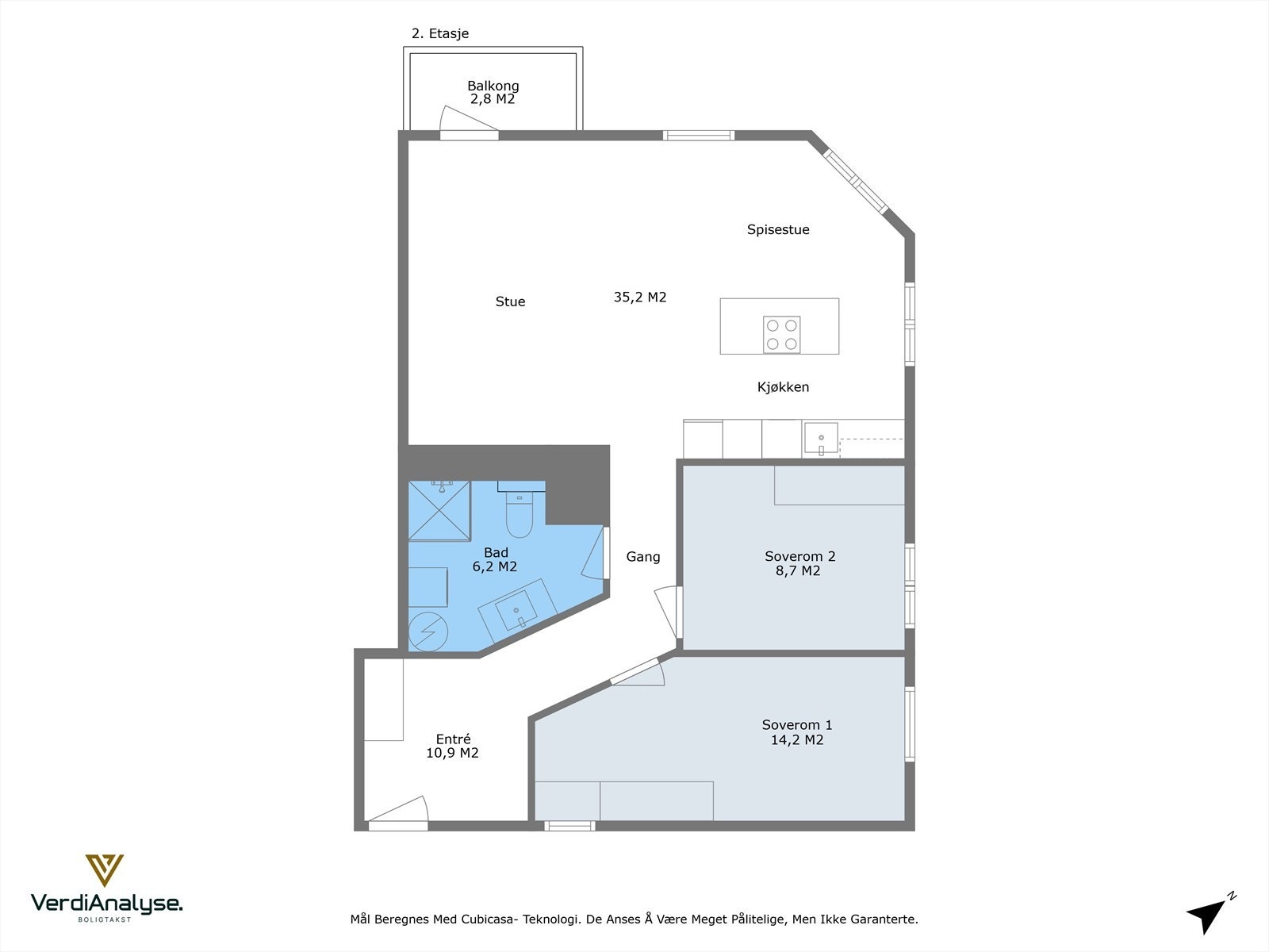
- Internt bruksareal
- 81 m² (BRA-i)
- Bruksareal
- 81 m²
- Balkong/Terrasse
- 3 m² (TBA)
- Etasje
- 2
- Byggeår
- 1912
- Energimerking
- G - Rød
- Rom
- 3
- Tomteareal
- 977 m² (eiet)
Fasiliteter
Balkong/Terrasse
Barnevennlig
Bredbåndstilknytning
Garasje/P-plass
Hage
Kjæledyr tillatt
Kabel-TV
Offentlig vann/kloakk
Rolig
Sentralt
Lademulighet
Visning
tirsdag, 13. januar
16:00 – 16:45
Velkommen til visning! Meld deg på ved å trykke "visningspåmelding" i våre boligannonser. Ta gjerne kontakt med megler i forkant av visningen om du har spørsmål.
VisningspåmeldingOm boligen
Velkommen til Tessems veg 23 A, presentert av DNB Eiendom v/Simen Pettersen, en svært pen 3-roms med attraktiv beliggenhet. Fra leiligheten er det kort avstand til alt du trenger i hverdagen som buss, tog, barnehager, skoler og Sirkus shopping. For den turglade er det ikke langt til Ladestien og den kjente forsvarsrunden. Leiligheten er renovert i 2020/2021 og holder en gjennomgående høy standard.
Kvaliteter jeg ønsker å fremheve:
- Romslig stue-/kjøkkenløsning med gode innredningsmuligheter.
- God takhøyde som gir en luftig romfølelse.
- Balkong med gode solforhold.
- Parkering med elbillader.
- Store vindusflater som sørger for rikelig med naturlig belysning. Spesialtilpasset plissè på alle vinduer.
- To romslige soverom.
Velkommen til en hyggelig visning! - HUSK VISNINGSPÅMELDING
Kvaliteter jeg ønsker å fremheve:
- Romslig stue-/kjøkkenløsning med gode innredningsmuligheter.
- God takhøyde som gir en luftig romfølelse.
- Balkong med gode solforhold.
- Parkering med elbillader.
- Store vindusflater som sørger for rikelig med naturlig belysning. Spesialtilpasset plissè på alle vinduer.
- To romslige soverom.
Velkommen til en hyggelig visning! - HUSK VISNINGSPÅMELDING
NB: Knappen for å vise hele beskrivelsen har kun en visuell effekt.
NB: Knappen for å vise hele beskrivelsen har kun en visuell effekt.
Salgsoppgaven beskriver vesentlig og lovpålagt informasjon om eiendommen
Se komplett salgsoppgaveNyttige lenker
Nærområdet
DNB Eiendom AS
Fra hjem til hjem
Annonseinformasjon
| FINN-kode | 427193022 |
|---|---|
| Sist endret | 30. des. 2025 16:22 |
| Referanse | 823250244 |
Annonsene kan være mangelfulle i forhold til lovpålagt opplysningsplikt. Før bindende avtale inngås oppfordres interessenter til å innhente komplett informasjon fra meglerforetaket, selger eller utleier.




























