Bildegalleri

Velkommen til øvre sentrum og Storhaugen 7 - presentert av Storhaug + Partnere AS
Flott townhouseleilighet over 2 plan | nydelig utsikt | stort og solrikt uteområde | garasje | høy standard
Nøkkelinfo
- Boligtype
- Leilighet
- Eieform
- Eier (Selveier)
- Soverom
- 3
- Internt bruksareal
- 101 m² (BRA-i)
- Bruksareal
- 106 m²
- Eksternt bruksareal
- 5 m² (BRA-e)
- Balkong/Terrasse
- 19 m² (TBA)
- Etasje
- 1
- Byggeår
- 2020
- Rom
- 4
- Tomteareal
- 4 189 m² (eiet)
Om boligen
Storhaug + Partnere AS har gleden av å presentere Storhaugen 7, en svært godt og sentralt beliggende 4-roms selveierleilighet plassert på Storhaugen like ovenfor Tromsø sentrum.
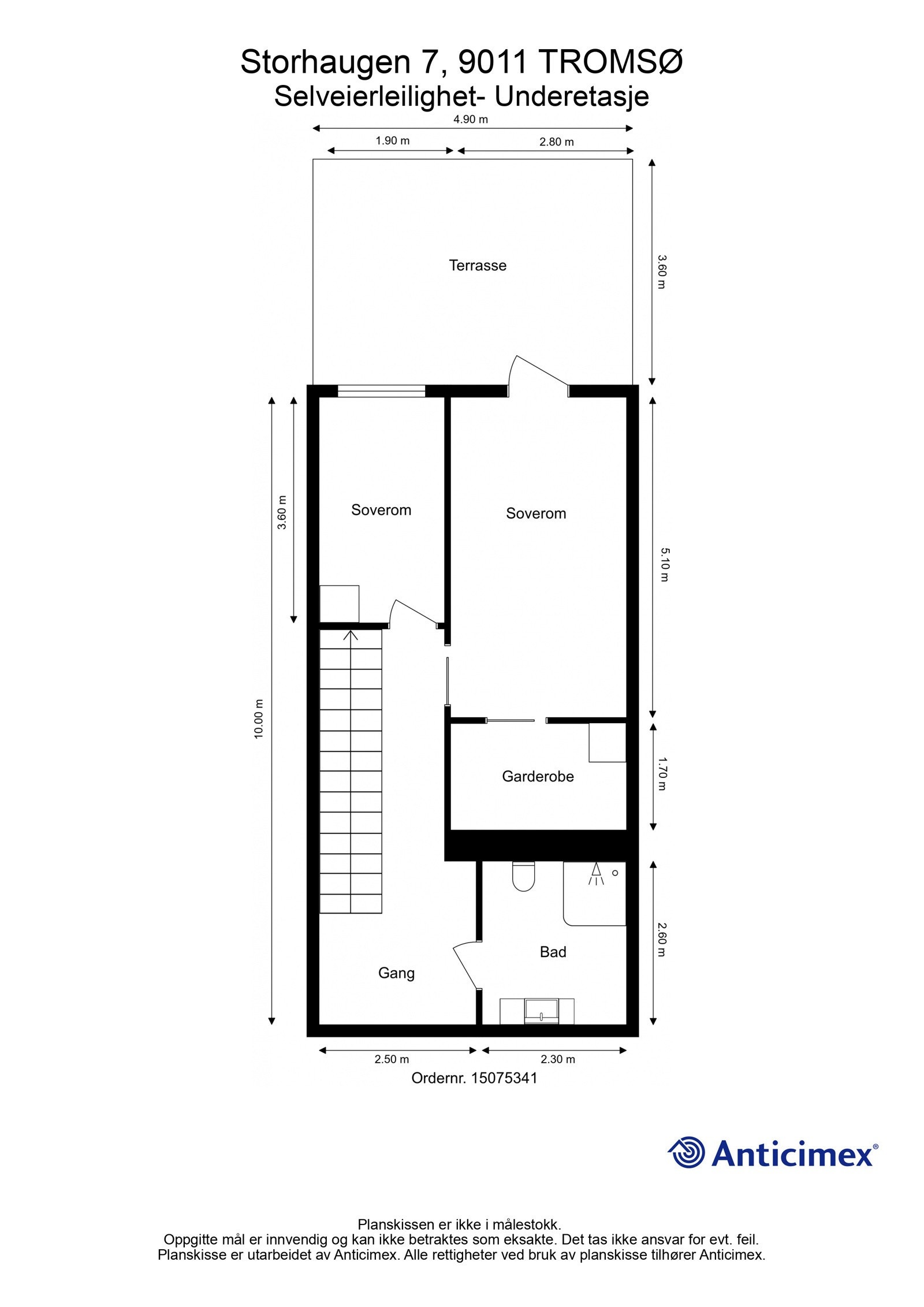
Leiligheten strekker seg over 2 plan, har 3 soverom, gjennomgående høy standard, nydelig utsikt som nytes både fra store vindusflater og terrasse, samt en god og effektiv planløsning.
Her bor du tilbaketrukket i rolige omgivelser samtidig som du har gangavstand til Tromsø sentrum med alle dets fasiliteter og tilbud.
Området er rolig uten særlig trafikk og du finner fine rekreasjonsområder som Gebhartstykket som er en yndet akebakke/skibakke like ved.
Parkering gjøres på egen plass i felles garasjeanlegg!
- Velkommen på visning!
Salgsoppgaven beskriver vesentlig og lovpålagt informasjon om eiendommen
Se komplett salgsoppgaveNærområdet
STORHAUG + PARTNERE AS
Prisstatistikk
Storhaugen 7
på annonsen
prisantydning per kvadratmeter
Prisfordeling
Pris per m² ligger 1 158 kr over snittet for leiligheter i Tromsøya, Midten.
Grafen viser antall leiligheter solgt i Tromsøya, Midten siste året fordelt på pris per m² - totalt 423 leiligheter
Antall boliger
Kvadratmeterpris tilsvarer prisantydning pluss fellesgjeld per kvadratmeter (p-rom eller BRA-i). Prisene i grafen er avrundet til nærmeste 1000 kr.
Annonsene kan være mangelfulle i forhold til lovpålagt opplysningsplikt. Før bindende avtale inngås oppfordres interessenter til å innhente komplett informasjon fra meglerforetaket, selger eller utleier.



















































