Bildegalleri

Nordvik Eiendomsmegling v/Christoffer Kvalshaugen ønsker deg velkommen til Strandveien 35A på Husøy! Foto: Fotograf Magik

Husøy havn!

Eksklusiv 3-roms selveier fra 2019 - med solrike uteplasser, sjøutsikt og gjennomført standard - Garasjeplass med lader!

Prisantydning6 950 000 kr
Totalpris
7 125 100 kr
Omkostninger
175 100 kr
Felleskost/mnd.
4 077 kr
Fellesformue
14 420 kr
Kommunale avg.
10 892 kr per år
Formuesverdi
1 372 921 kr

Nøkkelinfo

Boligtype
Leilighet
Eieform
Eier (Selveier)
Soverom
2
Internt bruksareal
95 m² (BRA-i)
Bruksareal
104 m²
Eksternt bruksareal
9 m² (BRA-e)
Balkong/Terrasse
25 m² (TBA)
Etasje
1
Byggeår
2019
Energimerking
A - Gul
Rom
3
Tomteareal
2 770 m² (eiet)

Les mer om bruksareal her

Fasiliteter

Alarm
Balkong/Terrasse
Barnevennlig
Bredbåndstilknytning
Garasje/P-plass
Golfbane
Heis
Kjæledyr tillatt
Kabel-TV
Offentlig vann/kloakk
Parkett
Rolig
Utsikt
Vaktmester-/vektertjeneste
Bademulighet
Fiskemulighet
Strandlinje
Turterreng
Lademulighet
Balansert ventilasjon

Visning

Alle våre visninger har påmelding. På denne måten sikrer vi at megler har god oversikt og tid til å imøtekomme alle interessenter. Meld deg på visning ved å trykke på lenken visningspåmelding.
Visningspåmelding

Om boligen

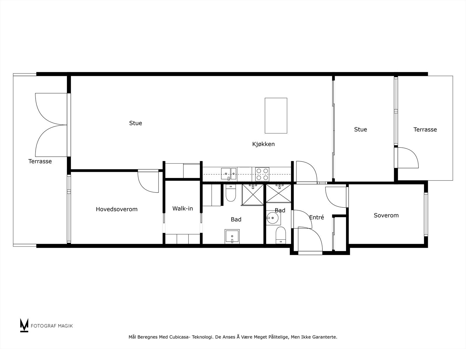
Eksklusiv 3-roms selveier fra 2019 i 1. etasje med heis, garasjeplass og solrike uteplasser på bakkeplan. Leiligheten byr på moderne standard med vannbåren gulvvarme, balansert ventilasjon og stilrene overflater. Lys stue og åpen kjøkkenløsning med integrerte hvitevarer gir god romfølelse og utgang til to terrasser på til sammen ca. 25 kvm med sjøutsikt mot vest. To delikate bad, hvorav ett tilknyttet hovedsoverommet med garderoberom.

Eiendommen ligger idyllisk til rett ved vannkanten, kun 10 min fra Tønsberg sentrum. Her bor du med sjøutsikt, sandstrand, kyststi, kajakker til utlån og ferjeforbindelse rett utenfor døren. Nærmiljøet er attraktivt og byr på solrike omgivelser, golfpark, marina og flotte bademuligheter et maritimt paradis for både hverdag og fritid.

Velkommen!

Salgsoppgaven beskriver vesentlig og lovpålagt informasjon om eiendommen

Se komplett salgsoppgave

Nærområdet

Annonseinformasjon

FINN-kode426818697
Sist endret11. jan. 2026 09:08
Referanse25-0169/25

Rapporter annonse

Annonsene kan være mangelfulle i forhold til lovpålagt opplysningsplikt. Før bindende avtale inngås oppfordres interessenter til å innhente komplett informasjon fra meglerforetaket, selger eller utleier.